Sie suchen eine Kapitalanlage mit wohnwirtschaftlicher und gewerblicher (Büro) Nutzung ? Dann sind Sie hier genau richtig! Zum Verkauf stehen zwei Gebäudeteile die derzeit wohnwirtschaftlich und gewerblich genutzt werden. Alternativ kann der Gewerbeteil später auch in Wohnraum umgewandelt werden und eine weitere Möglichkeit besteht darin, die beiden Hausbereiche real zu teilen und getrennt zu erwerben oder gegebenenfalls auch einen Teil später zu verkaufen.
Nun aber zur Aufteilung:
Die eine Hälfte des Hauses wurde 1657 erbaut (Denkmalschutz) und 1984 umfassend saniert. Dabei entstanden drei abgeschlossene Wohnungen (pro Etage eine Wohnung//teilweise seit längerem vermietet) und dazu noch im Erd- und Obergeschoss jeweils ein Büro-/Praxisteil. Diese beiden Büro-/Praxisteile sind aktuell der zweiten, neueren Hälfte des Hauses zugeordnet (Baujahr 1996) - dies kann aber mit geringem Aufwand wieder rückgängig gemacht werden. Die Aufteilung der Etagen und die Wohnfläche der Wohnungen siehe "Ausstattung".
Die zweite Hälfte des Hauses umfasst diverse Büroflächen mit einer Gesamtnutzfläche von ca. 234m². Weiterhin gehören Sozialräume wie WC, Teeküche, etc., dazu. Die Büroeinheit ist aktuell vermietet 31.12.2025 mit Verlängerungsoption.
Ansonsten sind noch nachfolgende Punkte erwähnenswert:
- im Neubau wurde Fußbodenheizung und Parkett verlegt sowie eine Klimaanlage eingebaut
- die Böden im Altbau sind überwiegend aus Parkett
- die beiden Gasheizungen wurden in 2017 bzw. 2021 modernisiert
- ein KFZ-Außenstellplatz ist im Preis inbegriffen
- Neu-/und Altbau verfügen jeweils über getrennte Eingänge
Die aktuellen Mieteinnahmen betragen jährlich € 47640,-
Attraktives Wohn-/Bürohaus im Herzen von Schwalbach
65824 Schwalbach am Taunus
Die vollständige Adresse der Immobilie erhalten Sie vom Anbieter.
Auf Karte anzeigen
Die vollständige Adresse der Immobilie erhalten Sie vom Anbieter.
Finanzierungszertifikat
In nur zwei Minuten zu Ihrem persönlichen Finanzierungszertifkat.
Infos
| Haustyp | Mehrfamilienhaus |
|---|---|
| Wohnfläche ca. | 163 m2 |
| Grundstücksfläche | 187 m2 |
| Bezugsfrei ab | 01.01.1111 |
| Zimmer | 13 |
| Garage/Stellplatz | Außenstellplatz |
| Anzahl Garage/Stellplatz | 1 |
Kosten
| Kaufpreis |
949.000 € |
|---|---|
| Provision |
4,76% inkl.MwsT Die Maklerprovision bezieht sich auf die Kaufvertragssumme und wird bei Kaufvertragsabschluss fällig und ist vom Käufer zu zahlen. Die Immobilie unterliegt nicht den Vorschriften des § 656a-d BGB |
| Mieteinnahmen | 3.970 € |
Finanzierungsrechner:
Kaufpreis:
600.000 €
Eigenkapital:
600.000 €
Monatliche Rate
0 €
Effektiver Jahreszins
0 %
Sollzinsbindung
10 Jahre
Bausubstanz & Energieausweis
| Baujahr | 1996 |
|---|---|
| Denkmalschutzobjekt | Ja |
| Objektzustand | Modernisiert |
| Heizungsart | Zentralheizung |
| Wesentliche Energieträger | Gas |
| Energieausweis | laut Gesetz nicht erforderlich |
Beschreibung des Objekts
Ausstattung
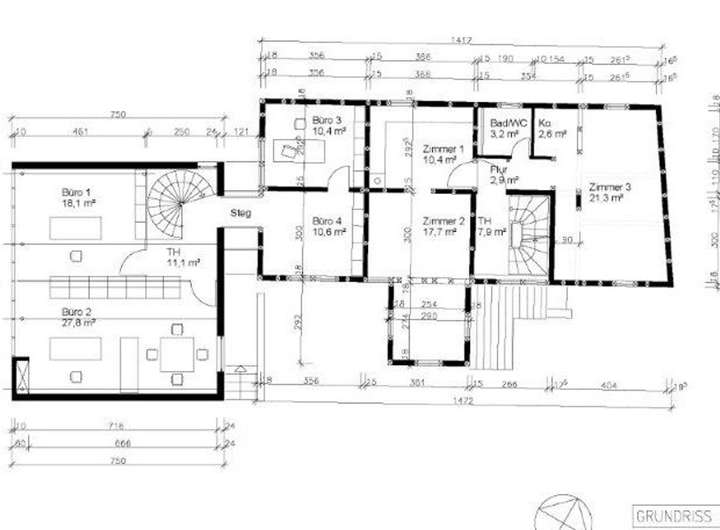
EG:
Altbau: 3 Büros, Teeküche sowie 2-Zimmer-Wohnung mit Küche und Bad, Abstellraum, ca. 42m²
Neubau: ca. 46m² Büroflächen (aktuell geteilt)
OG:
Altbau: 2 Büros sowie 3-Zimmer-Wohnung mit Küche und Bad, ca. 60m²
Neubau: ca.46m² Büroflächen (aktuell geteilt)
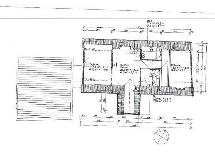
DG:
Altbau: 2,5-zimmer-Wohnung Küche Bad, ca. 62m²
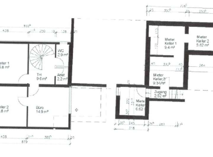
KG:
Altbau: Kellerräume + Waschküche für die Wohnungen
Neubau: Keller, Büro, WC, Abstellraum
Sonstiges: Klimaanlage, Parkett, Fußbodenheizung (Neubau) Fertigparkett (Altbau)
Lage
Das Haus befindet sich in ruhiger Lage in der Ortsmitte von Schwalbach. Fußläufig erreichen Sie Geschäfte des täglichen Bedarfs. Schwalbach liegt nord-westlich von Frankfurt, umgeben von Bad Soden, Eschborn und Sulzbach.
Sonstige Angaben
HINWEIS zum PROVISIONSANSPRUCH: Die Maklerprovision bezieht sich auf die Kaufvertragssumme und wird bei Kaufvertragsabschluss fällig. Sie ist vom Käufer zu zahlen. Die Immobilie unterliegt nicht den Vorschriften des § 656a-d BGB.
Gerne vereinbaren wir mit Ihnen einen individuellen Besichtigungstermin, in dem wir Ihnen die angebotene Immobilie näher vorstellen. Bitte haben Sie Verständnis dafür, dass wir Anfragen ohne vollständige Kontaktangaben (Anschrift, Telefonnummer) nicht bearbeiten können.
Um die Privatsphäre der aktuellen Bewohner zu schützen, können bei dieser Immobilie nur wenige Bilder veröffentlicht werden.
Aus Diskretionsgründen werden nicht alle unsere Objekte auf diesem Internet-Portal beworben. Um weitere Immobilien zu finden, nutzen Sie bitte unsere Homepage unter: http: //www.hauswert-immobilien.de/.
Alle Angaben und Informationen beruhen auf Angaben des Eigentümers, Verwalters, Vermieters oder deren Bevollmächtigten. Eine Gewährleistung für Richtigkeit, Vollständigkeit oder Aktualität kann daher nicht übernommen werden. Irrtümer sind
vorbehalten. Der Empfänger dieses Exposés gestattet die telefonische Kontaktaufnahme seitens HAUSWERT Immobilien. Die Weitergabe des Exposés an unberechtigte Dritte ist untersagt und kann zu Schadensersatzansprüchen führen.
GELDWÄSCHE: Als Immobilienmakler ist HAUSWERT Immobilien nach dem Geldwäschegesetz (GwG) § 2, Abs.1 Nr.10 dazu verpflichtet, die Identität des Vertragspartners (insbesondere Kaufinteressent) festzustellen und zu überprüfen. Hierzu ist es erforderlich, dass wir die Daten Ihres Personalausweises mittels einer Kopie festhalten. Das Geldwäschegesetz (GwG) sieht vor, dass der Makler die Kopien fünf Jahre aufbewahren muss.
Adresse
65824 Schwalbach am Taunus
Interessante Orte
Preis- und Lageinformationen
Preistrend für Bestandsimmobilien in Schwalbach am Taunus