Dieses Einfamilienhaus aus dem Jahr 1930 hat eine ganz eigene Geschichte. Erbaut von einer dänischen Kaufmannsfamilie steht es bis heute für hanseatische Wohnkultur und den besonderen Charme des klassischen Hamburger Rotklinkers. Schon von außen vermittelt es das Gefühl von Beständigkeit und Eleganz, das so typisch für das Malerviertel in Groß Flottbek ist. Auf einem rund 550 Quadratmeter großen Grundstück bietet das Haus etwa 254 Quadratmeter Wohnfläche. Herzstück ist der großzügige Wohn- und Essbereich im Erdgeschoss. Mit rund 45 Quadratmetern, der offenen Küche und dem direkten Zugang auf die Terrasse ist er wie geschaffen für gesellige Stunden mit Familie und Freunden. Der Blick in den Garten und zum beheizten Außenpool macht den Alltag hier zu etwas Besonderem. Die Aufteilung des Hauses ist vielseitig und durchdacht. Im Erdgeschoss gibt es neben dem Wohn- und Essbereich noch ein weiteres Zimmer sowie ein Gäste WC. Im Obergeschoss warten drei gemütliche Zimmer und ein stilvolles Badezimmer mit Badewanne. Das Dachgeschoss bietet ein weiteres Schlafzimmer mit begehbarem Kleiderschrank und ein Bad mit Dusche und eignet sich perfekt als privater Rückzugsort. Ein echtes Plus ist die separat zugängliche Einliegerwohnung im Gartengeschoss. Mit eigener kleiner Küchenzeile eröffnet sie viele Möglichkeiten, sei es für Gäste, ein Au pair, als Büro oder auch zur Vermietung. Vor gut zwölf Jahren wurde die Immobilie umfassend kernsaniert. Dach, Dämmung, Elektrik, Leitungen und Fenster wurden erneuert und auf einen modernen Stand gebracht. Die klassischen Holzsprossenfenster fügen sich harmonisch in das Gesamtbild ein. Zum Haus gehören außerdem eine Garage mit elektrischem Tor, ein zusätzlicher Stellplatz, eine Alarmanlage mit Videoüberwachung sowie Abstellflächen für Fahrräder und Gartengeräte. Auf dem Garagendach befindet sich zusätzlich eine kleine feine Solaranlage, mit der sich unter anderem der Pool beheizen lässt. Der beheizte Außenpool mit Wärmepumpe und Gegenstromanlage ist ein echtes Highlight, das für Urlaubsgefühle im eigenen Garten sorgt. Im Nordosten des Grundstücks gibt es zudem einen besonders schönen Gartenbereich, der sich ideal als geschützter Sitzplatz im Grünen anbietet. Alles in allem ist dieses Haus eine gelungene Verbindung aus Tradition und Moderne. Es bietet viel Platz, eine sehr gute Ausstattung und eine Lage, die zu den schönsten Hamburgs zählt. Ein Zuhause, das Wärme und Stil ausstrahlt und das darauf wartet, eine neue Familie willkommen zu heißen.
Klinkerklassiker im Malerviertel mit Einliegerwohnung und beheiztem Außenpool
22607 Hamburg
Die vollständige Adresse der Immobilie erhalten Sie vom Anbieter.
Auf Karte anzeigen
Die vollständige Adresse der Immobilie erhalten Sie vom Anbieter.
Finanzierungszertifikat
In nur zwei Minuten zu Ihrem persönlichen Finanzierungszertifkat.
Infos
| Haustyp | Einfamilienhaus |
|---|---|
| Wohnfläche ca. | 253 m2 |
| Nutzfläche | 18 m2 |
| Grundstücksfläche | 555 m2 |
| Bezugsfrei ab | 01.11.2025 |
| Zimmer | 9 |
| Badezimmer | 4 |
| Anzahl Garage/Stellplatz | 2 |
Kosten
| Kaufpreis |
2.450.000 € |
|---|---|
| Provision |
siehe Sonstiges |
Finanzierungsrechner:
Kaufpreis:
600.000 €
Eigenkapital:
600.000 €
Monatliche Rate
0 €
Effektiver Jahreszins
0 %
Sollzinsbindung
10 Jahre
Bausubstanz & Energieausweis
| Baujahr | 1930 |
|---|---|
| Letzte Sanierung | 2013 |
| Objektzustand | Neuwertig |
| Heizungsart | Zentralheizung |
| Wesentliche Energieträger | Solarheizung |
| Energieausweis | liegt vor |
| Energieausweistyp | Bedarfsausweis |
| Energieeffizienzklasse | E |
Energieeffizienzklasse E
- A+
- A
- B
- C
- D
- E
- F
- G
- H
- 0
- 25
- 50
- 75
- 100
- 125
- 150
- 175
- 200
- 225
- >250
Beschreibung des Objekts
Ausstattung
Fußbodenheizung
Vollunterkellert
Kamin
Lage
Das Malerviertel in Groß Flottbek zählt zu den begehrtesten Wohnlagen Hamburgs. Die Nachbarschaft ist geprägt von klassischer Architektur, großzügigen Grundstücken und gepflegten Gärten, was dem Viertel seinen besonderen Charme verleiht. Einkaufsmöglichkeiten für den täglichen Bedarf sowie ein vielfältiges Angebot an Boutiquen, Cafés und Restaurants finden sich in der nahegelegenen Waitzstraße, die fußläufig erreichbar ist. Auch das Elbe Einkaufszentrum mit seinen zahlreichen Fachgeschäften liegt nur wenige Minuten entfernt. Familien schätzen die gute Infrastruktur mit Schulen, Kindergärten und internationalen Bildungseinrichtungen ebenso wie die zahlreichen Sport- und Freizeitangebote in der Umgebung. Die Anbindung an den öffentlichen Nahverkehr ist komfortabel. Die S-Bahn-Station Othmarschen ist in wenigen Gehminuten erreichbar und ermöglicht eine schnelle Verbindung in die Hamburger Innenstadt. Verschiedene Buslinien ergänzen das Angebot und sorgen für Mobilität in alle Richtungen. Auch mit dem Auto ist die Lage ideal, da die Autobahn A7 sowohl in den Norden als auch in den Süden schnell erreichbar ist. Mit dem entstehenden A7 Tunnel Altona wird sich die Situation in den kommenden Jahren zusätzlich verbessern. Schon heute ist die Lärmbelastung im Umfeld kaum noch spürbar, da die ersten Abschnitte des Bauwerks nahezu abgeschlossen sind. Ab Anfang 2026 wird der Bereich vollständig überdeckt sein, sodass die ohnehin schon hohe Wohnqualität nochmals gesteigert wird.
Sonstige Angaben
Der Makler-Vertrag mit uns kommt durch die Bestätigung der Inanspruchnahme unserer Maklertätigkeit in Textform zustande, wie z.B. insbesondere die Unterschrift des Suchkundenvertrages und/oder des Objekt-Exposés. Die Höhe der Courtage richtet sich nach den seit dem 23.12.2020 in Kraft getretenen gesetzlichen Regelungen zur Teilung der Maklercourtage. Hiernach wird die Courtage regelmäßig für beide Parteien (Eigentümer und Käufer) in Höhe von 3 % zuzüglich Umsatzsteuer in jeweils geltender Höhe, derzeit also insgesamt 7,14 % des Kaufpreises einschließlich ges. Umsatzsteuer bei notariellem Vertragsabschluss verdient und fällig. Die Höhe der Bruttocourtage unterliegt einer Anpassung bei Steuersatzänderung. Grunderwerbsteuer, Notar- und Gerichtskosten trägt der Käufer. Alle Angaben sind ohne Gewähr und basieren ausschließlich auf Informationen, die uns von unserem Auftraggeber übermittelt wurden. Wir übernehmen keine Gewähr für die Vollständigkeit, Richtigkeit und Aktualität dieser Angaben. Zwischenverkauf bleibt vorbehalten. Sollte das von uns nachgewiesene Objekt bereits bekannt sein, teilen Sie uns dieses bitte unverzüglich mit. Die Weitergabe dieses Exposees an Dritte ohne unsere Zustimmung löst gegebenenfalls Courtage- bzw. Schadensersatzansprüche aus. Im Übrigen gelten die Allgemeinen Geschäftsbedingungen für die Rechtsbeziehung zwischen Ihnen und der Engel & Völkers Immobilien Deutschland GmbH (Lizenznehmer der Engel & Völkers Residential GmbH).
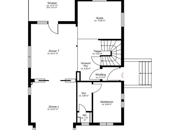
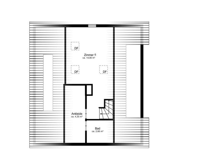
Grundriss
Grundriss Erdgeschoss
>
>
Grundriss Obergeschoss
>
>
Grundriss Dachgeschoss
>
>
Grundriss Einliegerwohnung
>
>
Adresse
22607 Hamburg
Interessante Orte
Preis- und Lageinformationen
Preistrend für Bestandsimmobilien in Groß Flottbek