www.wohntraum-leben.de Das gepflegte, gemütliche Reihenhaus mit Garage, teilüberdachter Terrasse und kleinem Garten ist in einem kinderfreundlichen und gehobenen Wohngebiet gelegen. Das Haus ist z.Zt. noch vermietet, Die Kaltmiete beträgt 1.210 € monatlich.
""" ALTWARMBÜCHEN """ Gemütliches Reihenendhaus mit geräumiger Garage in Sackgassenendlage!!!
30916 Isernhagen
Die vollständige Adresse der Immobilie erhalten Sie vom Anbieter.
Auf Karte anzeigen
Die vollständige Adresse der Immobilie erhalten Sie vom Anbieter.

Finanzierungszertifikat
In nur zwei Minuten zu Ihrem persönlichen Finanzierungszertifkat.
Infos
Haustyp | Reiheneckhaus |
---|---|
Wohnfläche ca. | 105 m2 |
Nutzfläche | 58 m2 |
Grundstücksfläche | 240 m2 |
Bezugsfrei ab | nach Absprache |
Zimmer | 4 |
Schlafzimmer | 3 |
Badezimmer | 1 |
Garage/Stellplatz | Garage |
Anzahl Garage/Stellplatz | 1 |
Kosten
Kaufpreis |
375.000 € |
---|---|
Provision |
3,57% Käuferprovision vom Kaufpreis inkl. MwSt. |
Mieteinnahmen | 1.210 € |
Finanzierungsrechner:
Kaufpreis:
600.000 €
Eigenkapital:
600.000 €
Monatliche Rate
0 €
Effektiver Jahreszins
0 %
Sollzinsbindung
10 Jahre
Bausubstanz & Energieausweis
Baujahr | 1984 |
---|---|
Letzte Sanierung | 2025 |
Objektzustand | Gepflegt |
Heizungsart | Gas-Heizung |
Wesentliche Energieträger | Gas |
Energieausweis | liegt zur Besichtigung vor |
Beschreibung des Objekts
Ausstattung
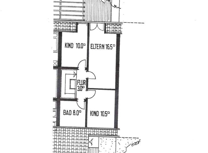
- Terrasse mit Teilüberdachung in Süd-Lage - kleiner Garten - geräumige Garage mit zusätzlichem Abstellbereich und Gartenzugang (ca. 25 m²) - 2 Stellplätze vor dem Haus - Fenster im OG auf der Südseite mit Rolläden versehen - Bodenbelege: Parkett, Fliesen und Vinylboden EG - Flur (ca. 13 m²) mit Garderobenecke - Wohn-Essbereich (ca. 30 m²) mit Terrassenzugang - Küche (ca. 9 m²) mit Durchreiche zum Essplatz, ohne Einbaukücke (wurde mieterseits eingebaut) - Gäste-WC - Abstellraum als Kellerersatz (ca. 8 m²) OG - Flur - Badezimmer mit bodennaher Dusche, Badewanne und Fenster (ca. 8 m²) - Schlafzimmer (ca. 17 m²) - 3. Zimmer (ca. 11 m²) - 4. Zimmer (ca. 10 m²) Dachboden (ca. 25 m²), wärmegedämmt - wird derzeit als Abstellbereich genutzt Die Nutzfläche beträgt ca. 58 m² und ist wie folgt aufgeteilt: ca. 7,5 m² Kellerabstellraum ca. 25 m² Garage mit Abstellbereich ca. 25 m² Dachboden
Lage
Das Haus befindet sich inmitten dem beliebten Isernhagener Ortsteil Altwarmbüchen am Blocksberg im Vogelgebiet. Einkaufsmöglichkeiten, öffentl. Verkehrsmittel, Kindergärten und Schulen sind fußläufig erreichbar.
Sonstige Angaben
MAKLERHONORAR: 3,57 % Käuferprovision inkl. MwSt., verdient und fällig mit Beurkundung des notariellen Kaufvertrages. Der Immobilienmakler hat einen provisionspflichtigen Maklervertrag mit dem Verkäufer in gleicher Höhe abgeschlossen. Alle Daten in diesem Exposé beruhen auf Angaben des Verkäufers. Die Objektangaben wurden mit großer Sorgfalt zusammengestellt. Für die Richtigkeit der Verkäufer-, Anbieter- und Angebotsangaben können wir keine Haftung übernehmen. Irrtümer bleiben vorbehalten.
Adresse
30916 Isernhagen
Interessante Orte
Preis- und Lageinformationen
Preistrend für Bestandsimmobilien in Isernhagen