Aufgrund von Trennung bieten wir dieses wunderschöne, moderne Bio - Haus zum Verkauf an.
Auszug ist zeitnah, nach Verkauf, geplant!
Luxus, Komfort und Familienfreundlichkeit müssen sich nicht ausschließen.
Stadtnah und doch im Grünen - Wohnen mit Familie im komfortablen, modernen Architektenhaus, 5 km außerhalb von Bamberg.
Lichtdurchflutete offene Raumstrukturen, bodentiefe Fenster und hochwertige Parkett- und Fliesenböden garantieren moderne Lebensqualität.
Zum nach Süden ausgerichteten Einfamilienhaus gehört ein 827 qm großes Grundstück,
außerdem ein großzügiges Carport mit zwei Stellplätzen,
ein 18 qm großer Raum für Fahrräder usw.
sowie zusätzlich 3 Stellplätze im Freien.
DIE WICHTIGSTEN PUNKTE IM ÜBERBLICK:
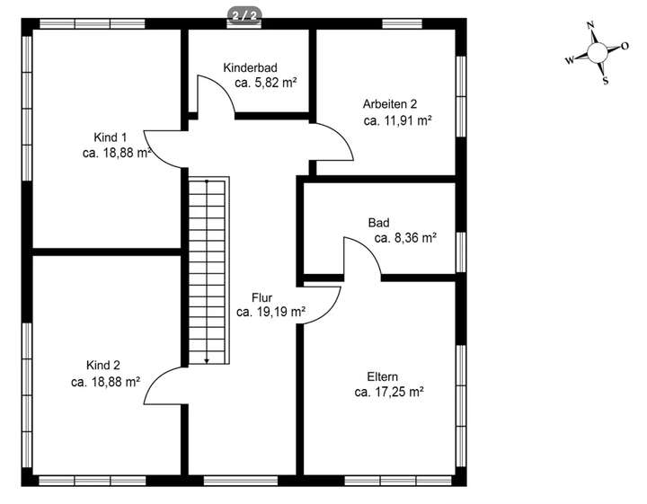
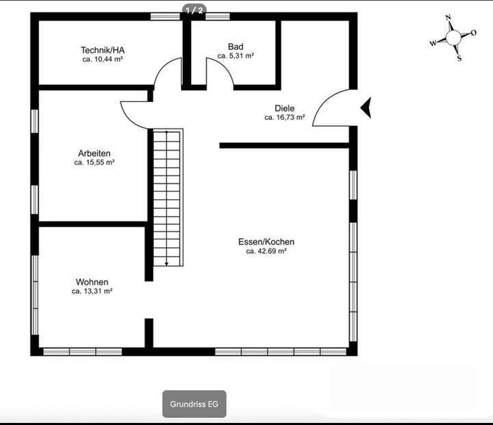
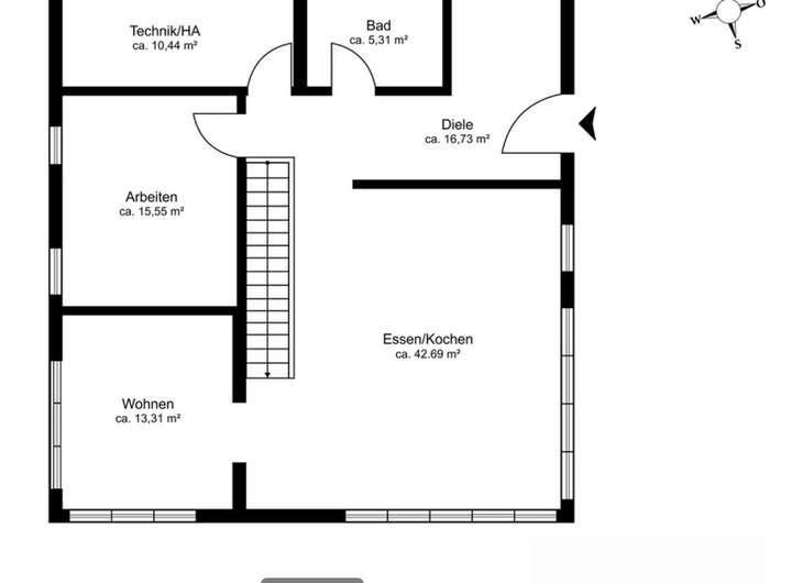
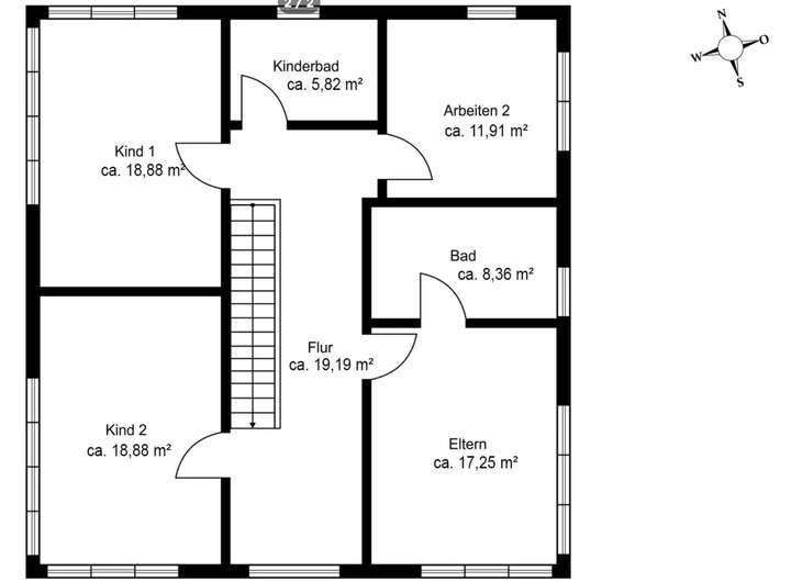
6 Zimmer
1 Schlafzimmer, 2 Kinderzimmer, 2 Büros, große Wohnküche, Wohnzimmer, 3 Bäder
Wohnfläche ca. 229 qm
Terrasse Südseite ca. 12 x 3,7 m , Westseite ca. 11 x 1,7 m
Das Haus steht am Ende einer Sackgasse in einem ruhigen Siedlungsgebiet.
Freuen Sie sich auf viele nette Nachbarn! Eine Gemeinschaft wie hier, findet man nur selten!
Es wurde größter Wert auf gute Bauqualität, gesundes Wohnen, Energieeffizienz und die Verwendung von hochwertigen Materialien gelegt
Was das ganzheitliche Baufritz-Gesundheitskonzept alles umfasst?
Messbar wohngesundes Raumklima
Konsequent schadstoffgeprüfte & zertifizierte Naturmaterialien
Patentierte Biodämmung HOLZ
Intelligente, hygienische Bedarfslüftung
Allergikergerechte Bauweise
Elektrosmog-Schutz X und-E
Schadstoff-Kontrollmessung
Stahlträger entmagnetisiert
Ausschließliche Verwendung von abgeschirmten Elektro- und BUS-Leitungen
KFW Darlehen über 102.000,- €, endfällig, Sollzinssatz 1,00 % bis 30.03.2031 gebunden, kann vom Käufer übernommen werden, vorausgesetzt, die Bank des Käufers stimmt zu.
Bei Interesse bitte Nachricht mit Name, Anschrift und Emailadresse.
Wir schicken Ihnen dann gerne das Expose zu.
Bitte keine Anfragen von Maklern!
Wunderschönes BIOHAUS von BAUFRITZ - Einziehen und Wohlfühlen - zeitnah verfügbar
Apfelallee 17,
96135 Stegaurach
Auf Karte anzeigen
Finanzierungszertifikat
In nur zwei Minuten zu Ihrem persönlichen Finanzierungszertifkat.
Infos
| Haustyp | Einfamilienhaus |
|---|---|
| Etagenzahl | 2 |
| Wohnfläche ca. | 229 m2 |
| Grundstücksfläche | 827 m2 |
| Zimmer | 6 |
| Schlafzimmer | 5 |
| Badezimmer | 3 |
| Garage/Stellplatz | Carport |
Kosten
| Kaufpreis |
1.198.000 € |
|---|---|
| Provision | Nein |
Finanzierungsrechner:
Kaufpreis:
600.000 €
Eigenkapital:
600.000 €
Monatliche Rate
0 €
Effektiver Jahreszins
0 %
Sollzinsbindung
10 Jahre
Bausubstanz & Energieausweis
| Baujahr | 2022 |
|---|---|
| Bauphase | Haus fertig gestellt |
| Objektzustand | Neuwertig |
| Qualität der Austattung | Luxus |
| Heizungsart | Wärmepumpe |
| Wesentliche Energieträger | Erdwärme |
| Energieausweis | liegt vor |
Beschreibung des Objekts
Ausstattung
Wärmepumpe mit Tiefenbohrung
Photovoltaikanlage 10 kWp und Walbox mit zwei Anschlüssen
Niedrige Bewirtschaftungskosten durch energieeffiezientes Bauen
Energieeffizienshaus: EnEV Standard 55
hochwertige Holz-/Alu-Fenster, 3-fach Verglasung
qualitativ hochwertige Innenausstattung von namhaften deutschen Herstellern
Qualitätsparkett und –fliesen,
hochwertige Schreinertüren mit Echtholzfurnier in Eiche, Faltwerktreppe in Eiche massiv,
Fußbodenheizung (im Sommer Kühlung),
dezentrale Lüftung,
moderne Außenjalousie mit Elektromotor, auch im 1. OG,
Smart-Home: Bus-System KNX / Dali (Steuerung von Licht, Jalousien und Heizung auch über App möglich)
Regenwasserzisterne, 6.000 l
Gartenbewässerung vollautomatisiert und über App steuerbar
Lage
Stegaurach ist eine charmante Gemeinde im Landkreis Bamberg, die eine gute Infrastruktur und Lebensqualität bietet. Die Lage zeichnet sich durch eine ruhige und dennoch gut angebundene Umgebung aus. Einkaufsmöglichkeiten für den täglichen Bedarf sowie Ärzte und Schulen sind in der Nähe vorhanden. Die gute Verkehrsanbindung ermöglicht schnelle Wege in die umliegenden Städte und zu wichtigen Verkehrswegen. Stegaurach ist auch an die Stadtbuslinie angebunden.
Die Natur rund um Stegaurach lädt zu Freizeitaktivitäten im Freien ein.
Grundriss
Grundriss EG
>
>
Grundriss OG
>
>
Adresse
Apfelallee 17, 96135 Stegaurach
Interessante Orte
Preis- und Lageinformationen
Preistrend für Bestandsimmobilien in Stegaurach