Diese großzügige Doppelhaushälfte wurde ursprünglich 1964 errichtet und im Jahr 2001 umfassend modernisiert, erweitert und im Grundriss optimiert. Durch die Modernisierung präsentiert sich das Haus mit einer großzügigen, familiengerechten Raumaufteilung.
Besonderes Augenmerk lag auf einer nachhaltigen Bauweise mit hochwertigen, ökologischen Materialien. 2024 wurde zusätzlich der Wärmeerzeuger erneuert, wodurch die Immobilie mit einem Endenergiebedarf von nur 33,8 kWh/m²a die Energieeffizienzklasse A erreicht.
Mit ca. 190 m² Wohnfläche, insgesamt ca. 265 m² Nutzfläche (inkl. Keller) und einem zusätzlich ausbaufähigen Dachgeschoss bietet das Haus viel Platz und Flexibilität. Die Südausrichtung eröffnet zudem optimale Möglichkeiten für eine Photovoltaikanlage.
Ein weiteres Highlight ist der vom Gartenbauarchitekten gestaltete Garten mit Terrasse und separater Sitzecke – eine grüne Oase zum Entspannen und Genießen.
Raumaufteilung
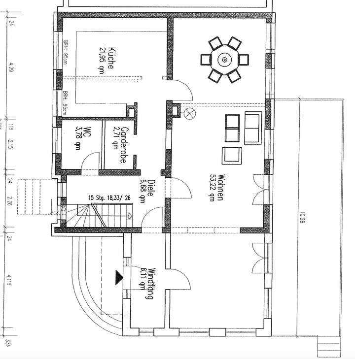
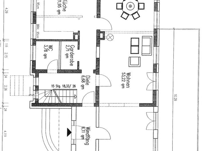
Erdgeschoss (ca. 90 m²):
• Wohn-/Essbereich (53 m²) mit Zugang zum Garten
• Küche (22 m²)
• Gäste-WC, Garderobe, Windfang
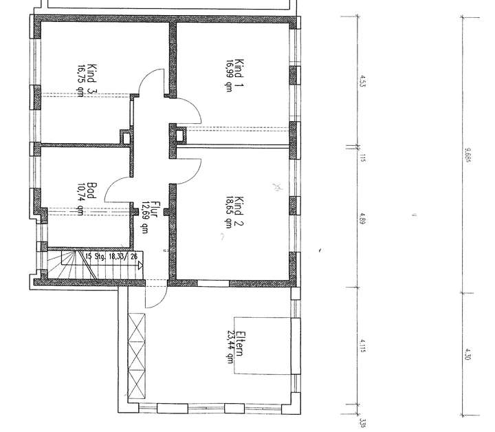
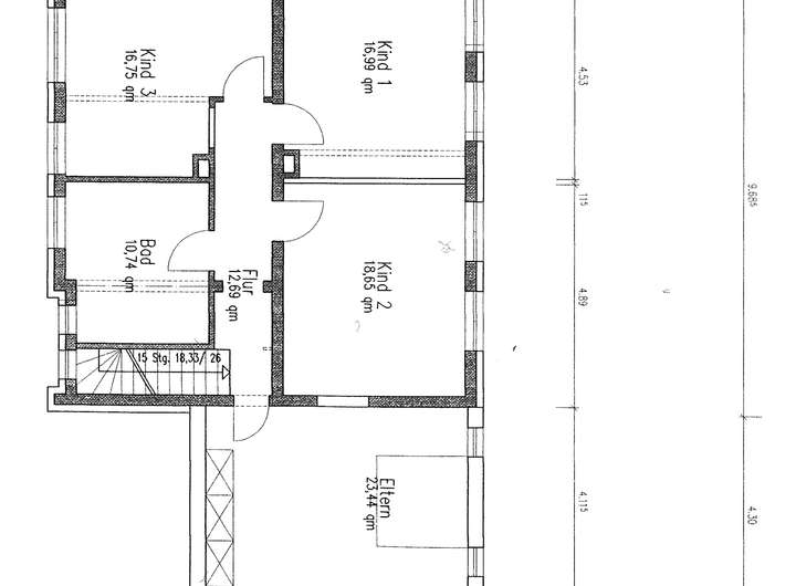
Obergeschoss (ca. 100 m²):
• Elternschlafzimmer (24 m²)
• Drei Kinderzimmer (17–19 m²)
• Tageslichtbad (10 m²)
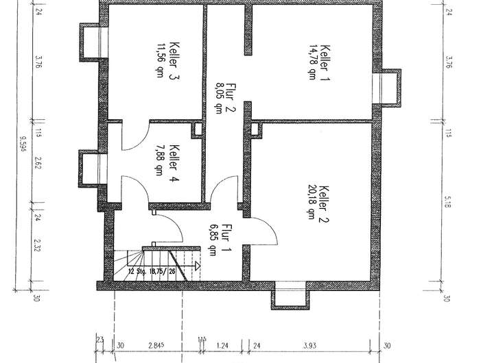
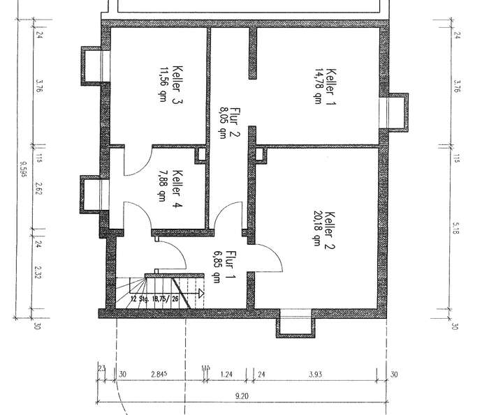
Kellergeschoss (ca. 70 m² Nutzfläche):
• Vier Kellerräume + Flure
• Viel Stauraum und flexible Nutzungsmöglichkeiten
Dachgeschoss:
• Ausbaufähig
MIETKAUF - Familienfreundliche DHH mit Garten, Garage zentral in Großburgwedel - von privat
Breslauer Straße 40,
30938 Burgwedel
Auf Karte anzeigen
Finanzierungszertifikat
In nur zwei Minuten zu Ihrem persönlichen Finanzierungszertifkat.
Infos
| Haustyp | Doppelhaushaelfte |
|---|---|
| Etagenzahl | 2 |
| Wohnfläche ca. | 190 m2 |
| Nutzfläche | 70 m2 |
| Grundstücksfläche | 629 m2 |
| Bezugsfrei ab | 1.2.2026 |
| Zimmer | 5,5 |
| Schlafzimmer | 4 |
| Badezimmer | 2 |
| Anzahl Garage/Stellplatz | 2 |
Kosten
| Kaufpreis |
625.000 € |
|---|---|
| Provision | Nein |
Finanzierungsrechner:
Kaufpreis:
600.000 €
Eigenkapital:
600.000 €
Monatliche Rate
0 €
Effektiver Jahreszins
0 %
Sollzinsbindung
10 Jahre
Bausubstanz & Energieausweis
| Baujahr | 1964 |
|---|---|
| Letzte Sanierung | 2024 |
| Bauphase | Haus fertig gestellt |
| Objektzustand | Gepflegt |
| Qualität der Austattung | Gehoben |
| Heizungsart | Wärmepumpe |
| Wesentliche Energieträger | Umweltwärme |
| Energieausweis | liegt vor |
| Energieausweistyp | Bedarfsausweis |
| Energieverbrauchskennwert | 33,8 kWh/(m²*a) |
| Energieeffizienzklasse | A |
33,8
kWh/(m²*a)
Energieeffizienzklasse A
- A+
- A
- B
- C
- D
- E
- F
- G
- H
- 0
- 25
- 50
- 75
- 100
- 125
- 150
- 175
- 200
- 225
- >250
Beschreibung des Objekts
Ausstattung
• Wohnfläche: ca. 190 m²
• Baujahr 1964, Modernisierung & Erweiterung 2001
• Wärmeerzeuger neu 2024
• Energieeffizienzklasse A (Endenergiebedarf 33,8 kWh/m²a)
• Familiengerechter Grundriss mit 4 Schlafzimmern
• Vollkeller
• Ausbaureserve im Dachgeschoss
• Nachhaltig & ökologisch modernisiert mit hochwertigen Baustoffen
• Südausrichtung – ideales Potenzial für Photovoltaik
• Hochwertige Parkettböden und Materialien
• Garage mit Sektionaltor
• Gartenarchitektur mit Sitzecke & Terrasse
• Kamin
• Wärmepumpe von Nibe
Lage
Das Objekt befindet sich in Großburgwedel, einer der beliebtesten Wohnlagen im Norden von Hannover. Die Stadt gilt als familienfreundlich und bietet eine hervorragende Infrastruktur in einer ruhigen, gewachsenen Umgebung.
Das Haus liegt in einer ruhigen Sackgassenendlage ohne Durchgangsverkehr, wodurch eine besonders angenehme Wohnatmosphäre entsteht. Gleichzeitig überzeugt die Lage durch ihre Nähe zum Zentrum von Großburgwedel – sämtliche Einrichtungen des täglichen Bedarfs sind fußläufig erreichbar.
Familienfreundlichkeit:
Alle Schulformen befinden sich am Ort, ebenso Kindergärten und Spielplätze. Das neue Gymnasium liegt in unmittelbarer Nachbarschaft, weitere Schulbauten sind bereits in Planung.
Lebensqualität:
Burgwedel ist eine strukturstarke Stadt mit hoher Lebensqualität, vielfältigen Freizeitangeboten und sehr guter Gesundheitsversorgung. Viele Fachärzte sind am Ort, und für die Region Hannover ist ein Krankenhausneubau in Großburgwedel geplant.
Freizeit & Umgebung:
Freibad, Sportanlagen, Pumptrack und zahlreiche Vereine liegen in direkter Nähe – alles fußläufig erreichbar. Die Umgebung bietet ideale Bedingungen für Familien, Freizeit und Sport.
Verkehrsanbindung:
Busse und Regionalbahn verbinden Großburgwedel direkt mit Hannover und Celle. Der Flughafen Langenhagen ist schnell erreichbar, ebenso die Autobahnen A7 und A37.
Wirtschaft & Standortqualität:
In der Region sind zahlreiche namhafte Arbeitgeber ansässig, darunter Rossmann, Kind Hörgeräte, Burgwedel Biotech, IKEA, Steinlen, Haweka u. a. Damit gilt Burgwedel als wirtschaftlich starker Standort mit stabilen Immobilienwerten.
Sonstige Angaben
🌟 Mietkauf – Ihre sichere Möglichkeit ins Eigenheim einzuziehen
Dieser Mietkauf bietet Ihnen eine Kombination aus sofortiger Nutzung des Hauses und späterem sicheren Kauf zu einem garantierten Preis.
Hier sind die wichtigsten Vorteile für Sie als Käufer:
⸻
🏡 1. Sie können sofort einziehen – kaufen aber erst später
Sie nutzen das Haus vollständig, ohne sofort eine Finanzierung aufbauen zu müssen.
➡ Einzug: 01.02.2026
➡ Kauf erst: 31.01.2031
Das gibt Ihnen:
• Planungssicherheit
• Zeit für Eigenkapitalaufbau
• Zinsvorteile, falls die Zinsen bis 2031 sinken
⸻
💶 2. Fixierter Kaufpreis – keine Überraschungen
Der Kaufpreis steht heute bereits fest:
➡ 625.000 € garantiert – egal, wie sich der Markt entwickelt
Wenn Immobilienpreise steigen, profitieren Sie deutlich.
⸻
🎁 3. Ihr Optionsentgelt wird vollständig angerechnet
Das sofort fällige Optionsentgelt von 62.500 € wird beim späteren Kauf voll als Kaufpreisteil angerechnet. Es entfällt bei Nichtausübung der Kaufoption.
➡ Sie kaufen effektiv für 562.500 €, nicht für 625.000 €.
⸻
⏳ 4. Sie haben 4 Jahre Entscheidungsfreiheit
Sie müssen sich erst bis 31.01.2030 entscheiden, ob Sie kaufen möchten.
⸻
🌱 5. Maximale Kostentransparenz
Ihre Miete ist fix:
➡ 2.328 €/Monat
Alle Verträge für:
• Strom
• Heizstrom Wärmepumpe
• Wasser/Abwasser
• Internet/Telekom
schließen Sie direkt mit den Versorgern ab.
Das bedeutet:
✔ volle Transparenz
✔ Sie bestimmen selbst Anbieter und Tarife
✔ keine versteckten Umlagen vom Vermieter
⸻
🛠 6. Modernisierungen übernimmt der Vermieter
Weitere Dokumente
EnergieausweisGrundriss
Bild 121025 um 2314
>
>
Grundriss EG
>
>
Grundriss Keller
>
>
Grundriss OG
>
>
Adresse
Breslauer Straße 40, 30938 Burgwedel
Interessante Orte
Preis- und Lageinformationen
Preistrend für Bestandsimmobilien in Burgwedel