Das zum Verkauf stehende Grundstück verfügt über eine Gesamtgröße von ca. 700 m², liegt in einer exklusiven und ruhigen Straße im Hamburger Stadtteil Groß Flottbek.
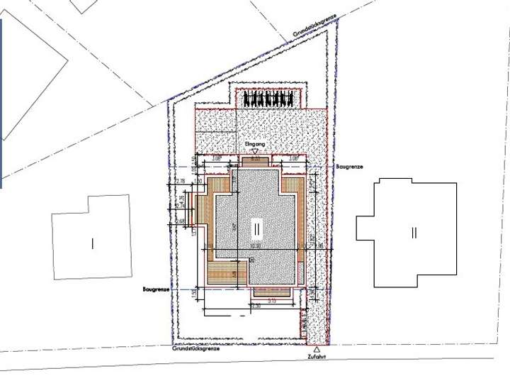
Eine Baugenehmigung für 3 Wohneinheiten, eine Einliegerwohnung und Gemeinschaftsflächen im Kellergeschoss liegt bereits vor.
Der Bau kann sofort beginnen. Das Projekt ist bereits bis zur Leistungsphase LP6 projektiert.
Das anspruchsvolle Mehrfamilienhaus besticht durch die modernen, großflächigen Fenster, die viel Licht ins Innere lassen und zum Verweilen mit Familie und Freunden einladen.
Die derzeitige Planung umfasst den Neubau eines erstklassigen 2-geschossigen Wohngebäudes mit Staffelgeschoss.
Die geplante Wohnfläche der Wohneinheiten beträgt insgesamt ca. 387m² zzgl. Abstellräume und Allgemeinflächen im Kellergeschoss ca. 134m² . Über den Hauseingang im Norden wird das Gebäude erschlossen. Abstellmöglichkeiten für Fahrräder werden im Keller ermöglicht.
Die Wohnungen sind das perfekte Setting für einen gehobenen und hanseatischen Lebensstil.
Hamburg Elbvororte - Grundstück mit erteilter Baugenehmigung
22607 Hamburg
Die vollständige Adresse der Immobilie erhalten Sie vom Anbieter.
Auf Karte anzeigen
Die vollständige Adresse der Immobilie erhalten Sie vom Anbieter.
Finanzierungszertifikat
In nur zwei Minuten zu Ihrem persönlichen Finanzierungszertifkat.
Infos
| Vermarktungsart | Kaufen |
|---|---|
| Grundstücksfläche | 700 m2 |
| Erschließung | Erschlossen |
| Empfohlene Nutzung | Mehrfamilienhaus |
| Bebaubar nach | Bebauungsplan |
Kosten
| Miete pro Jahr |
1.699.000 € |
|---|---|
| Provision |
3,0% Die Maklercourtage beträgt 3,0 % inkl. der gesetzlichen Mehrwertsteuer. Sie ist verdient und fällig bei Abschluss eines notariellen Kaufvertrages und vom Käufer zu zahlen. Irrtum und Zwischenverkauf vorbehalten. |
Finanzierungsrechner:
Kaufpreis:
600.000 €
Eigenkapital:
600.000 €
Monatliche Rate
0 €
Effektiver Jahreszins
0 %
Sollzinsbindung
10 Jahre
Beschreibung des Objekts
Lage
Das Grundstück befindet sich in einer sehr begehrten Wohnstraße in Groß Flottbek. Prachtvolle Altbauvillen und Einfamilienhäuser mit wunderbaren Gärten prägen die Umgebung.
Kindergärten, Grund- und weiterführende Schulen sowie die Internationale Schule sind mit dem Fahrrad oder zu Fuß bequem zu erreichen. Zur internationalen Schule sind es nur fünf Gehminuten.
Die exklusive Lage bietet zahlreiche Möglichkeiten der Freizeitgestaltung: der Jenischpark sowie das nahe Elbufer und der Botanische Garten laden zu ausgedehnten Spaziergängen ein; die Sportvereine der Umgebung wie der Hamburger Polo-Club oder der Groß Flottbeker Tennis-, Hockey- und Golfclub bieten abwechslungsreiche Freizeitmöglichkeiten.
Einkaufsmöglichkeiten für den täglichen Bedarf sind in der Waitzstraße sowie im nur wenige Minuten entfernten Elbe-Einkaufszentrum gegeben.
Die nächstgelegene Bushaltestelle befindet sich fußläufig in ca. 450 m Entfernung und ermöglicht einen schnellen Anschluss an den öffentlichen Nahverkehr. Mithilfe von Bus- und Bahnverbindungen kann das Hamburger Stadtzentrum in wenigen Minuten erreicht werden. Eine vielseitige Anbindung an das regionale und überregionale Straßennetz garantieren zudem die B431 und die A7.
Sonstige Angaben
Alle Angaben sind ohne Gewähr und basieren ausschließlich auf Informationen, die uns von unserem Auftraggeber übermittelt wurden. Wir übernehmen keine Gewähr für die Vollständigkeit, Richtigkeit und Aktualität dieser Angaben.
Aus Schutzgründen der Privatsphäre, bitten wir keine eigenen vor Ort Begehungen zu unternehmen und Anfragen des Exposés, nur unter Angaben Ihrer persönlichen Daten bei uns einzufordern.
Besichtigungen sind nach Vereinbarung möglich.