Im Neubauprojekt BÖ52 in Musberg entstehen 6 moderne Reihen- und Doppelhäuser mit klarer Architektur, hellen Räumen und viel Platz zum Wohlfühlen. Die großzügigen Wohnbereiche, privaten Gärten oder Dachterrassen und das ausbaufähige Dachstudio bieten Raum für Familie, Rückzug und gemeinsame Momente.
Dank nachhaltiger Technik (KfW 40 QNG, PV-Anlage, Wärmepumpe) wohnen Sie nicht nur komfortabel, sondern auch zukunftssicher – und das provisionsfrei über uns als Vertriebspartner.
Jetzt schnell sein!
Jetzt Exposé anfordern und Besichtigungstermin vereinbaren!
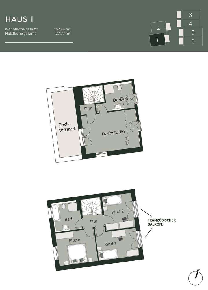
Haus 1 | DHH | Kaufpreis 845.000 EUR
Wohnfläche ca. 152 m², Grundstücksfläche. ca. 199 m²
Haus 3 | REH | Kaufpreis 745.000 EUR
Wohnfläche. ca. 127 m², Grundstücksfläche. ca. 193 m²
Haus 4| RMH | Kaufpreis 675.000 EUR
Wohnfläche. ca. 128 m², Grundstücksfläche. ca. 133 m²
Haus 5 | RMH | Kaufpreis 675.000 EUR
Wohnfläche. ca. 128 m², Grundstücksfläche. ca. 135 m²
Baubeginn: ca. Anfang Oktober 2025
Fertigstellung: ca. Ende 2026
*Einbauküche im Wert von 10.000 EUR inklusive! Bei höherem Kaufpreis trägt der Käufer die Differenz. Keine Barauszahlung oder Anrechnung möglich.
Provisionsfrei: Attraktive Doppelhaushälfte mit Studio und großer Dachterrasse - Baubeginn Oktober
70771 Leinfelden-Echterdingen
Die vollständige Adresse der Immobilie erhalten Sie vom Anbieter.
Auf Karte anzeigen
Die vollständige Adresse der Immobilie erhalten Sie vom Anbieter.
Finanzierungszertifikat
In nur zwei Minuten zu Ihrem persönlichen Finanzierungszertifkat.
Infos
| Haustyp | Doppelhaushaelfte |
|---|---|
| Wohnfläche ca. | 152 m2 |
| Nutzfläche | 27,77 m2 |
| Grundstücksfläche | 199,49 m2 |
| Zimmer | 5,5 |
| Schlafzimmer | 3 |
| Badezimmer | 2 |
| Garage/Stellplatz | Außenstellplatz |
| Anzahl Garage/Stellplatz | 1 |
Kosten
| Kaufpreis |
845.000 € |
|---|---|
| Provision | Nein |
Finanzierungsrechner:
Kaufpreis:
600.000 €
Eigenkapital:
600.000 €
Monatliche Rate
0 €
Effektiver Jahreszins
0 %
Sollzinsbindung
10 Jahre
Bausubstanz & Energieausweis
| Baujahr | unbekannt |
|---|---|
| Qualität der Austattung | Gehoben |
| Heizungsart | Fußbodenheizung |
| Energieausweis | liegt zur Besichtigung vor |
Beschreibung des Objekts
Ausstattung
Schlüsselfertig inklusive Keller und ausgebautem Dachgeschoss. Massive Bauweise Stein auf Stein und durch den TÜV abgenommene Handwerkerqualität. Die Parkierung ist ebenfalls schon im Festpreis inkludiert.
Wir arbeiten mit der Fa. Weisenburger Bau zusammen, die über 70 Jahre Erfahrung im Bau von Doppelhaus- und Reihenhäusern verfügt. Zudem finden Sie eine einzigartige Musterausstellung in Karlsruhe. Machen Sie sich einen ersten Eindruck unter: www.weisenburger.de/immobilienangebot/bemusterungszentrum-baustein
Die Häuser werden energetisch auf hohem Niveau errichtet und garantieren nachhaltig einen hohen Wohn- und Marktwert.
Der Baubeginn ist Anfang Oktober 2025 und aktuell können noch Ihre individuellen Sonderwünsche hinsichtlich der Ausstattung und der Grundrissplanung im Rahmen der Möglichkeiten berücksichtigt werden.
Die Ausstattungs-Highlights:
- KfW 40 – mit QNG-Zertifizierung
- Photovoltaikanlage und Luft-Wasser-Wärmepumpe
- Fußbodenheizung in allen Wohnräumen
- Bodengleiche Dusche
- Elektrische Rollläden
- Kunststofffenster mit Wärmeschutzverglasung
- Massives Eichenparkett
- Hochwertige Sanitärausstattung
- Stellplatz
- Ausgebautes Dachstudio und Dachterrasse
Lage
Musberg ist ein bevorzugter Ortsteil von Leinfelden-Echterdingen im Landkreis Esslingen. Musberg liegt nordwestlich des Stadtzentrums von Leinfelden-Echterdingen, in der Nähe von Stuttgart. Vorwiegend geprägte ländliches & familienfreundliche Wohnlage. Das Bauvorhaben befindet sich in einer ruhigen Anliegerstraße mit unmittelbarer Nähe zum Naherholungsgebiet. Gute Anbindung in die Stuttgarter Innenstadt sowie in die benachbarten Ortsteile sind Vorzüge des Standortes. Die nahegelegenen Bundes- und Autobahnen (z. B. A8/A81) sowie Anbindungen an öffentliche Verkehrsmittel sind über Leinfelden-Echterdingen gegeben. Lokale Einkaufsmöglichkeiten, Grundschule und Kindergarten sind fußläufig bequem und sicher erreichbar.
Sonstige Angaben
GEG:
Die Erstellung des Energieausweises wird nach Fertigstellung des Gebäudes vom Bauherrn/Eigentümer beantragt.
Die Vermittlung der Immobilie erfolgt provisionsfrei für den Käufer.
Haben wir Ihr Interesse geweckt? Gerne übersenden wir Ihnen ein ausführliches Exposé mit weiteren Details und der genauen Adresse der Immobilie. Selbstverständlich stehen wir für weitere Informationen oder einen Besichtigungstermin (ab Vorliegen des Energieausweises, sofern erforderlich und noch nicht vorhanden) jederzeit zur Verfügung. Das Team von E & G Private Immobilien steht Ihnen gerne zur Seite – wir freuen uns auf Ihre Anfrage!
Nicht alle unsere Immobilienangebote präsentieren wir auf diesem Portal. Unser vollständiges Immobilienangebot finden Sie unter www.eug-privateimmobilien.de
Grundriss
Grundriss
>
>
Grundriss
>
>
Adresse
70771 Leinfelden-Echterdingen
Interessante Orte
Preis- und Lageinformationen
Preistrend für Bestandsimmobilien in Leinfelden-Echterdingen