Verkauf des Grundstücks mit Bestandsimmobilie und Baugenehmigung im Bieterverfahren. Das Startgebot liegt bei 850.000 Euro. Details im Exposé auf Anforderung.
Dieses attraktive Angebot bietet Ihnen maximale Flexibilität:
Bestehendes Haus sanieren – mit möglicher Förderung und Erweiterungsoptionen.
Sofortiger Neubau – dank bereits vorliegender, gültiger Baugenehmigung.
Ein fertiger Entwurf gemäß Baugenehmigung liegt bereits vor.
Zusätzlich bestehen folgende Möglichkeiten:
Realisierung eines Einfamilienhauses mit Einliegerwohnung
Alternativ: Errichtung von zwei Doppelhaushälften (über Nachtragsbaugesuch darstellbar)
Inklusive Architektenpläne im dwg-/dxf-Format – ideal für Anpassungen und zur Reduzierung Ihrer Planungskosten.
Die Immobilie befindet sich in einer ruhigen und attraktiven Lage mit §34-Umgebungsbebauung.
Großes Grundstück mit kleinem Haus & gültiger Baugenehmigung
Bismarckstraße 39,
71229 Leonberg
Auf Karte anzeigen
Finanzierungszertifikat
In nur zwei Minuten zu Ihrem persönlichen Finanzierungszertifkat.
Infos
| Vermarktungsart | Kaufen |
|---|---|
| Grundstücksfläche | 797 m2 |
| Erschließung | Erschlossen |
| Bebaubar nach | Aussengebiet |
Kosten
| Miete pro Jahr |
850.000 € |
|---|---|
| Provision |
3,57% des beurkundeten Kaufpreis |
Finanzierungsrechner:
Kaufpreis:
600.000 €
Eigenkapital:
600.000 €
Monatliche Rate
0 €
Effektiver Jahreszins
0 %
Sollzinsbindung
10 Jahre
Beschreibung des Objekts
Lage
Grundstück in ruhiger Wohnlage von Leonberg.
Gute Infrastruktur: Schulen, Kindergärten, Ärzte und
Einkaufsmöglichkeiten in wenigen Gehminuten
erreichbar.
Gute Anbindung an den ÖPNV, Bushaltestellen und S-Bahn in fußläufiger Nähe. Autobahnauffahrt A8 in 5
Minuten erreichbar und nicht hörbar.
Attraktives Umfeld mit Grünflächen, Parks,
Naherholungsgebiete und Freizeitmöglichkeiten in
nächster Umgebung.
Zentrale Lage in einem gewachsenen Wohngebiet mit
schneller Erreichbarkeit von Stuttgart und Böblingen.
Grundriss
Grundriss Neubauoption EG
>
>
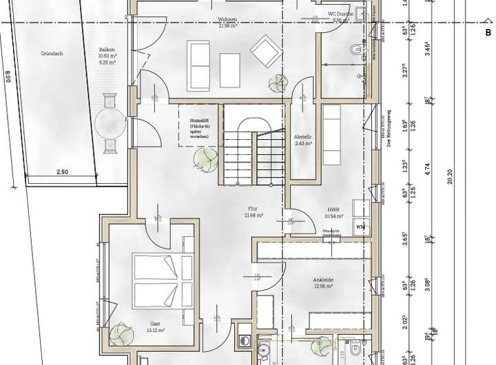
Grundriss Neubauoption 1 OG
>
>
Grundriss Neubauoption 2 OG
>
>
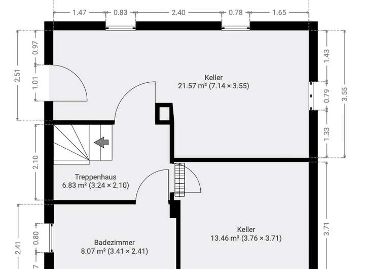
Bestand Souterrain
>
>
Bestand EG
>
>
Bestand 1 OG
>
>
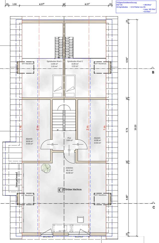
Bestand Spitzboden
>
>