Jetzt ist Ihre Zeit gekommen - profitieren Sie von diesem exklusiven Angebot und ziehen in Ihre eigenen vier Wände! Genießen Sie die Vorzüge der Stadt Haldensleben und kommen Sie gleichzeitig in Ihrem neuen Zuhause an.
Die charmante Doppelhaushälfte, welche zum Verkauf steht und spätestens im nächsten Jahr zur Eigennutzung bestimmt ist, verfügt über 123 m² Wohnfläche und einem großzügigen Grundstück von 638 m².
Aufgrund der Ausstattung mit einem Tageslichtbad mit Wanne und einem Gäste-WC sowie großzügigem Carport, geräumigen Nebengelass und einem fast 250 m² großen Garten eignet sich dieses Haus bestens für eine kleine Familie, die das Stadtleben und gemütliche Grillabende sowie entspannten Stunden im Grünen liebt.
Das Haus erstreckt sich über 2 Etagen und wurde zuletzt im Jahr 2025 modernisiert (neue Gaszentralheizung). Es präsentiert sich vollständig renoviert und einladend. Die Ausstattung ist normal und funktional, mit Fliesen, Laminat und Teppichboden als Bodenbelägen.
Zu den Highlights dieser Immobilie gehören:
- Ein Carport für zwei PKW
- Ein praktischer Keller für zusätzlichen Stauraum
- Ein Gäste-WC für mehr Komfort
- Eine Zentralheizung mit Gasbetrieb für effiziente Wärme
- doppelverglaste Isolierfenster mit Außenrollos
Die Doppelhaushälfte befindet sich in der beliebten Stadt Haldensleben, welche für seine vielen kulturellen Veranstaltungen, lebendige Nachbarschaften und beste Einkaufsmöglichkeiten bekannt ist.
Nutzen Sie Ihre Chance auf ein Eigenheim mit Vorzügen!
Endlich ankommen - Wohnen in den eigenen vier Wänden in Haldensleben!
Althaldensleber Straße 9,
39340 Haldensleben
Auf Karte anzeigen
Finanzierungszertifikat
In nur zwei Minuten zu Ihrem persönlichen Finanzierungszertifkat.
Infos
| Haustyp | Doppelhaushaelfte |
|---|---|
| Etagenzahl | 2 |
| Wohnfläche ca. | 103 m2 |
| Nutzfläche | 50 m2 |
| Grundstücksfläche | 638 m2 |
| Bezugsfrei ab | nach Absprache |
| Zimmer | 3 |
| Schlafzimmer | 2 |
| Badezimmer | 1 |
| Garage/Stellplatz | Carport |
| Anzahl Garage/Stellplatz | 2 |
Kosten
| Kaufpreis |
179.000 € |
|---|---|
| Provision |
3,57 % inkl. MwSt. Die Provision ist mit Abschluss des Kaufvertrags verdient und nach gesonderter Rechnungsstellung fällig. |
Finanzierungsrechner:
Kaufpreis:
600.000 €
Eigenkapital:
600.000 €
Monatliche Rate
0 €
Effektiver Jahreszins
0 %
Sollzinsbindung
10 Jahre
Bausubstanz & Energieausweis
| Baujahr | 1938 |
|---|---|
| Letzte Sanierung | 2025 |
| Bauphase | Haus fertig gestellt |
| Objektzustand | Vollständig Renoviert |
| Qualität der Austattung | Normal |
| Heizungsart | Zentralheizung |
| Wesentliche Energieträger | Gas |
| Energieausweis | liegt zur Besichtigung vor |
Beschreibung des Objekts
Lage
Diese Immobilie bietet eine hervorragende Verkehrsanbindung. Nur wenige Schritte von der Haustür entfernt, finden Sie eine Haltestelle des öffentlichen Personennahverkehrs (ÖPNV), die Ihnen eine bequeme und schnelle Fortbewegung ermöglicht.
Die nächste Autobahn ist nur eine 10-minütige Fahrt entfernt, was ideale Bedingungen für Pendler schafft und einen schnellen Zugang zu umliegenden Städten gewährleistet. Die Landeshauptstadt Magdeburg erreichen Sie bspw. in 25 Minuten.
Der Hauptbahnhof ist ebenfalls nur 5 Autominuten entfernt, sodass Sie von hier aus zügig an Ihr gewünschtes Reiseziel gelangen können.
Eine Besonderheit in der Stadt ist die Statue des reitenden Roland. Auch der historische Markplatz und weitere kulturelle Sehenswürdigkeiten laden Interessierte in die sympathische Stadt am Mittellandkanal ein. Dank gut ausgebauter Fahrradwege sowie Kindereinrichtungen ist die Lebensqualität in Haldensleben besonders hoch. Überzeugen Sie sich selbst!
Sonstige Angaben
Haben wir Ihr Interesse geweckt? Dann freuen wir uns von Ihnen zu hören oder zu lesen. Gerne beantworten wir Ihre Fragen und vereinbaren einen Besichtigungstermin passend zu Ihrem Terminkalender.
Zur Unterstützung bei Text- und Bildgestaltung, z. B. um die Nutzungsmöglichkeiten der Immobilie zu veranschaulichen, verwenden wir teilweise KI-Systeme. Alle Angaben und Darstellungen werden von uns manuell überprüft.
Wir recherchieren gründlich und beraten auf Augenhöhe nach bestem Wissen und Gewissen. Wir weisen dennoch darauf hin, dass jede Immobilie ein Unikat mit unzähligen Merkmalen ist. Daher können wir nicht alles wissen. Wir scheuen aber keine Mühen, es für Sie herauszufinden.
Sollten Sie Objekte zum Kauf suchen oder sich von einer Immobilie trennen wollen, so zögern Sie nicht, uns zu kontaktieren. Wir sind die regionalen Makler auf Augenhöhe und für Sie da!
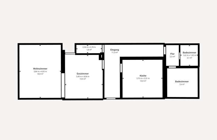
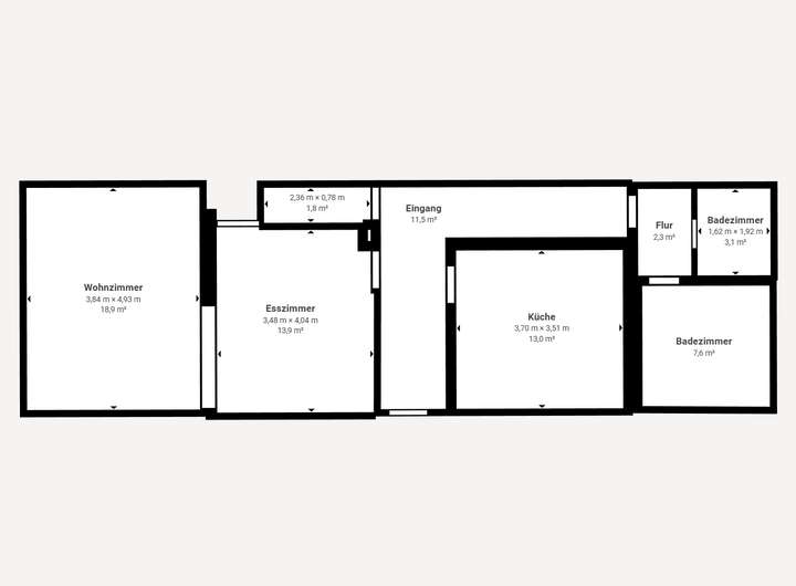
Grundriss
Grundriss EG
>
>
Grundriss OG
>
>
Adresse
Althaldensleber Straße 9, 39340 Haldensleben
Interessante Orte
Preis- und Lageinformationen
Preistrend für Bestandsimmobilien in Haldensleben