Willkommen zu diesem einzigartigen Immobilienangebot: einem historischen Zweifamilienhaus aus dem Baujahr 1900, das den Charme vergangener Zeiten mit großem Potenzial für die Zukunft vereint. Das Anwesen liegt auf einem weitläufigen 3.000 m² großen Eigentumsgrundstück und bietet Ihnen nicht nur eine beeindruckende Wohnfläche, sondern auch vielfältige Möglichkeiten für Hobby, Tierhaltung oder Gewerbe durch die vorhandene Scheune und Stallungen. Von den 3.000m² Gesamtgrundstücksfläche könnten ca. 1.500m² auch als Bauland erschlossen werden.
Die Gesamtfläche von 240 m² Wohnfläche verteilt sich auf zwei separate Wohneinheiten im Erd- und Obergeschoss. Das Haus ist renovierungsbedürftig und bietet dem neuen Eigentümer die Möglichkeit, die Gestaltung und Ausstattung nach eigenen Vorstellungen umzusetzen. Derzeit sind die Böden mit einer Mischung aus Teppich, Linoleum und Fliesen belegt. Bereits wichtige Modernisierungen wurden durchgeführt: Die Fenster wurden im Jahr 1999 erneuert und die Heizkörper stammen aus dem Jahr 2000.
Zusätzlich steht ein Kellerraum als praktische Abstellfläche zur Verfügung.
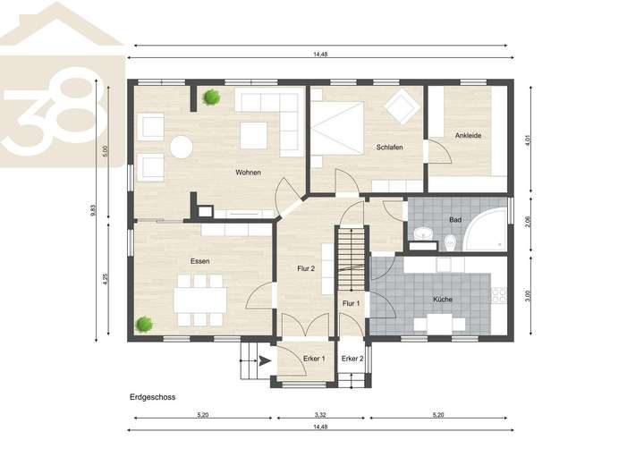
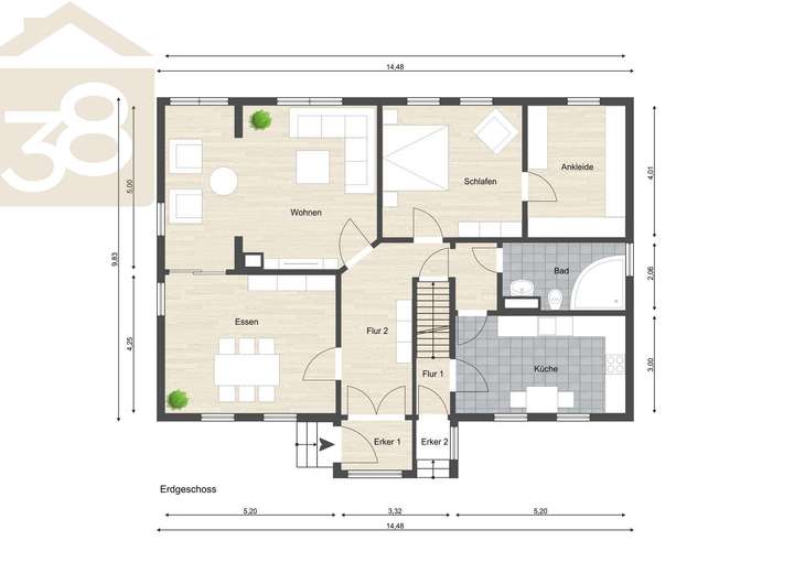
Das Erdgeschoss empfängt Sie mit einem geräumigen Flur. Von hier aus gelangen Sie in das Esszimmer und das angrenzende Wohnzimmer, die beide viel Raum für gemütliche Stunden bieten. Ein besonderes Highlight ist der charmante Kamin im Wohnzimmer des Erdgeschosses, der an kühleren Abenden für zusätzliche Gemütlichkeit sorgt. Die Einheit verfügt über eine separate Küche sowie ein Schlafzimmer mit angrenzendem Ankleidezimmer. Ein Badezimmer mit Badewanne vervollständigt das Erdgeschoss.
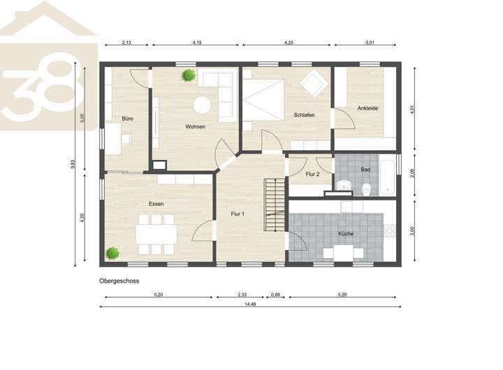
Die zweite Wohneinheit im Obergeschoss ist über das Treppenhaus zugänglich. Sie bietet ebenfalls ein Esszimmer, ein geräumiges Wohnzimmer und eine eigene Küche. Zusätzlich stehen Ihnen ein Büro für ungestörtes Arbeiten sowie ein Schlafzimmer mit Ankleidezimmer zur Verfügung. Das zugehörige Badezimmer ist mit einer Dusche ausgestattet.
Das Dachgeschoss ist aktuell nicht ausgebaut und bietet eine enorme Reservefläche (ca. 90 m² mindestens) für weiteren Wohnraum oder ein großzügiges Studio. Das Herzstück des Außenbereichs bildet das riesige Grundstück mit der großen Scheune und den Stallungen, welche vielfältige Nutzungsmöglichkeiten, beispielsweise für Handwerksbetriebe, Oldtimer oder Pferdehaltung, eröffnen. Für Ihre Fahrzeuge sind Außenstellplätze direkt am Haus vorhanden.
Dieses Anwesen ist ideal für Großfamilien, Mehrgenerationenwohnen oder die Kombination von Wohnen und Arbeiten unter einem Dach. Es ist eine einmalige Gelegenheit, historischen Charme mit ländlicher Freiheit zu verbinden – ideal für jemanden, der bereit ist, in die Sanierung zu investieren und so ein einzigartiges Zuhause zu schaffen.
Zweifamilienhaus mit 3.000 m² Grundstück und Scheune! Meine Immobilie = Mein Partner!
38165 Lehre
Die vollständige Adresse der Immobilie erhalten Sie vom Anbieter.
Auf Karte anzeigen
Die vollständige Adresse der Immobilie erhalten Sie vom Anbieter.
Finanzierungszertifikat
In nur zwei Minuten zu Ihrem persönlichen Finanzierungszertifkat.
Infos
| Haustyp | Mehrfamilienhaus |
|---|---|
| Etagenzahl | 1 |
| Wohnfläche ca. | 240 m2 |
| Grundstücksfläche | 3.000 m2 |
| Bezugsfrei ab | sofort |
| Zimmer | 8 |
| Schlafzimmer | 2 |
| Badezimmer | 2 |
| Anzahl Garage/Stellplatz | 1 |
Kosten
| Kaufpreis |
397.000 € |
|---|---|
| Provision |
3,75 % Käuferprovision inklusive Umsatzsteuer. Die Käufer-Provision beträgt 3,75 % vom Kaufpreis inkl. MwSt. Die Käufer-Provision ist verdient und fällig mit notarieller Beurkundung. |
Finanzierungsrechner:
Kaufpreis:
600.000 €
Eigenkapital:
600.000 €
Monatliche Rate
0 €
Effektiver Jahreszins
0 %
Sollzinsbindung
10 Jahre
Bausubstanz & Energieausweis
| Baujahr | 1900 |
|---|---|
| Bauphase | Haus fertig gestellt |
| Objektzustand | Renovierungsbedürftig |
| Qualität der Austattung | Normal |
| Heizungsart | Gas-Heizung |
| Wesentliche Energieträger | Gas |
| Energieausweis | liegt vor |
| Energieausweistyp | Bedarfsausweis |
Beschreibung des Objekts
Ausstattung
+ Zweifamilienhaus
+ 240 m² Wohnfläche
+ Ausbaureserve (ca. 90 m² Dachgeschoss)
+ 3.000 m² Grundstücksfläche
+ ca.1500m² potentielles Bauland
+ mehrere Außenstellplätze
+ Garage
+ Scheune und Stallungen
+ Kellerraum
Lage
Groß Brunsrode ist ein Ortsteil der Gemeinde Lehre im Landkreis Helmstedt in Niedersachsen und liegt in einer attraktiven Pendlerlage, da es sich nahezu auf halber Strecke zwischen den beiden Großstädten Braunschweig und Wolfsburg befindet. Die Entfernung zu beiden Oberzentren beträgt jeweils nur rund 13 Kilometer, was eine schnelle Anbindung an die dortigen Arbeitsmärkte und die vielfältigen kulturellen sowie infrastrukturellen Angebote ermöglicht.
Die Ortschaft ist landschaftlich geprägt durch die typische Region des Ostbraunschweiger Flachlands. Das Ortsbild selbst zeichnet sich durch einen historisch gewachsenen Kern aus, in dem noch zahlreiche große Bauernhöfe und die neuromanische Dorfkirche zu finden sind, was dem Ort einen traditionellen, ländlichen Charakter verleiht. Das Dorf ist über Kreisstraßen mit den umliegenden Ortschaften und der Gemeinde Lehre verbunden. Nördlich liegt das kleinere Klein Brunsrode in nur etwa zwei Kilometern Entfernung.
Die Lage profitiert von der Nähe zu wichtigen Verkehrsachsen, da die Bundesautobahnen A2 (Hannover–Berlin) und A39 (Braunschweig–Wolfsburg) in komfortabler Reichweite liegen und somit eine ausgezeichnete regionale und überregionale Verkehrsanbindung gewährleisten. Die dörfliche Ruhe kombiniert sich hier mit der schnellen Erreichbarkeit städtischer Zentren, was Groß Brunsrode zu einem beliebten Wohnort für Berufspendler macht.
Sonstige Angaben
Gerne laden wir Sie zu einer Besichtigung ein, um Ihnen vielleicht Ihr neues Zuhause bekannt zu machen.
Bei Interesse und zur Vereinbarung von Besichtigungsterminen setzen Sie sich bitte mit uns über das Kontaktformular in Verbindung. Bitte geben Sie hierbei Ihre vollständige Kontaktadresse an. Unvollständige Anfragen werden nicht bearbeitet.
Unser Angebot ist nur für den Empfänger bestimmt. Da die in diesem Exposé enthaltenen Angaben auf Informationen des Eigentümers beruhen, können wir für die Richtigkeit trotz aller Sorgfalt keine Gewähr übernehmen. Hierfür bitten wir höflich um Ihr Verständnis.
Die Datenverarbeitung erfolgt auf Grundlage von Art. 6 Abs. 1 lit. b) DSGVO. Sie müssen dabei diejenigen personenbezogenen Daten angeben, die für die Bearbeitung Ihres jeweiligen Anliegens bzw. die Vorbereitung oder Durchführung der Geschäftsbeziehung mit Ihnen erforderlich sind. Ohne diese Daten werden wir nicht in der Lage sein, Ihre Anfrage zu bearbeiten bzw. den Vertrag mit Ihnen zu erfüllen. Ich stimme daher zu, das OM Immobilienmanagement meine personenbezogenen Daten im Einzelfall z.B. bei Kauf- oder Mietvertragsabschlüssen abspeichert und an Dritte (Eigentümer/Notar/Behörden) übermitteln darf.
Adresse
38165 Lehre
Interessante Orte
Preis- und Lageinformationen
Preistrend für Bestandsimmobilien in Lehre