Großzügige Fenster/Fenstertüren schaffen lichtdurchflutete, helle Räume sowie einen herrlichen Blick ins Grüne. Im Erdgeschoss befindet sich der großzügige offene Wohn-Essbereich, dessen Glasfronten den Blick in die Natur ermöglichen. Ein Gäste WC im Erdgeschoss, könnte auch durch ein Dusch/WC erweitert werden.
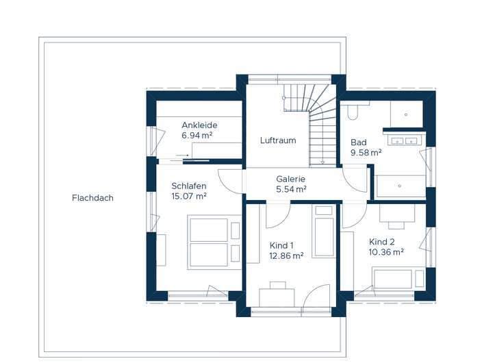
Im Obergeschoss, befindet sich ein großes Elternschlafzimmer und zwei Kinderzimmer, sowie das Bad mit Badewanne, Waschbecken, WC und WM Anschluss. Hochwertige Materialien und ausgewählte Markenprodukte sorgen für höchstes Wohnvergnügen.
Beim Grundriss und Aussehen Ihres Einfamilienhauses, können Sie selbst noch mitbestimmen. Ebenso können Sie bei diesem exklusiven Bauvorhaben bei der Ausstattung noch Ihre individuellen Wünsche einfließen lassen.
Eine nachhaltige und energieeffiziente Bauweise, steht für ein gleichermaßen gutes ökonomisches wie ökologisches Konzept. Das innovative Energiekonzept gewährleistet extrem niedrige Betriebskosten.
So könnte IHR neues Einfamilienhaus in bester Energieeffizienzklasse KfW 40plus aussehen.
Es handelt sich hierbei um eine Beispielprojektierung.
Eine Terrassenüberdachung, sowie ein Carport, können Sie optional mit dazu erwerben
Die ökologische Gebäudehülle mit hervorragendem U-Gefach-Wert, in Verbindung mit modernster Haustechnik, garantiert Ihnen ein angenehmes Wohnklima und dabei minimale Betriebskosten, bis hin zu einem
Null-Euro-Energiekostenhaus für 6 Jahre garantiert
KAMPA baut serienmäßig in Holzständerbauweise, Thermodach, sowie 3-fach verglaste Fenster, außen Alu und das alles bei einer wärmebrückenfreien Konstruktion, garantiert und zertifiziert. Der geringe Heizenergiebedarf wird effizient mit einer Luft/Wasser Wärmepumpe, in Verbindung mit einer Wohnraumbelüftung realisiert, Heizsystem. Die Wärmeabgabe erfolgt flächendeckend über eine Fußbodenheizung /Fußbodenkühlung, wobei jeder Raum selbstverständlich separat temperiert werden kann. Nachhaltiges Bauen bedeutet für Sie, auch in Zukunft eine sehr hohe Wertstabilität Ihres Eigenheims, bezogen auf die entstehenden Energieeffizienzauflagen und die Verwendung von umweltschonenden Materialien. Hierfür haben Sie auch die Möglichkeit u.a. mit QNG Zertifizierung interessante Förderungen zu bekommen
Sie haben ein Grundstück? Wir haben IHR Traumhaus
83395 Freilassing
Die vollständige Adresse der Immobilie erhalten Sie vom Anbieter.
Auf Karte anzeigen
Die vollständige Adresse der Immobilie erhalten Sie vom Anbieter.
Finanzierungszertifikat
In nur zwei Minuten zu Ihrem persönlichen Finanzierungszertifkat.
Infos
| Haustyp | Einfamilienhaus |
|---|---|
| Etagenzahl | 2 |
| Wohnfläche ca. | 130 m2 |
| Nutzfläche | 141 m2 |
| Grundstücksfläche | 500 m2 |
| Bezugsfrei ab | 2026 |
| Zimmer | 6 |
| Schlafzimmer | 3 |
| Badezimmer | 1 |
Kosten
| Kaufpreis |
495.000 € |
|---|---|
| Provision | Nein |
Finanzierungsrechner:
Kaufpreis:
600.000 €
Eigenkapital:
600.000 €
Monatliche Rate
0 €
Effektiver Jahreszins
0 %
Sollzinsbindung
10 Jahre
Bausubstanz & Energieausweis
| Baujahr | 2026 |
|---|---|
| Bauphase | Haus in Planung (projektiert) |
| Objektzustand | Erstbezug |
| Qualität der Austattung | Gehoben |
| Heizungsart | Fußbodenheizung |
| Wesentliche Energieträger | Solarheizung |
| Energieausweis | liegt vor |
| Energieausweistyp | Bedarfsausweis |
Beschreibung des Objekts
Ausstattung
In diesem Angebot enthalten
* KEIN Baugrundstück
* Fast schlüsselfertig/inkl. Materialpakete
(alternativ belagsfertig oder schlüsselfertig)
*Thermobodenplatte
(alternativ Thermokeller oder Wohnkeller)
* Holzständer-Wandsystem mit besten Dämmwerten, hinterlüfteter Designebene
* Photovoltaik 8,9p. +10kW Speicher
* 3-Scheiben-Thermoverglasung mit Aluschale
* Elektrische Alu-Rollläden
* Thermodach
* Erhöhter Einbruchschutz durch Pilzkopfzapfenverriegelung bei
Fenster, Terassentüren sowie Haustüre
* Fußbodenheizung in jedem Wohnraum inkl. Einzelraum-Steuerung u. Fußbodenkühlung
*Eichenparkettboden
*Hochwertige Fliesen
* Zentrale Komfortlüftung mit Wärmerückgewinnung für ein perfektes
Raumklima
* Viessmann Haustechnik
* TV und Netzwerkverkabelung in jedem Wohnraum
* Vollholztreppe in Eiche
* Blower-Door-Test
* Zinsvorteile
* Finanzierungs/Fördermittelexperten
Wir versprechen den Einsatz renommierter, namhafter Hersteller.
Eine Thermogedämmte Gebäudehülle, plus eigene Stromerzeugung mit Speicher, garantiert Ihnen in Zukunft Ihre Betriebskosten auf ein Minimum zu reduzieren, bzw. bis zu 6 Jahre Null Euro Energiekosten möglich!
Terrassenvordach und Carport Überdachungen können mit angeboten werden (zb. wie lt. Abbildung)
Gerne informieren wir Sie hierzu.
Lage
Wo Ihr Grundstück sich befindet ;)
Die Bebaubarkeit dieses Hauses, muss an die Anforderungen Ihres Grundstückes abgeklärt werden.
Sonstige Angaben
Diese Darstellung ist eine Projektierungsmöglichkeit!
Ihre Wünsche und Bedürfnisse können wir gerne, im Rahmen einer individuellen Bedarfsanalyse berücksichtigen:
Sie hätten gerne eine Sauna, einen Kamin, einen Balkon oder einen Wintergarten? Wir lassen Ihre Träume wahr werden.
Nutzen Sie unsere kostenlose und unverbindliche Finanzierungs/Fördermittelberatung!
Bei dem hier beworbenen Angebot handelt es sich um eine Beispielbebauung ohne Grundstück und ohne Carport/Terrassenüberdachung !
KAMPA GmbH tritt ausschließlich als das bauausführende Unternehmen auf.
Lassen Sie uns bei konkretem Interesse, über Ihr Bauvorhaben sprechen.
Wir sind stets bemüht, mit größter Sorgfalt tätig zu sein, bitten jedoch um Verständnis, sollte sich ein Fehler im Exposé eingeschlichen haben.
- Hierfür übernehmen wir keine Haftung
Weitere Dokumente
Architecture of tomorrow BroscGrundriss
Grundriss OG Concept 2.1
>
>
Grundrisse EG Concept 2.1
>
>
Adresse
83395 Freilassing
Interessante Orte
Preis- und Lageinformationen
Preistrend für Bestandsimmobilien in Freilassing