Attraktives Grundstück mit Altbestand in ruhiger Lage von Schmidham (Gemeinde Valley)
– Teilbar & bebaubar mit zwei Einfamilienhäusern –
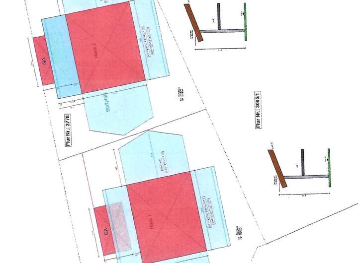
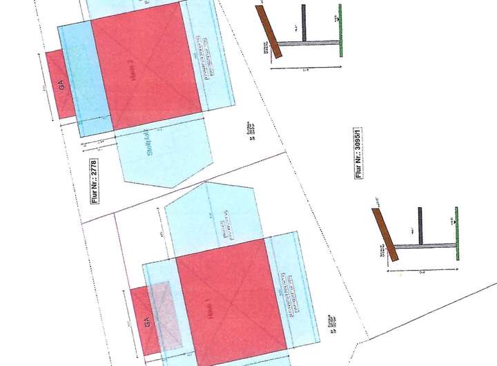
Zum Verkauf steht ein ca. 842 m² großes Grundstück im schönen Ortsteil Schmidham der Gemeinde Valley im oberbayerischen Landkreis Miesbach. Das Grundstück befindet sich im Innenbereich gemäß § 34 BauGB und bietet somit vielfältige Bebauungsmöglichkeiten im Einklang mit der umliegenden Bebauung.
Derzeit befindet sich auf dem Grundstück ein Bestandsgebäude, das noch für etwa 1 Jahr bewohnt wird. Für diese Übergangszeit wird eine Mietzahlung vereinbart. Dies ermöglicht dem Käufer eine langfristige Planung – ideal für Investoren, Bauherren oder Familien, die ein Projekt in sonniger und naturnaher Lage realisieren möchten.
Ein besonderes Highlight: Das Grundstück ist teilbar und eine Bebauung mit zwei Einfamilienhäusern ist nach aktuellem Stand möglich (vorbehaltlich einer finalen Klärung mit der zuständigen Baubehörde). Somit bietet sich hier eine seltene Gelegenheit für eine Doppelbebauung oder Mehrgenerationenlösung.
Grundstücksdaten:
* Grundstücksfläche: ca. 842 m²
* Lage: Innenbereich nach §34 BauGB
* Teilbar: ja
* zwei EfH (nach Rücksprache mit dem Bauamt)
* Altbestand: vorhanden,
* Mietregelung: Mietzahlung für - ein -Jahr durch aktuelle Bewohner wird vereinbart
Fazit:
Ein außergewöhnliches Angebot für Investoren, Familien oder Bauträger: ein großzügiges Grundstück mit Altbestand in begehrter Lage – teilbar und mit Potenzial zur Neubebauung. Die ruhige Umgebung, die Nähe zur Natur und die gute Anbindung machen diese Immobilie zu einer seltenen Gelegenheit im Raum Miesbach.
Attraktives Grundstück mit Altbestand in sonniger Lage von Schmidham (Gemeinde Valley) –Teilbar
83626 Valley
Die vollständige Adresse der Immobilie erhalten Sie vom Anbieter.
Auf Karte anzeigen
Die vollständige Adresse der Immobilie erhalten Sie vom Anbieter.
Finanzierungszertifikat
In nur zwei Minuten zu Ihrem persönlichen Finanzierungszertifkat.
Infos
| Vermarktungsart | Kaufen |
|---|---|
| Grundstücksfläche | 842 m2 |
| Erschließung | Erschlossen |
| Empfohlene Nutzung | Einfamilienhaus |
Kosten
| Miete pro Jahr |
926.000 € |
|---|---|
| Provision |
2,62 % Käuferprovision |
Finanzierungsrechner:
Kaufpreis:
600.000 €
Eigenkapital:
600.000 €
Monatliche Rate
0 €
Effektiver Jahreszins
0 %
Sollzinsbindung
10 Jahre
Beschreibung des Objekts
Lage
Lagebeschreibung – Gemeinde Valley / Ortsteil Schmidham
Schmidham ist ein idyllisch gelegener Ortsteil der Gemeinde Valley und liegt inmitten der reizvollen Voralpenlandschaft des oberbayerischen Landkreises Miesbach. Die Umgebung ist geprägt von Wiesen, Wäldern und einem hohen Freizeitwert – perfekt für Naturliebhaber und Ruhesuchende.
Die Gemeinde Valley selbst zeichnet sich durch ihren dörflichen Charme, ein reges Vereinsleben und eine familienfreundliche Infrastruktur aus. Sie liegt verkehrsgünstig zwischen Holzkirchen und Miesbach mit guter Anbindung an die A8 München – Salzburg sowie an den öffentlichen Nahverkehr (z. B. über den Bahnhof Mitterdarching oder Holzkirchen nach München und Rosenheim).
Schulen, Kindergärten, Einkaufsmöglichkeiten und Ärzte befinden sich in den umliegenden Ortschaften und sind in wenigen Minuten erreichbar. München ist mit dem Auto in etwa 30–40 Minuten zu erreichen – ideal für Pendler, die naturnah wohnen möchten und die Nähe zu Naherholungsgebiete wie z.B. den Taubenberg oder einen nahe gelegenen Badeweier zu schätzen wissen.
Sonstige Angaben
Zur Beantwortung Ihrer Fragen sowie zur Vereinbarung eines Besichtigungstermins stehe ich Ihnen gerne und jederzeit unter 0176/64343052 zur Verfügung.
Ich freue mich auf Ihren Anruf.
Thomas Thau
Grundriss
Beispiel
>
>