Das im Kronthal gelegene Haus ist 1979 vom iranischen Architekten Safainia entworfen worden: ein Designerhaus mit hellen Räumen, Blick ins Grüne und großzügiger Aufteilung, das auf vier Ebenen und über 3500 m² Grundstücksfläche viele Möglichkeiten für eine freie persönliche Ausgestaltung eröffnet.
Das Haus steht auf einem Grundstück mit Garten, Wald und Burgblick: eine große Obstwiese und nach unten zum Bach hin ein Waldgrundstück mit 17 teilweise jahrhundertealten Esskastanien ergeben ein grünes Ensemble an der Bebauungsgrenze von Kronberg. Hier kann man in Ruhe wohnen und arbeiten.
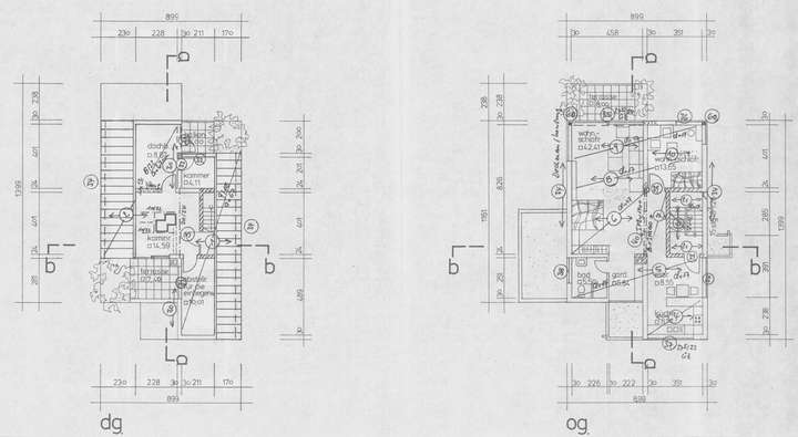
Aufgrund des separaten Treppenhauses eignen sich sowohl die mittlere Etage als auch das Dachgeschoss als Einliegerwohnung bzw. separater Arbeitsbereich mit großen Räumen und viel Platz.
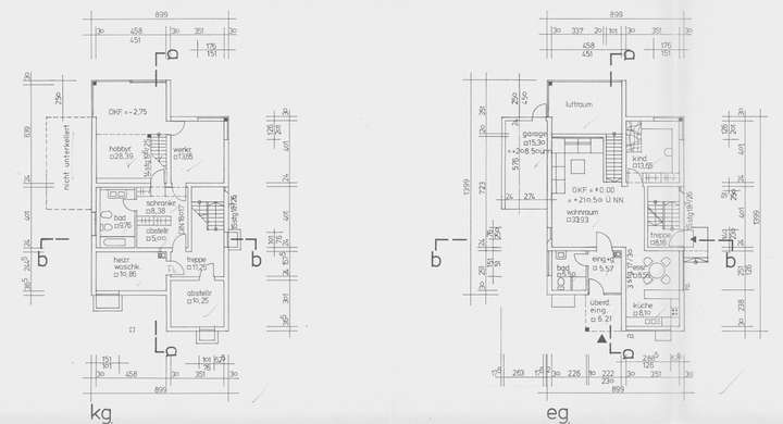
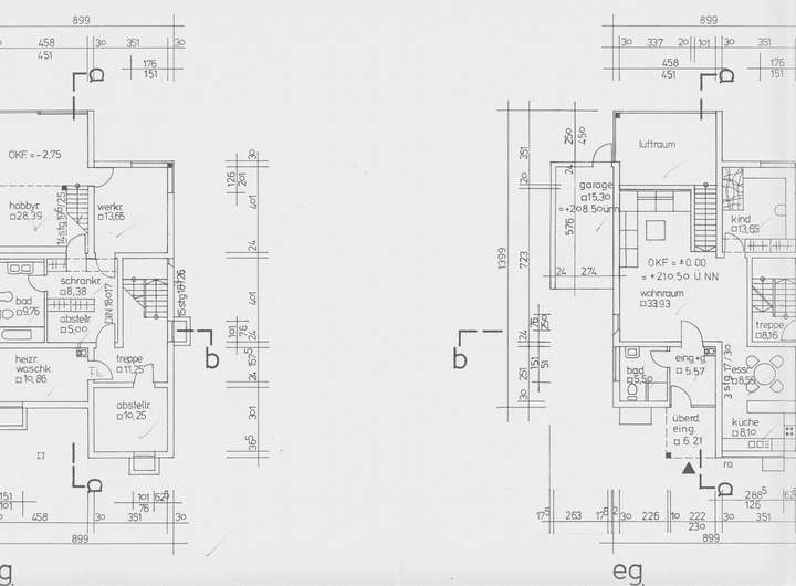
Auf allen vier Etagen gibt es Badezimmer und auf dreien die Möglichkeit, eine Küche einzurichten. Momentan steht eine Küche im Erdgeschoss (vgl. Foto).
Der originelle Zuschnitt bietet auf drei Ebenen zusammenhängende, großzügige Wohn- oder Arbeitsbereiche mit kleineren, angrenzenden Zimmern für Küche, Essen und Schlafen.
Im Erdgeschoss führt die Küche direkt auf eine Sonnenterrasse mit angrenzendem Obstgarten. Das Haus verfügt außerdem über vier Balkone auf verschiedenen Seiten, zwei mit Blick auf die Kronberger Burg.
Das geräumige Wohnzimmer mit Kamin schließt mit einer Galerie zum großartigen Wintergarten ab, der über zwei Stockwerke reicht und mit vier enormen Glasfenstern den Blick auf den hinterm Haus gelegenen Kastanienwald öffnet. Über eine Treppe oder den Lift im Wintergarten gelangt man nach unten und zur Gartenterrasse direkt hinterm Haus.
Wohnen und Arbeiten im Grünen - EFH mit Einliegerwohnung (provisionsfrei)
Unterer Thalerfeldweg 17,
61476 Kronberg im Taunus
Auf Karte anzeigen
Finanzierungszertifikat
In nur zwei Minuten zu Ihrem persönlichen Finanzierungszertifkat.
Infos
| Haustyp | Einfamilienhaus |
|---|---|
| Etagenzahl | 4 |
| Wohnfläche ca. | 293 m2 |
| Nutzfläche | 43 m2 |
| Grundstücksfläche | 3.500 m2 |
| Bezugsfrei ab | 1.1.2026 |
| Zimmer | 11 |
| Schlafzimmer | 3 |
| Badezimmer | 4 |
| Garage/Stellplatz | Garage |
| Anzahl Garage/Stellplatz | 1 |
Kosten
| Kaufpreis |
1.590.000 € |
|---|---|
| Provision | Nein |
Finanzierungsrechner:
Kaufpreis:
600.000 €
Eigenkapital:
600.000 €
Monatliche Rate
0 €
Effektiver Jahreszins
0 %
Sollzinsbindung
10 Jahre
Bausubstanz & Energieausweis
| Baujahr | 1979 |
|---|---|
| Letzte Sanierung | 2016 |
| Bauphase | Haus fertig gestellt |
| Objektzustand | Renovierungsbedürftig |
| Qualität der Austattung | Normal |
| Heizungsart | Gas-Heizung |
| Wesentliche Energieträger | Gas |
| Energieausweis | liegt vor |
| Energieausweistyp | Bedarfsausweis |
| Energieverbrauchskennwert | 229,7 kWh/(m²*a) |
| Energieeffizienzklasse | G |
229,7
kWh/(m²*a)
Energieeffizienzklasse G
- A+
- A
- B
- C
- D
- E
- F
- G
- H
- 0
- 25
- 50
- 75
- 100
- 125
- 150
- 175
- 200
- 225
- >250
Beschreibung des Objekts
Ausstattung
1 Kamin, 1 Lift im Erdgeschoss (Wintergarten), 1 Garage und zwei externe Stellplätze, 3xInternet (Glasfaseranschluss), 1 Wintergarten, 2 Terrassen, 4 Balkone, Boden mit Terracotta-Fliesen und teilweise Laminat, Gasheizung von 2010, Dach 2016 renoviert
Lage
Die einzigartige Lage in der freien Natur lässt schnell vergessen, dass man so nahe zur Frankfurter Stadtmitte wohnt (Entfernung ca. 17 km). Die Kronberger Altstadt, weitere Esskastanienwälder und der kinderfreundliche Opel-Zoo laden zum Spazierengehen oder Spielen ein.
Drei eigene Parkplätze einschließlich der Garage werden von zwei öffentlichen auf der Spielstraße ergänzt. Weitere Parkplätze ließen sich evtl. auf dem angrenzenden Grundstück einrichten, dass ein Tor zur Straße hat.
Die S-Bahn-Station von Kronberg liegt 1,5 km oder 21 Minuten zu Fuß entfernt; der REWE-Markt 1,1 km oder 17 Gehminuten; die Altkönigschule Kronberg 3 km oder 15 Fahrradminuten.
Sonstige Angaben
Der Angebotspreis gilt bis 03.01.2025.
Das Haus ist auf zwei Etagen barrierearm. Ein Lift im Wintergarten verbindet das Erdgeschoss mit dem gut bewohnbaren Souterrain, in dem sich neben der Bibliothek des Wintergartens ein großes Badezimmer, ein Schrankraum und ein Schlafzimmer befinden.
Der Glasfaseranschluss ‚MyNet600‘ ist gerade für ein Jahr eingerichtet worden und kann von bis zu drei separaten Parteien genutzt werden.
Der Fußboden ist reparaturbedürftig, denn die Terracotta-Fliesen haben Risse bekommen und der darunterliegende Estrich ist teilweise eingebrochen.
Ein Energiesparplan (ESFP) mit mehreren optionalen Modulen liegt vor, so dass man schrittweise Einsparungen herbeiführen kann.
Das Haus ist leerstehend und bezugsfertig, denn es wurde bis 2024 bewohnt; die Renovierung liesse sich auch etagenweise durchführen.
Weitere Dokumente
ESFPGrundriss
Haus im Schnitt I
>
>
Haus im Schnitt II
>
>
EG und KG
>
>
OG und DG
>
>
Adresse
Unterer Thalerfeldweg 17, 61476 Kronberg im Taunus
Interessante Orte
Preis- und Lageinformationen
Preistrend für Bestandsimmobilien in Kronberg im Taunus