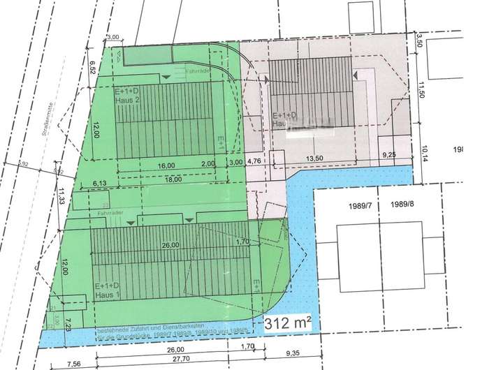
Attraktives Baugrundstück mit genehmigtem Vorbescheid
Bebauung mit zwei Mehrfamilienhäusern und 18 TG-Stellplätzen, sowie 8 oberirdische Stellplätze.
Eckdaten:
Grundstück: ca. 1.450 qm
Wohnfläche: ca. 1.150 qm
+ + + Attraktives Bauträgergrundstück im Herzen von Goldach-Hallbergmoos (S8)
85399 Hallbergmoos
Die vollständige Adresse der Immobilie erhalten Sie vom Anbieter.
Auf Karte anzeigen
Die vollständige Adresse der Immobilie erhalten Sie vom Anbieter.
Finanzierungszertifikat
In nur zwei Minuten zu Ihrem persönlichen Finanzierungszertifkat.
Infos
| Vermarktungsart | Kaufen |
|---|---|
| Grundstücksfläche | 1.450 m2 |
| Empfohlene Nutzung | Mehrfamilienhaus |
Kosten
| Miete pro Jahr |
1.950.000 € |
|---|---|
| Provision |
3,57% vom Kaufpreis inkl. gesetzl. MwSt. Die Käuferprovision beträgt 3,57% inkl. MwSt., verdient und fällig mit Beurkundung des notariellen Kaufvertrags. Der Immobilienmakler hat einen provisionspflichtigen Maklervertrag mit dem Verkäufer in gleicher Höhe abgeschlossen. |
Finanzierungsrechner:
Kaufpreis:
600.000 €
Eigenkapital:
600.000 €
Monatliche Rate
0 €
Effektiver Jahreszins
0 %
Sollzinsbindung
10 Jahre
Beschreibung des Objekts
Lage
Hallbergmoos liegt im Dreieck München - Freising - Erding in unmittelbarer Nachbarschaft zum Münchner Flughafen und befindet sich in einer der zukunftsträchtigsten Regionen im Münchner Norden, mit Anbindung an die S8.
Zum Zentrum der Landeshauptstadt München sind es nur 25 km, zur Kreisstadt Freising 12 km, und nach Erding fährt man etwa 18 km. Zur Gemeinde gehören die Ortsteile Goldach, Birkeneck und Erching sowie einige Einödhöfe.
Der Ort Hallbergmoos liegt auf einer Meereshöhe von 460 m NN. Die weiten Flächen östlich der Isar zwischen Freising und Föhring (am heutigen Münchner Stadtrand) waren seit Jahrhunderten im Besitz der Fürstbischöfe von Freising.
Die Gemeinde Hallbergmoos bietet eine ausgezeichnete Infrastruktur und verfügt über mehrere Kindergärten, Schulen, Einkaufsmöglichkeiten, verschiedene Sport- und Freizeiteinrichtungen sowie eine hervorragende Verkehrsanbindung nach München oder zum außerhalb gelegenen Flughafen über die A92, oder über öffentliche Verkehrsmittel.
Sonstige Angaben
Der Eigentümer hat uns ausdrücklich beauftragt, die Verhandlungen im Rahmen des Alleinauftrages für ihn zu übernehmen. Hinweis: Alle genannten Angaben zum Objekt beruhen auf den Angaben des Eigentümers. Wir können hier im Einzelfall keine Gewähr übernehmen.
Die Provision für unsere Nachweis- bzw. Vermittlungstätigkeit ist vom Käufer zu entrichten. Die Provision beträgt 3,57 % des Kaufpreises inklusive der gesetzlichen MwSt.. Sie ist mit Vertragsabschluss fällig und ist fester Bestandteil des Kaufvertrages.
Kufner Immobilien GmbH
Tel. 08165 - 909600
email: vertrieb@kufner-immobilien.de
IHR KOMPETENTER PARTNER FÜR DEN MÜNCHNER NORDEN UND DEN LANDKREIS.
PROFITIEREN SIE VON UNSERER ÜBER 30-JÄHRIGEN ERFAHRUNG UND REGIONALEN MARKTKENNTNIS.