Das modernisierte Zweifamilienhaus wurde aufwändig saniert. Die Immobilie befindet sich im beliebten Stadtteil Idar, nahe Zentrum mit guten Verbindungen und Einkaufsmöglichkeiten.
Die Sanierungsmaßnahmen lassen keine Wünsche offen. (Neue Fenstern, neue Heizung, sowie neue Strom- und Wasserleitungen). Der Wintergarten wurde neu angebaut und die Böden wurden aufbereitet.
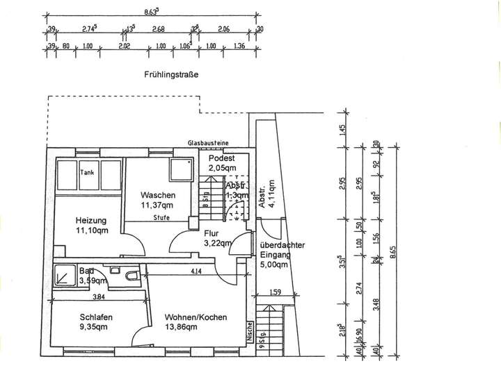
Die Wohnung im Erdgeschoss (ca. 28 m²) besteht aus einem Bad mit Dusche, einem Zimmer und
einer Wohnküche.
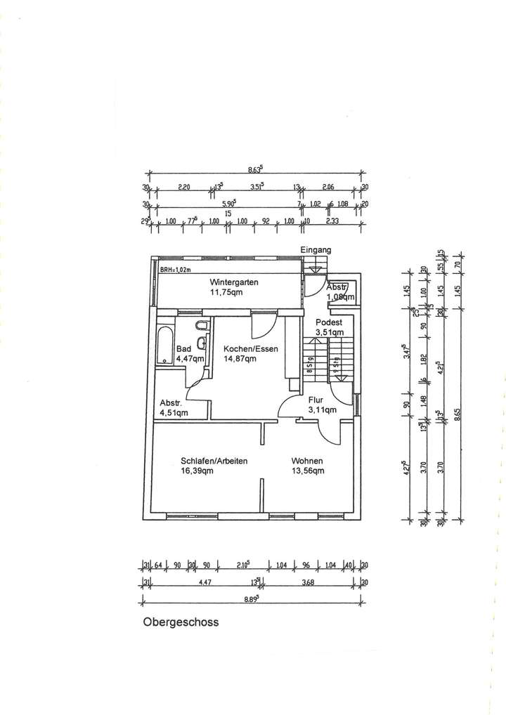
Die Wohnung im 1 OG [ca. 68 m²) hat ein Tageslichtbad mit Wanne, zwei Zimmer, eine Küche mit Einbauküche, eine Abstellkammer
und einen Wintergarten.
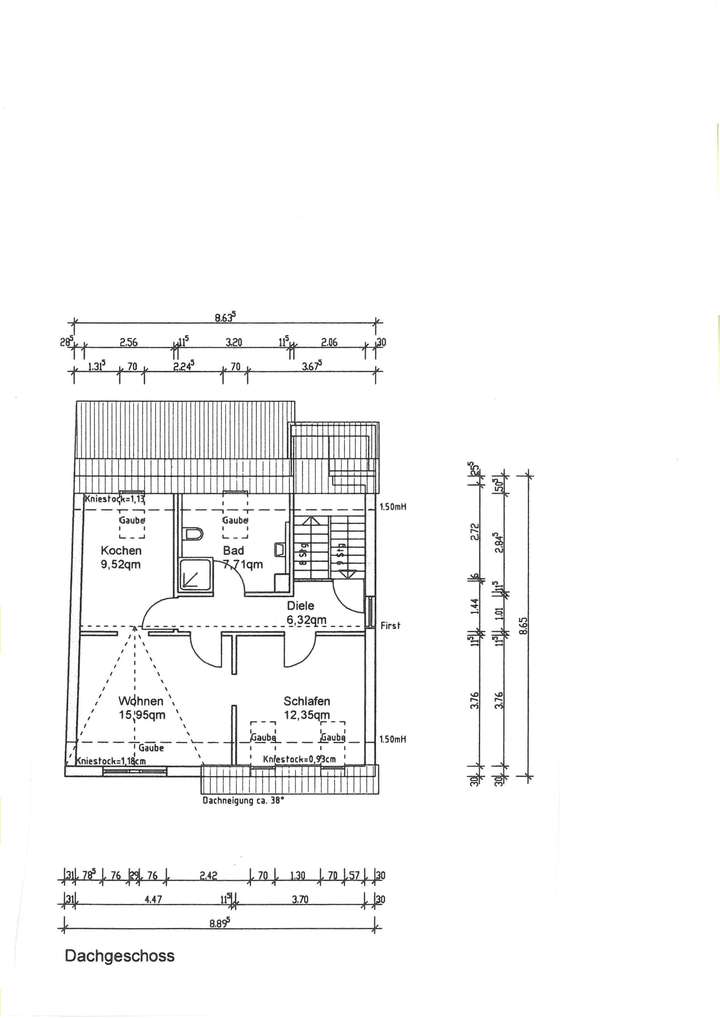
Die Wohnung im Dachgeschoss ( ca. 49 m²) hat ein Tageslichtbad mit Dusche, eine Küche und zwei Zimmer.
Der gemeinsame Waschraum und der Heizungsraum befinden sich im Erdgeschoss.
Das Haus ist in Top zustand und der Preis ist unschlagbar !
1457 Aufwendig Saniert -2 Familienhaus in Idar-Oberstein- für Großfamilien geeignet
55743 Idar-Oberstein
Die vollständige Adresse der Immobilie erhalten Sie vom Anbieter.
Auf Karte anzeigen
Die vollständige Adresse der Immobilie erhalten Sie vom Anbieter.
Finanzierungszertifikat
In nur zwei Minuten zu Ihrem persönlichen Finanzierungszertifkat.
Infos
| Haustyp | Mehrfamilienhaus |
|---|---|
| Wohnfläche ca. | 145 m2 |
| Nutzfläche | 20 m2 |
| Grundstücksfläche | 135 m2 |
| Bezugsfrei ab | nach Vereinbarung |
| Zimmer | 5 |
Kosten
| Kaufpreis |
299.000 € |
|---|---|
| Provision |
5 % inkl. MwSt. Die Provision ist verdient und fällig mit der Beurkundung des Kaufvertrages gemäß §312j Abs.3 BGB |
Finanzierungsrechner:
Kaufpreis:
600.000 €
Eigenkapital:
600.000 €
Monatliche Rate
0 €
Effektiver Jahreszins
0 %
Sollzinsbindung
10 Jahre
Bausubstanz & Energieausweis
| Baujahr | 1913 |
|---|---|
| Qualität der Austattung | Gehoben |
| Heizungsart | Öl-Heizung |
| Wesentliche Energieträger | Öl |
| Energieausweis | liegt vor |
| Energieausweistyp | Bedarfsausweis |
| Energieverbrauchskennwert | 115,8 kWh/(m²*a) |
| Energieeffizienzklasse | D |
115,8
kWh/(m²*a)
Energieeffizienzklasse D
- A+
- A
- B
- C
- D
- E
- F
- G
- H
- 0
- 25
- 50
- 75
- 100
- 125
- 150
- 175
- 200
- 225
- >250
Beschreibung des Objekts
Ausstattung
2016 - 2025 komplette Modernisierung des Hauses
3fach verglaste weiße Kunststofffenster
Viessmann Ölheizung 2016
3 x 1000 l Öltank
Wasserleitung Neu
Stromleitungen Neu
Neue Böden
Innendämmung
Fassade Neu
Bäder Neu
Lage
Idar-Oberstein ist eine verbandsfreie und große kreisangehörige Stadt im Landkreis Birkenfeld in Rheinland-Pfalz. Die Edelstein- und Garnisonsstadt ist mit 30.170 Einwohnern die bevölkerungsreichste Kommune des Landkreises und ein Mittelzentrum.
Idar-Oberstein liegt an der oberen Nahe zwischen dem Hunsrück im Norden und dem Oberen Nahebergland im Süden. Größere Städte in der Umgebung sind Trier (ca. 60 Kilometer westlich), Bad Kreuznach (ca. 50 Kilometer nordöstlich) und Kaiserslautern (ca. 55 Kilometer südöstlich). Die Stadt liegt am Rand des Nationalparks Hunsrück-Hochwald. Die Wasserversorgung bezieht die Stadt aus der Steinbachtalsperre.
(Wikipedia)
Sonstige Angaben
Bei Erstkontakt ist aus datenschutzrechtlichen Gründen
keine telefonische Auskunft möglich. Bitte stellen Sie Ihre Anfrage über das Internet. Vielen Dank für Ihr Verständnis.
Geldwäsche:
Bernd Geib Immobilie ist gemäß §§1,2 Abs. 1 Nr. 10,4 Abs.3 Geldwäschegesetz ( GWG) dazu verpflichtet, vor Begründung einer Geschäftsbeziehung, die Identität des Vertragspartners gemäß der Ausweisdaten festzustellen, zu Überprüfung und die Kopien 5 Jahre aufzubewahren.
Objektnummer: 1457
Die von uns gemachten Informationen beruhen auf Angaben des Verkäufers bzw. der Verkäuferin. Für die Richtigkeit und Vollständigkeit der Angaben kann keine Gewähr bzw. Haftung übernommen werden. Ein Zwischenverkauf und Irrtümer sind vorbehalten. Wir weisen auf unsere Allgemeinen Geschäftsbedingungen hin. Durch weitere Inanspruchnahme unserer Leistungen erklären Sie die Kenntnis und Ihr Einverständnis.
Wohnflächenberechnung nach DIN 277
Grundriss
1457 EG Grundriss
>
>
1457 OG Grundriiss
>
>
1457 DG Grundriss
>
>
Adresse
55743 Idar-Oberstein
Interessante Orte
Preis- und Lageinformationen
Preistrend für Bestandsimmobilien in Idar-Oberstein