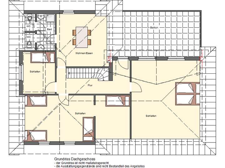
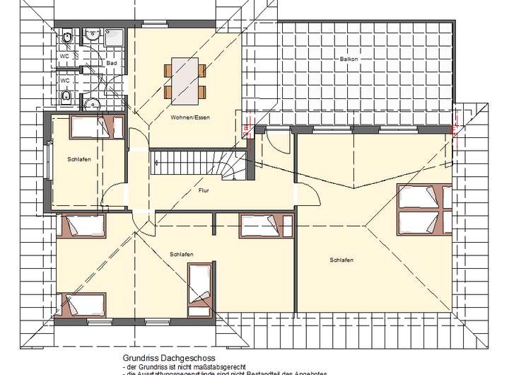
Zweifamilienhaus auf einem 978 m² großem Grundstück. Die Option ein weiteres Gebäude als Hinterhausbebauung zu errichten ist zu prüfen. Die Immobilie wurde im Jahr 1954 errichtet und von den derzeitigen Eigentümern in den Jahren 2022 und 2023 saniert und umgebaut. Das Haus verfügt über sieben Schlafzimmer und zwei Küchen. Die obere Etage ist durch eine Außentreppe zusätzlich erreichbar. Auf dem Grundstück befindet sich eine große Garage/Scheune. Das Haus ist unbefristet an ein Unternehmen vermietet, welches ihre Mitarbeiter dort unterbringt; die Jahresmieteinnahme beträgt 27.600,-- EUR. Für eine erste Kontaktaufnahme stehen wir Ihnen gerne zur Verfügung. Wir freuen uns auf Ihre Anfrage! Sie erreichen uns unter 0177-25 94 209 oder per E-Mail: andre.broekelschen.extern@olb.de.
Kapitalanlage!
49610 Quakenbrück
Die vollständige Adresse der Immobilie erhalten Sie vom Anbieter.
Auf Karte anzeigen
Die vollständige Adresse der Immobilie erhalten Sie vom Anbieter.

Finanzierungszertifikat
In nur zwei Minuten zu Ihrem persönlichen Finanzierungszertifkat.
Infos
Haustyp | Mehrfamilienhaus |
---|---|
Wohnfläche ca. | 254 m2 |
Grundstücksfläche | 978 m2 |
Bezugsfrei ab | 01.05.2023 |
Zimmer | 10 |
Kosten
Kaufpreis |
550.000 € |
---|---|
Provision |
3,57 % inkl. gesetzlicher MwSt. |
Finanzierungsrechner:
Kaufpreis:
600.000 €
Eigenkapital:
600.000 €
Monatliche Rate
0 €
Effektiver Jahreszins
0 %
Sollzinsbindung
10 Jahre
Bausubstanz & Energieausweis
Baujahr | 1954 |
---|---|
Wesentliche Energieträger | Gas |
Beschreibung des Objekts
Lage
Quakenbrück ist eine Kleinstadt mit ca. 14.000 Einwohnern. Aufgrund der günstigen Lage an der B68 sind die Städte Cloppenburg, Oldenburg und Bremen Richtung Norden und Osnabrück und der Flughafen Münster/Osnabrück Richtung Süden gut und schnell erreichbar. In der Stadt und im Umfeld befinden sich mehrere große Unternehmen mit einem hohen Personalbedarf.
Sonstige Angaben
Wichtiger Hinweis: Wir bitten um Verständnis dafür, dass wir detaillierte Informationen zu unseren Objekten nur erteilen, wenn Sie in Ihrer Mail-Anfrage Ihre vollständige Adresse und Ihre Telefonnummer, unter der wir Sie tagsüber erreichen können, angeben. Um unnötige Rückfragen zu vermeiden, füllen Sie das Kontaktformular bitte vollständig aus. Nur so können wir auf Ihre Anfrage schnell reagieren.
Grundriss
Erdgeschoss
>

Dachgeschoss
>

Keller
>

Adresse
49610 Quakenbrück
Interessante Orte
Preis- und Lageinformationen
Preistrend für Bestandsimmobilien in Quakenbrück