Zum Hauptinhalt springen

Gewerbeobjekt in zentraler Lage von Völklingen

Rathausstr 42, 66333 Völklingen
Auf Karte anzeigen
Logo ImmoScout24 Logo ImmoScout24
PDF Finanzierungszertifikat

Finanzierungszertifikat

In nur zwei Minuten zu Ihrem persönlichen Finanzierungszertifkat.

  • Zur Vorlage beim Makler oder Verkäufer
  • Vorteile gegenüber anderen Kaufinteressenten
  • Kostenlos und unverbindlich
Finanzierungszertifikat anfragen

Infos

Etagenzahl 2
Wohnfläche ca. 820 m2
Nutzfläche 1.120 m2
Grundstücksfläche 1.120 m2
Bezugsfrei ab 7.10.2025
Zimmer 1

Kosten

Kaufpreis 680.000 €
Provision Nein

Finanzierungsrechner:

Kaufpreis: 600.000 €

Eigenkapital: 600.000 €
Monatliche Rate 0 €
Effektiver Jahreszins 0 %
Sollzinsbindung 10 Jahre

Lage

                Zentral in der Stadtmitte gelegen mit sehr viel Publikumsverkehr, in fußläufiger Entfernung zu BUs und Bahn.
                

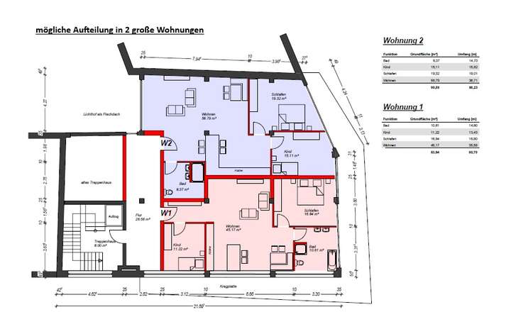
Grundriss

Rathausstraße 42 mögliche Auft Rathausstraße 42 mögliche Auft >
Rathausstraße 42 mögliche Auft Rathausstraße 42 mögliche Auft >
PDF Download

Adresse

Rathausstr 42, 66333 Völklingen

Interessante Orte

Bäckereien
Schulen
Ärzte

Preis- und Lageinformationen

Preistrend für Bestandsimmobilien in Völklingen
Sept. 2022 Sept. 2023 Sept. 2024 Sept. 2025 2.292,80 €/m² 2.242,88 €/m² -2,18 % -2,23 %

Dieser Zeitraum ist nur für eingeloggte User sichtbar.

Jetzt einloggen

Ansprechpartner