Willkommen in Ihrem neuen Zuhause!
Diese vollständig sanierte und bezugsfertige Doppelhaushälfte überzeugt durch ihre moderne Ausstattung, großzügige Raumaufteilung und die einmalige Lage am Waldrand. Ideal für Familien, Naturliebhaber oder Kapitalanleger mit Weitblick.
Etagenaufteilung
Keller:
2 helle Zimmer - ideal als Hobby-, Büro- oder Gästezimmer
Anschlussraum (Hauswirtschaft/Technik)
Kleiner Abstellraum für zusätzliche Lagerfläche
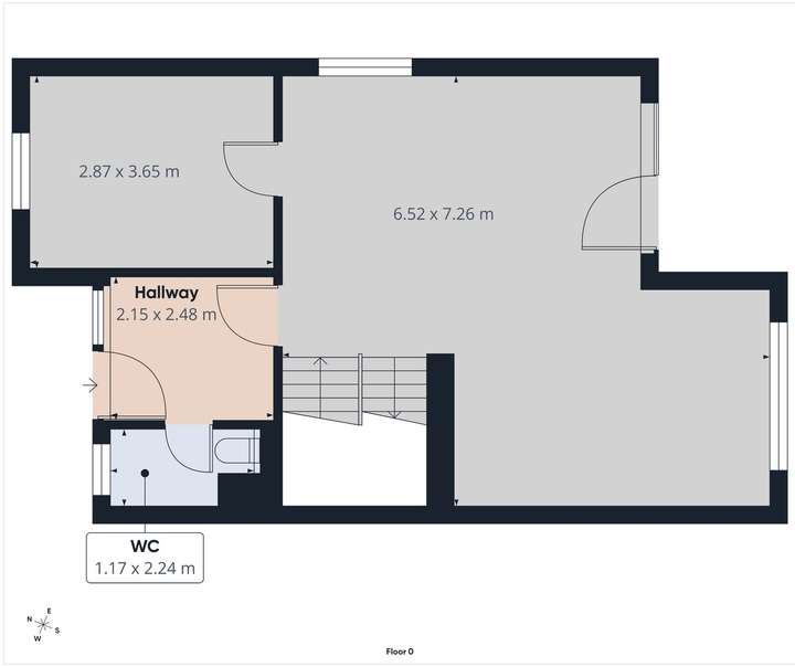
Erdgeschoss:
Eingangsbereich mit Zugang zum Gäste-WC
Separate Küche
Offener Wohn- und Essbereich mit direktem Zugang zur Terrasse und zum Garten - perfekt für Familienfeste oder entspannte Abende
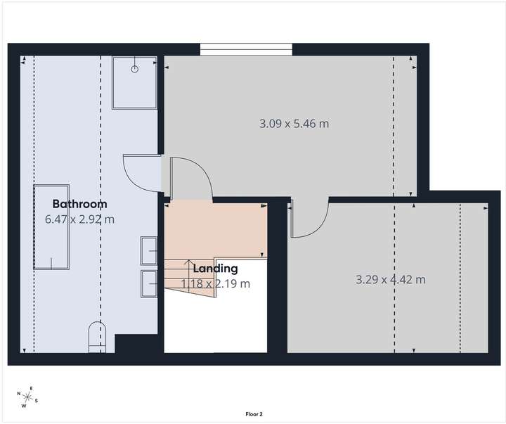
Obergeschoss:
3 Schlafzimmer, davon 2 mit Zugang zum Balkon
Modernes Vollbad mit Eckwanne und Dusche
Dachgeschoss (Elternbereich):
Großes Elternschlafzimmer mit begehbarem Ankleidezimmer
Edles Vollbad mit freistehender Badewanne und Dusche
Warum dieses Haus?
Top-Lage am Waldrand: Ruhe und Natur direkt vor der Haustür - ideal für Spaziergänge und Outdoor-Aktivitäten
Komplett saniert & bezugsfertig: Moderne Ausstattung und hochwertige Materialien
Geräumig & lichtdurchflutet: Großzügige Räume für die ganze Familie
Perfekte Anbindung: Schneller Zugang zu öffentlichen Verkehrsmitteln und Autobahnen
Investitionschance: Stabiler Wertzuwachs in einem begehrten Viertel
Verpassen Sie nicht die Gelegenheit, dieses Schmuckstück zu Ihrem neuen Zuhause zu machen. Kontaktieren Sie uns für eine Besichtigung!
DHH in Kaiserslautern - Erstbezug nach Sanierung, Toplage am Waldrand
Husarenäcker 46,
67659 Kaiserslautern
Auf Karte anzeigen
Finanzierungszertifikat
In nur zwei Minuten zu Ihrem persönlichen Finanzierungszertifkat.
Infos
| Haustyp | Doppelhaushaelfte |
|---|---|
| Etagenzahl | 4 |
| Wohnfläche ca. | 232 m2 |
| Nutzfläche | 6 m2 |
| Grundstücksfläche | 337 m2 |
| Bezugsfrei ab | sofort |
| Zimmer | 6 |
| Schlafzimmer | 6 |
| Badezimmer | 2 |
| Garage/Stellplatz | Außenstellplatz |
| Anzahl Garage/Stellplatz | 3 |
Kosten
| Kaufpreis |
598.000 € |
|---|---|
| Provision | Nein |
Finanzierungsrechner:
Kaufpreis:
600.000 €
Eigenkapital:
600.000 €
Monatliche Rate
0 €
Effektiver Jahreszins
0 %
Sollzinsbindung
10 Jahre
Bausubstanz & Energieausweis
| Baujahr | 1980 |
|---|---|
| Bauphase | Haus fertig gestellt |
| Objektzustand | Saniert |
| Wesentliche Energieträger | Umweltwärme |
| Energieausweis | liegt vor |
| Energieausweistyp | Bedarfsausweis |
| Energieverbrauchskennwert | 62,8 kWh/(m²*a) |
| Energieeffizienzklasse | B |
62,8
kWh/(m²*a)
Energieeffizienzklasse B
- A+
- A
- B
- C
- D
- E
- F
- G
- H
- 0
- 25
- 50
- 75
- 100
- 125
- 150
- 175
- 200
- 225
- >250
Beschreibung des Objekts
Ausstattung
Balkon, Terrasse, Garten, Keller, Vollbad, Duschbad, Gäste-WC, Laminat, Fliesen
Bemerkungen:
Die Immobilie wurde umfassend modernisiert und befindet sich nach der Sanierung im Erstbezug:
- Haus komplett entkernt und neu aufgebaut
- Neues Dach und erneuerte Fassade
- Außenanlage vollständig neu angelegt
- Neue Fenster und Haustür mit modernem PIN-Code-System
- Neuer Fußbodenaufbau (Estrich) mit Fußbodenheizung und optionaler Kühlfunktion
- Sanitär- und Elektroinstallationen (Vorbereitung für PV-Anlage vorhanden) vollständig erneuert
- Satellitenschüssel für TV neu montiert und auf alle Schlafzimmer verlegt, in allen Schlafzimmer LAN Anschlüsse verbaut sowie zusätzlich auf den einzelnen Etagen zur Anbringung für Repeater, um das Signal zu verstärken
- Neue Bodenbeläge und frisch verputzte, tapezierte und gestrichene Wände
- Gasanschluss vorhanden, aber durch moderne Luft-/Wasser-Wärmepumpe (Viessmann) ersetzt
Diese Maßnahmen garantieren Ihnen einen niedrigen Energieverbrauch, hohen Wohnkomfort und einen modernen Wohnstandard.
Lage
Die Immobilie liegt im beliebten Stadtteil Erlenbach, direkt am Pfälzer Wald - ideal für Spaziergänge und Outdoor-Aktivitäten. Dank der Lage an einem Wendehammer profitieren Sie von einer sehr geringen Verkehrsbelastung. Einkaufsmöglichkeiten, Kindergarten, Schulen und öffentliche Verkehrsmittel befinden sich in unmittelbarer Nähe.
Infrastruktur (im Umkreis von 5 km):
Apotheke, Lebensmittel-Discount, Allgemeinmediziner, Kindergarten, Grundschule, Öffentliche Verkehrsmittel
Sonstige Angaben
Heizungsart: Fußbodenheizung
Makleranfragen nicht erwünscht. Nach § 7 UWG sind unaufgeforderte Kontaktaufnahmen durch Makler ohne ausdrückliche Einwilligung des Empfängers verboten!
ohne-makler (OM) ist weder Anbieter noch Vermittler der Immobilie. OM betreibt eine Plattform für Immobilieneigentümer, die unter anderem die gleichzeitige Veröffentlichung einzelner Inserate auf mehreren Immobilienportalen ermöglicht. Die Inhalte dieser Inserate werden ausschließlich von Dritten verantwortet. Für die Richtigkeit, Vollständigkeit oder Rechtmäßigkeit der Angaben übernimmt OM keine Haftung. Hinweise auf mögliche Rechtsverstöße können jederzeit gemeldet werden und werden nach Prüfung umgehend bearbeitet.
Grundriss
Keller
>
>
Erdgeschoss
>
>
Obergeschoss
>
>
Dachgeschoss
>
>
Gesamtübersicht
>
>
Adresse
Husarenäcker 46, 67659 Kaiserslautern
Interessante Orte
Preis- und Lageinformationen
Preistrend für Bestandsimmobilien in Erlenbach