Dieses Baugrundstück in dem schönen Heideörtchen Hermannsburg bietet eine ideale Gelegenheit, Ihr Traumhaus zu verwirklichen. Mit einer Gesamtfläche von 475 m² bietet es ausreichend Platz für ein freistehendes Einfamilienhaus, einen großzügigen Garten und weitere Gestaltungsmöglichkeiten nach Ihren Wünschen. Die Erschließung des Grundstücks ist bereits geplant, sodass Sie kurzfritig mit der Planung und dem Bau beginnen können.
Der Kaufpreis beinhaltet den Grundstückskaufpreis und den Kaufpreis für den Bungalow „FAMILY108“ .
Ausstattung:
• ThermoBodenplatte WU-Beton
• Massive Außen- und Innenwände im EG aus Poroton-Ziegel
• Luft-Wasser-Wärmepumpe
• Fußbodenheizung
• 3-fach verglaste Premium-Fenster mit abschließbaren Fenstergriffen im EG.
Bungalow INDIVIDUELL. SOLIDE. BEZAHLBAR. inkl. Grundstück
29320 Hermannsburg
Die vollständige Adresse der Immobilie erhalten Sie vom Anbieter.
Auf Karte anzeigen
Die vollständige Adresse der Immobilie erhalten Sie vom Anbieter.
Finanzierungszertifikat
In nur zwei Minuten zu Ihrem persönlichen Finanzierungszertifkat.
Infos
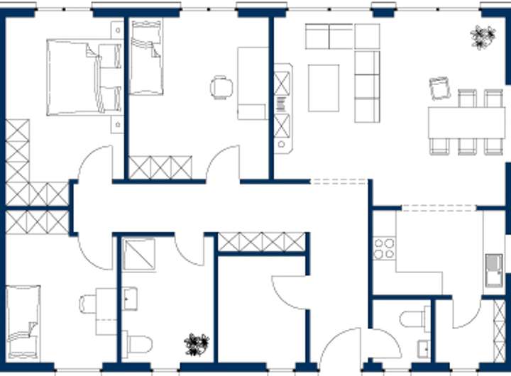
| Haustyp | Bungalow |
|---|---|
| Etagenzahl | 1 |
| Wohnfläche ca. | 108 m2 |
| Grundstücksfläche | 477 m2 |
| Zimmer | 4 |
| Schlafzimmer | 3 |
| Badezimmer | 1 |
Kosten
| Kaufpreis |
278.900 € |
|---|---|
| Provision | Nein |
Finanzierungsrechner:
Kaufpreis:
600.000 €
Eigenkapital:
600.000 €
Monatliche Rate
0 €
Effektiver Jahreszins
0 %
Sollzinsbindung
10 Jahre
Bausubstanz & Energieausweis
| Bauphase | Haus in Planung (projektiert) |
|---|---|
| Qualität der Austattung | Gehoben |
| Heizungsart | Wärmepumpe |
| Wesentliche Energieträger | Strom |
| Energieausweis | liegt zur Besichtigung vor |
Beschreibung des Objekts
Ausstattung
Ausstattung lt. unserer ausführlichen Bauleistungsbeschreibung. Weitere Infos auf Anfrage...
Sonstige Angaben
Alle Angaben zum Objekt beruhen auf den Angaben des Eigentümers. Irrtum und Zwischenverkauf ist vorbehalten. Ein Energieausweis wird mit Baufertigstellung übergeben.
FIBAV Vertriebspartner Celle
Hans-Joachim Hartmann
Zöllnerstr. 23
29221 Celle
05141 - 7090811 / 0177-3281703
Wir haben auch einen kompetenten Finanzuierungspartner, der Ihnen gerne eine maßgeschneiderte Baufinanzierung anbietet.
Adresse
29320 Hermannsburg
Interessante Orte
Preis- und Lageinformationen
Preistrend für Bestandsimmobilien in Hermannsburg