Dieses außergewöhnliche Einfamilienhaus mit separater Einliegerwohnung besticht durch seine architektonische Raffinesse, lichtdurchflutete Räume und ein großzügiges Raumkonzept auf allen Ebenen.
Im Erdgeschoss erwartet Sie ein repräsentativer Wohn- und Essbereich mit über 86 m², aufgeteilt in zwei versetzte Ebenen – perfekt für stilvolles Wohnen mit besonderem Ambiente. Großzügige Schiebetüren öffnen den Raum zur sonnigen Südterrasse und zum gepflegten Garten. Die Küche ist derzeit durch eine Schrankwand abgetrennt, lässt sich jedoch problemlos in eine moderne Wohnküche integrieren. Abgerundet wird das Erdgeschoss durch ein Gäste-WC, eine Garderobe, ein kleines Büro mit Terrassenzugang sowie den direkten Zugang zur Einliegerwohnung.
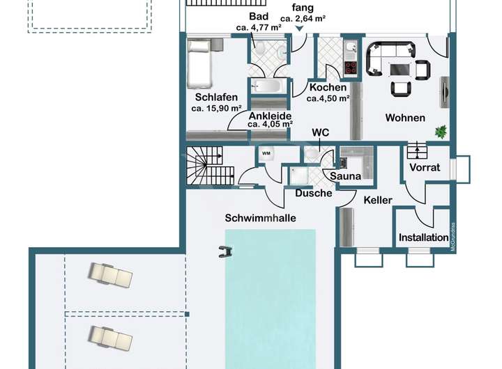
Im Obergeschoss befindet sich der Elternbereich mit Schlafzimmer, Ankleidezimmer, Tageslichtbad und Zugang zu einem eigenen Balkon. Drei weitere, sehr geräumige Gästezimmer teilen sich einen durchgehenden Balkon über die gesamte Hausbreite. Ein weiteres Badezimmer sowie ein praktischer Einbauschrank im Flur sorgen für zusätzlichen Komfort. Auch ein Hauswirtschaftsraum ist vorhanden.
Das Dachgeschoss bietet einen großen, offenen Raum mit vielseitigem Nutzungspotenzial – ob als zusätzliche Wohnfläche, Atelier oder Stauraum.
Im Untergeschoss eröffnet sich ein großzügiger Wellnessbereich mit Schwimmbad, Sauna und einem geschützten Außenbereich, der zum Entspannen einlädt.
Die separate, ca. 65 m² große Einliegerwohnung umfasst ein Wohnzimmer, Schlafzimmer, Küche und Bad. Dank einer Verbindungstür ist eine flexible Nutzung möglich – ideal für Gäste, Au-pair, Homeoffice oder zur Vermietung.
Ein perfektes Zuhause für Familien, die Wert auf Komfort, Großzügigkeit und Flexibilität legen.
Großzügiges Einfamilienhaus mit Einliegerwohnung, Wellnessbereich und viel Ausbaupotenzial
76337 Waldbronn
Die vollständige Adresse der Immobilie erhalten Sie vom Anbieter.
Auf Karte anzeigen
Die vollständige Adresse der Immobilie erhalten Sie vom Anbieter.
Finanzierungszertifikat
In nur zwei Minuten zu Ihrem persönlichen Finanzierungszertifkat.
Infos
| Haustyp | Einfamilienhaus |
|---|---|
| Etagenzahl | 3 |
| Wohnfläche ca. | 322 m2 |
| Grundstücksfläche | 750 m2 |
| Zimmer | 11 |
| Schlafzimmer | 8 |
| Badezimmer | 3 |
| Garage/Stellplatz | Garage |
| Anzahl Garage/Stellplatz | 1 |
Kosten
| Kaufpreis |
798.000 € |
|---|---|
| Provision |
Käuferprovision beträgt 3,57 % (inkl. MwSt.) des beurkundeten Kaufpreises |
Finanzierungsrechner:
Kaufpreis:
600.000 €
Eigenkapital:
600.000 €
Monatliche Rate
0 €
Effektiver Jahreszins
0 %
Sollzinsbindung
10 Jahre
Bausubstanz & Energieausweis
| Baujahr | 1974 |
|---|---|
| Letzte Sanierung | 2020 |
| Bauphase | Haus fertig gestellt |
| Objektzustand | Gepflegt |
| Qualität der Austattung | Gehoben |
| Heizungsart | Fußbodenheizung |
| Wesentliche Energieträger | Strom |
| Energieausweis | liegt vor |
| Energieausweistyp | Bedarfsausweis |
| Energieverbrauchskennwert | 137,1 kWh/(m²*a) |
| Energieeffizienzklasse | E |
137,1
kWh/(m²*a)
Energieeffizienzklasse E
- A+
- A
- B
- C
- D
- E
- F
- G
- H
- 0
- 25
- 50
- 75
- 100
- 125
- 150
- 175
- 200
- 225
- >250
Beschreibung des Objekts
Ausstattung
-Dach im Jahr 2020 neu gedämmt und gedeckt, Fassade frisch gestrichen
-Sämtliche Abwasserrohre erneuert, neue Isolierung und Abdichtung angebracht
-Doppelgarage mit Platz für zwei Fahrzeuge
-Großzügiger Wohn- und Essbereich mit ca. 86 m² und direktem Zugang zur sonnigen Südterrasse
-Separate Einliegerwohnung mit ca. 65 m² und eigenem Eingang – ideal für Gäste, Au-pair oder Büro
-Moderner Wellnessbereich im Untergeschoss mit Schwimmbad und Sauna für entspannte Stunden zuhause
-Durchdachte Raumaufteilung mit drei Gästezimmern und einer großzügigen Elternsuite mit Balkon
-Dachgeschoss mit zusätzlichem Ausbaupotenzial für individuellen Wohnraum
-Sicherheitsausstattung mit Alarmanlage und Videoüberwachung
-Fußbodenheizung in Untergeschoss, Erdgeschoss und Obergeschoss
-Photovoltaikanlage mit einer Leistung von 17,92 kWp – nachhaltig und effizient
Lage
Waldbronn/Reichenbach besticht durch seine ruhige und sichere Lage in unmittelbarer Nähe zu Karlsruhe und bietet eine ideale Kombination aus naturnahem Wohnen und hervorragender Infrastruktur. Die exzellente Anbindung über die S11-Stadtbahn ermöglicht eine stressfreie Mobilität für Berufspendler, während die stabile und familienfreundliche Gemeinschaft ein harmonisches Lebensumfeld schafft. Die ausgewogene Bevölkerungsstruktur mit einem hohen Anteil an Senioren sorgt für ein ausgeglichenes Miteinander und unterstreicht die nachhaltige Attraktivität dieses Wohnstandorts.
Die Umgebung von Waldbronn/Reichenbach präsentiert sich als ein Ort, der besonders Familien mit Kindern ein vielfältiges und sicheres Lebensumfeld bietet. Zahlreiche Spielplätze sind in nur wenigen Gehminuten erreichbar und laden zum gemeinsamen Spielen und Entdecken ein. Sportbegeisterte finden in unmittelbarer Nähe moderne Sportanlagen wie die EDEKA Völkle Arena, die zu aktiver Freizeitgestaltung einladen. Für kulturelle und gemeinschaftliche Aktivitäten sorgen der Kulturtreff Waldbronn sowie das Evangelische Gemeindezentrum, die nur wenige Minuten zu Fuß entfernt sind und ein vielfältiges Veranstaltungsprogramm bieten.
Für Familien mit Kindern ist die hervorragende Bildungsinfrastruktur ein großer Vorteil: Kindergärten wie das Schwalbennest und St. Elisabeth sind in etwa 6 bis 11 Minuten zu Fuß erreichbar, während die Albert-Schweitzer-Grundschule und weiterführende Schulen wie die Anne-Frank-Schule in einem angenehmen Radius liegen. Diese Nähe ermöglicht kurze und sichere Wege im Alltag. Auch die medizinische Versorgung ist mit Fachärzten, Zahnärzten und Apotheken in fußläufiger Entfernung bestens gewährleistet – etwa das Augenzentrum Ettlingen und die Schwarzwald-Apotheke sind in weniger als zehn Minuten zu erreichen. Die Anbindung an den öffentlichen Nahverkehr ist durch mehrere Buslinien und den Reichenbach Bahnhof, der in etwa 11 Minuten zu Fuß erreichbar ist, hervorragend, was die Flexibilität und Mobilität der gesamten Familie unterstützt.
Insgesamt bietet Waldbronn/Reichenbach Familien ein behagliches, sicheres und zukunftsorientiertes Wohnumfeld, das durch seine vielfältigen Freizeit-, Bildungs- und Gesundheitsangebote überzeugt und somit den idealen Rahmen für ein erfülltes Familienleben schafft.
Sonstige Angaben
GELDWÄSCHE: Als Immobilienmaklerunternehmen ist die von Poll Immobilien GmbH nach § 2 Abs. 1 Nr. 14 und § 11 Abs. 1, 2 Geldwäschegesetz (GwG) dazu verpflichtet, bei der Begründung einer Geschäftsbeziehung die Identität des Vertragspartners festzustellen und zu überprüfen, bzw. sobald ein ernsthaftes Interesse an der Durchführung des Immobilienkaufvertrages besteht. Hierzu ist es erforderlich, dass wir nach § 11 Abs. 4 GwG die relevanten Daten Ihres Personalausweises festhalten (wenn Sie als natürliche Person handeln) – beispielsweise mittels einer Kopie. Bei einer juristischen Person benötigen wir eine Kopie des Handelsregisterauszugs, aus welchem der wirtschaftlich Berechtigte hervorgeht. Das Geldwäschegesetz sieht vor, dass der Makler die Kopien bzw. Unterlagen fünf Jahre aufbewahren muss. Als unser Vertragspartner haben Sie auch eine Mitwirkungspflicht nach § 11 Abs. 6 GwG.
HAFTUNG: Wir weisen darauf hin, dass die von uns weitergegebenen Objektinformationen, Unterlagen, Pläne etc. vom Verkäufer bzw. Vermieter stammen. Eine Haftung für die Richtigkeit oder Vollständigkeit der Angaben übernehmen wir daher nicht. Es obliegt daher unseren Kunden, die darin enthaltenen Objektinformationen und Angaben auf ihre Richtigkeit hin zu überprüfen. Alle Immobilienangebote sind freibleibend und vorbehaltlich Irrtümer, Zwischenverkauf- und Vermietung oder sonstiger Zwischenverwertung.
UNSER SERVICE FÜR SIE ALS EIGENTÜMER:
Planen Sie den Verkauf oder die Vermietung Ihrer Immobilie, so ist es für Sie wichtig, deren Marktwert zu kennen. Lassen Sie kostenfrei und unverbindlich den aktuellen Wert Ihrer Immobilie professionell durch einen unserer Immobilienspezialisten einschätzen. Unser bundesweites und internationales Netzwerk ermöglicht es uns, Verkäufer bzw. Vermieter und Interessenten bestmöglich zusammenzuführen.
Grundriss
Untergeschoss
>
>
Erdgeschoss
>
>
Obergeschoss
>
>
Adresse
76337 Waldbronn
Interessante Orte
Preis- und Lageinformationen
Preistrend für Bestandsimmobilien in Waldbronn