Das Haus wurde 2018 in Holztafelbauweise errichtet und besteht aus Erdgeschoss und ausgebautem Dachgeschoss.
Die Wohnfläche beträgt ca. 127 m². Das Grundstück misst 1.067 m².
Der offene, großzügige Wohn-/Essbereich einschließlich Küche hat eine Wohnfläche von über 45 m²!
Der Innenausbau des Hauses wurde nicht abgeschlossen. Der größte offene Posten ist hier der Ausbau bzw. die Fertigstellung der Badezimmer in beiden Stockwerken. Weiterhin sind einige kleinere Abschlussarbeiten im Haus durchzuführen. Die Außenanlagen, insbesondere die Terrasse und der Hauseingang, müssen ebenfalls noch gestaltet werden.
Die Beheizung erfolgt mit Holzpellets und Fußbodenheizung.
Bitte beachten Sie Folgendes:
*Die Immobilie wird im aktuellen Bauzustand übergeben.
*Das Haus ist nicht fertiggestellt. Ein Energieausweis kann daher noch nicht ausgestellt werden.
*Die Angaben zum Objekt stammen von Dritten. Für die Richtigkeit und Vollständigkeit wird keine Haftung übernommen.
Einfamilienhaus -nicht ganz fertiggestellt- in Nennslingen!
91790 Nennslingen
Die vollständige Adresse der Immobilie erhalten Sie vom Anbieter.
Auf Karte anzeigen
Die vollständige Adresse der Immobilie erhalten Sie vom Anbieter.
Finanzierungszertifikat
In nur zwei Minuten zu Ihrem persönlichen Finanzierungszertifkat.
Infos
| Haustyp | Einfamilienhaus |
|---|---|
| Wohnfläche ca. | 127 m2 |
| Grundstücksfläche | 1.067 m2 |
| Zimmer | 5 |
| Garage/Stellplatz | Außenstellplatz |
| Anzahl Garage/Stellplatz | 1 |
Kosten
| Kaufpreis |
299.000 € |
|---|---|
| Provision |
3,57 % inkl. USt. Der Käufer ist verpflichtet, dem Makler eine Provision in Höhe von 3,57 % des Gesamtkaufpreises einschl. USt. zu bezahlen, sobald der Vertrag aufgrund des Nachweises oder der Vermittlung des Maklers zustande gekommen ist. |
Finanzierungsrechner:
Kaufpreis:
600.000 €
Eigenkapital:
600.000 €
Monatliche Rate
0 €
Effektiver Jahreszins
0 %
Sollzinsbindung
10 Jahre
Bausubstanz & Energieausweis
| Baujahr | 2018 |
|---|
Beschreibung des Objekts
Lage
Nennslingen ist ein Markt im Landkreis Weißenburg-Gunzenhausen im Regierungsbezirk Mittelfranken in Bayern. Die nächstgelegene größere Stadt ist Weißenburg, in einer Entfernung von ca. 13 Kilometern.
Einkaufsmöglichkeiten und Dienstleistungsangebote sind hinreichend im Ort vorhanden. Nennslingen hat eine Grundschule und Angebote zur Kinderbetreuung.
Die Ortschaft bietet eine gute ärztliche Versorgung und hat eine Apotheke.
Nennslingen ist gut über die Buslinien angebunden. Ein Anschluss an die Autobahn A9 liegt ca. 20 km entfernt.
Die Region gehört zum Naturpark Altmühltal. Nennslingen bietet eine ruhige Wohnlage in landschaftlich reizvoller Umgebung. Es besteht ein vielfältiges Angebot an Sport- und Freizeitaktivitäten.
Sonstige Angaben
*Das Haus ist nicht fertiggestellt. Ein Energieausweis kann daher noch nicht ausgestellt werden.
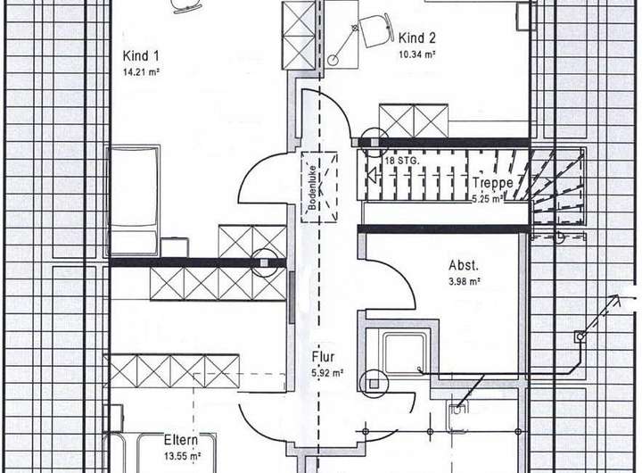
*Die Grundrisspläne sind zur Maßentnahme nicht geeignet.
*Der Käufer ist verpflichtet, dem Makler eine Provision in Höhe von 3,57 % des Gesamtkaufpreises einschl. USt. zu bezahlen, sobald der Vertrag aufgrund des Nachweises oder der Vermittlung des Maklers zustande gekommen ist.
Ausführliche Informationen erhalten Sie über die Deutsche Immobilien Beratungsgesellschaft mbH. Rufen Sie uns an! Telefon: 09131 / 403 12 62.
Adresse
91790 Nennslingen
Interessante Orte
Preis- und Lageinformationen
Preistrend für Bestandsimmobilien in Nennslingen