Willkommen in Ihrem zukünftigen Zuhause in Vogtsburg-Bischoffingen - einem idyllischen Weinort im Herzen des malerischen Kaiserstuhls. Diese hochwertige Doppelhaushälfte wird individuell nach Ihren Wünschen projektiert und bietet Ihnen modernen Wohnkomfort in ländlich-ruhiger Umgebung.
Auf zwei Etagen stehen Ihnen ca. 123 m² Wohnfläche zur Verfügung, verteilt auf 4 Zimmer, darunter drei gut geschnittene Schlafzimmer, ein komfortables Tageslichtbad sowie ein zusätzliches Gäste-WC. Die separate Küche ermöglicht funktionales Kochen ohne Geruchsübertragung in den Wohnbereich, während das großzügige Wohnzimmer viel Platz für entspanntes Wohnen bietet.
Besonders hervorzuheben ist die energieeffiziente Bauweise mit moderner Wärmepumpe, die für umweltschonendes Heizen und niedrige Betriebskosten sorgt.
Optional ist auch eine Aufwertung auf den aktuellen KFN-Standard (Klimafreundlicher Neubau) mit zusätzlicher QNG-Zertifizierung (Qualitätssiegel Nachhaltiges Gebäude) möglich - damit können staatliche Förderprogramme in Anspruch genommen werden. Zudem sind individuelle Ausstattungswünsche wie ein Keller, Carport oder weitere Ausbauoptionen nach Rücksprache realisierbar (gegen Aufpreis).
Reales Projekt in Bischoffingen - Suchen Sie noch oder wollen Sie starten?
79235 Vogtsburg im Kaiserstuhl
Die vollständige Adresse der Immobilie erhalten Sie vom Anbieter.
Auf Karte anzeigen
Die vollständige Adresse der Immobilie erhalten Sie vom Anbieter.
Finanzierungszertifikat
In nur zwei Minuten zu Ihrem persönlichen Finanzierungszertifkat.
Infos
| Haustyp | Doppelhaushaelfte |
|---|---|
| Etagenzahl | 2 |
| Wohnfläche ca. | 123 m2 |
| Grundstücksfläche | 350 m2 |
| Zimmer | 4 |
| Schlafzimmer | 3 |
| Badezimmer | 1 |
Kosten
| Kaufpreis |
445.889 € |
|---|
Finanzierungsrechner:
Kaufpreis:
600.000 €
Eigenkapital:
600.000 €
Monatliche Rate
0 €
Effektiver Jahreszins
0 %
Sollzinsbindung
10 Jahre
Bausubstanz & Energieausweis
| Baujahr | 2026 |
|---|---|
| Bauphase | Haus in Planung (projektiert) |
| Heizungsart | Wärmepumpe |
Beschreibung des Objekts
Ausstattung
IM ANGEBOT ENTHALTEN:
- Diese tolle projektierte Doppelhaushälfte
- inkl. Bodenplatte
- inkl. Grundstück
- inkl. PV-Anlage und Batteriespeicher
- inkl. Luft-Wasser-Wärmepumpe
- inkl. Fußbodenheizung
- inkl. Architektenleistung
- inkl. dreifachverglaste Wärmeschutzfenster
- inkl. kontrollierte Be- und Entlüftung mit Wärmerückgewinnung
Die Dienstleistungen Elektro, Heizung/Sanitär, Estrich, Trockenbau- sowie Spachtelarbeiten sind im Preis berücksichtigt.
Zzgl. Restarbeiten Innenausbau (Boden, Fliesen, Malern, Türen, Fensterbänke, Endmontage Sanitär)
Zzgl. Erwerbs- und Baunebenkosten
Lage
Bischoffingen ist ein malerischer Ortsteil der Stadt Vogtsburg im Kaiserstuhl und liegt inmitten einer der sonnenreichsten Regionen Deutschlands. Umgeben von Rebhängen, Natur- und Vogelschutzgebieten bietet der traditionsreiche Weinort eine hohe Lebensqualität in ruhiger, naturnaher Umgebung. Der Ortskern ist geprägt von gepflegten Fachwerkhäusern und einer gewachsenen Dorfstruktur.
Die Anbindung ist trotz der ländlichen Lage sehr gut: Über die B31 und die A5 ist Freiburg im Breisgau in ca. 25-30 Minuten erreichbar. Auch die Städte Basel, Colmar und Straßburg sind gut zu erreichen. Der öffentliche Nahverkehr ist durch Buslinien und die nahe Kaiserstuhlbahn gesichert.
Im Ort sowie in den benachbarten Ortsteilen befinden sich Einkaufsmöglichkeiten, Kindergärten, Schulen und ärztliche Versorgung. Zahlreiche Winzerbetriebe und gastronomische Angebote unterstreichen den regionalen Charakter und machen Bischoffingen zu einem attraktiven Wohnstandort mit hohem Freizeitwert.
Sonstige Angaben
Bauen mit allkauf haus bedeutet:
- individuelle und professionelle Beratung
- Mitgestaltung beim Grundriss
- Bauen mit Profis - über 40 Jahre Markterfahrung
- Festpreisgarantie 15 Monate
- kurze Montagezeiten
- professionelle Betreuung bei der Finanzierung
- Unterstützung bei der Inanspruchnahme möglicher Fördergelder
- Die Quadratmeteranzahl entspricht der Nettogrundfläche gemäß DIN 277.
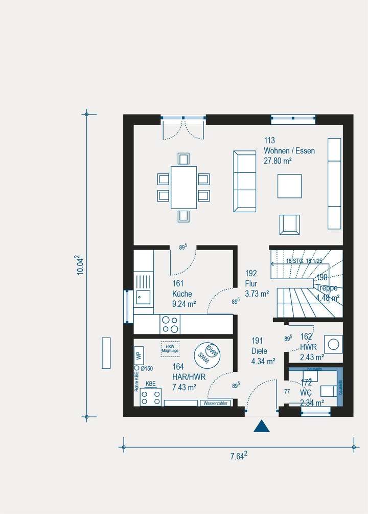
Grundriss
Grundriss EG
>
>
Grundriss DG
>
>
Adresse
79235 Vogtsburg im Kaiserstuhl
Interessante Orte
Preis- und Lageinformationen
Preistrend für Bestandsimmobilien in Vogtsburg im Kaiserstuhl