Im beliebten Bremer Stadtteil bieten wir zwei Doppelhaushälften als Neubau zum Erstbezug an.
Die Objekte werden im KFW40-Standard für besondere Energieeffizienz erstellt. Fertigstellung ist für das Frühjahr 2026 geplant.
Die vollständigen Ausstattungsstandards entnehmen Sie bitte den Ausstattungsdetails.
Diese Doppelhaushälfte befindet sich in rückwertiger Bebauung und ist über einen gemeinsamen Weg für zwei Parteien zu erreichen.
Parkflächen befinden sich direkt vor dem Objekt auf einer gepflasterten Fläche.
Ein grüner Garten mit Terrasse befindet sich hinter dem Objekt.
Sie erhalten Zugang über eine Eingangstür vor dem Objekte.
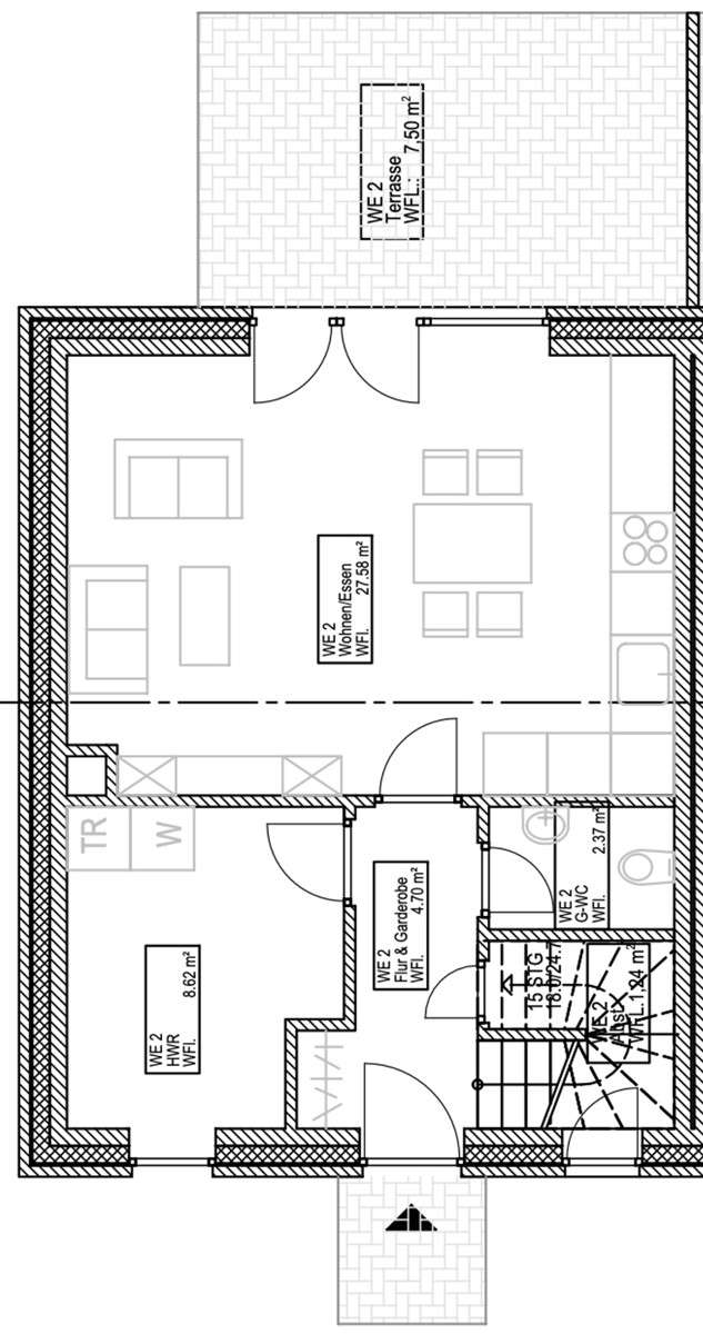
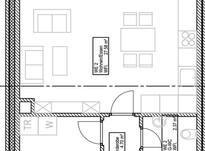
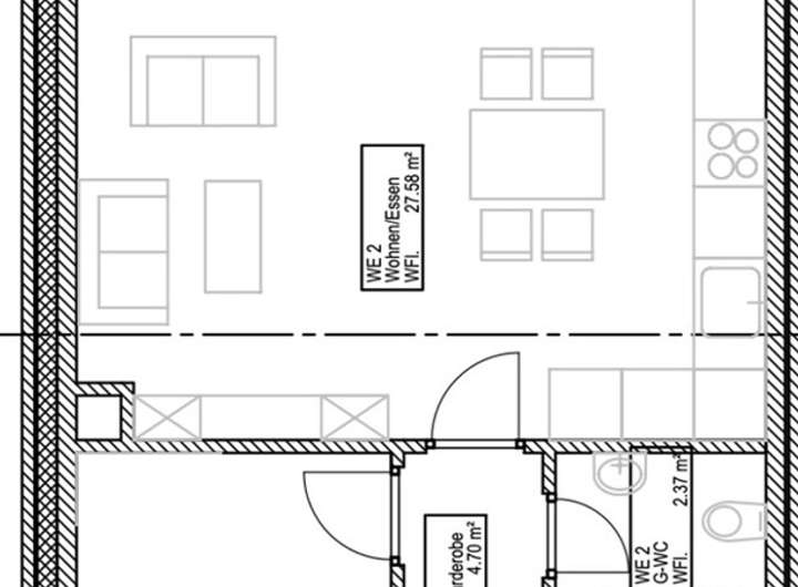
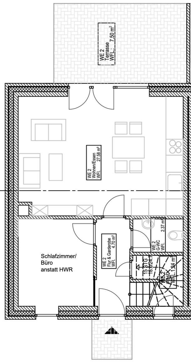
Im Erdgeschoss befinden sich neben einem Gäste-WC die Wohnräume mit offener Wohnküche und Zugang zur großzügigen Terrasse.
Weiterhin befindet sich der Hausanschlussraum im Erdgeschoss.
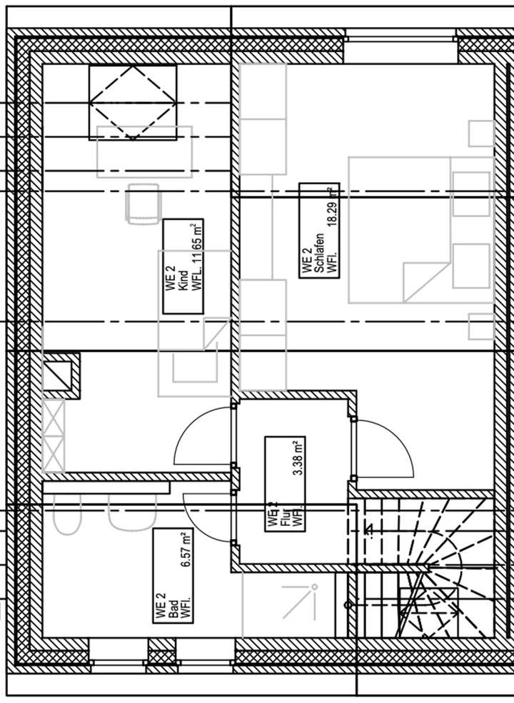
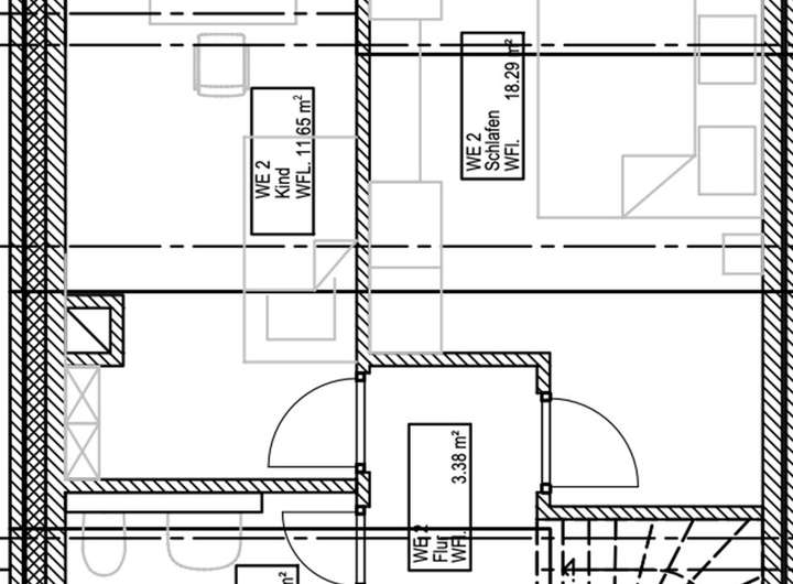
Über eine massive Treppe erreichen Sie das Obergeschoss.
Hier befinden sich zwei großzügige Schlafzimmer sowie ein Tageslichtbad mit bodenebener Dusche.
Weitere Informationen entnehmen Sie bitte den Ausstattungsdetails.
Doppelhaushälfte in beliebter Wohnlage - effizienter KFW40-Standard / Provisionsfrei für den Käufer
28309 Bremen
Die vollständige Adresse der Immobilie erhalten Sie vom Anbieter.
Auf Karte anzeigen
Die vollständige Adresse der Immobilie erhalten Sie vom Anbieter.
Finanzierungszertifikat
In nur zwei Minuten zu Ihrem persönlichen Finanzierungszertifkat.
Infos
| Haustyp | Doppelhaushaelfte |
|---|---|
| Etagenzahl | 2 |
| Wohnfläche ca. | 91 m2 |
| Grundstücksfläche | 123 m2 |
| Bezugsfrei ab | nach Absprache |
| Zimmer | 4 |
| Schlafzimmer | 3 |
| Badezimmer | 1 |
| Garage/Stellplatz | Außenstellplatz |
| Anzahl Garage/Stellplatz | 1 |
Kosten
| Kaufpreis |
393.000 € |
|---|---|
| Provision |
Provisionsfrei für den Käufer |
Finanzierungsrechner:
Kaufpreis:
600.000 €
Eigenkapital:
600.000 €
Monatliche Rate
0 €
Effektiver Jahreszins
0 %
Sollzinsbindung
10 Jahre
Bausubstanz & Energieausweis
| Baujahr | 2025 |
|---|---|
| Objektzustand | Erstbezug |
| Heizungsart | Fußbodenheizung |
| Energieausweis | liegt vor |
| Energieausweistyp | Bedarfsausweis |
| Energieverbrauchskennwert | 40,0 kWh/(m²*a) |
| Energieeffizienzklasse | A+ |
40,0
kWh/(m²*a)
Energieeffizienzklasse A+
- A+
- A
- B
- C
- D
- E
- F
- G
- H
- 0
- 25
- 50
- 75
- 100
- 125
- 150
- 175
- 200
- 225
- >250
Beschreibung des Objekts
Ausstattung
A. Allgemein
• Doppelhaushälfte
• KFW40-Gebäudestandard
• ca. 91,1 m² Wohnfläche
• ca. 123 m² Grundstücksgröße
• 1,5 Geschosse
• großzügiger Garten
• Terrasse
• PKW-Stellplatz mit Wallbox
Der HWR im Erdgeschoss ist im Zuge der Planung zu einem weiteren Zimmer ausgebaut worden.
B. Ausstattung
• Beheizung über Luft-Wasser-Wärmepumpe
• Photovoltaikanlage auf dem Dach
• Fußbodenheizung in allen Räumen
• 3-fach verglaste Kunststofffenster
• elektrische Jalousien
• Video-Gegensprechanlage
Lage
Das Objekt befindet sich in zentraler aber ruhiger und grüner Lage von Bremen-Hemelingen. Aufgrund der Nebenstraßenlage sowie der rückwertigen Bebauung ist das Objekt nicht direkt einsehbar.
Verkehrsanbindung:
- Öffentliche Verkehrsmittel, wie diverse Buslinien sowie der Bahnhof Bremen-Hemelingen sind in wenigen Gehminuten zu erreichen.
- Eine Autobahnauffahrt zur Autobahn A1 befindet in unmittelbarer Umgebung und ermöglicht die zügige Anbindung an Bremen-Stadt sowie weitere Großstädte.
Umgebung:
Die Lage besticht durch seine ideale Mischung aus Stadt und Land. In einer Nebenstraße gelegen befindet man sich einerseits im Zentrum von Bremen und auf der anderen Seite dennoch in ruhiger Umgebung. Auch die nahegelegenen Grünanlagen sowie diverse Wälder in der Umgebung laden zum Spazieren oder zu sportlichen Betätigungen ein.
Sonstige Angaben
Alle Angaben sind ohne Gewähr und basieren ausschließlich auf Informationen, die uns von unserem Auftraggeber zur Verfügung gestellt wurden. Wir übernehmen keine Gewähr für die Vollständigkeit, Richtigkeit und Aktualität dieser Angaben.
Der Ansprechpartner für dieses Immobilienangebot ist:
David Mergelmeyer
Selbstständiger Immobilienmakler
+49 421 499 575 60
+49 176 565 322 63
dm@mergelmeyer-immobilien.de
Grundriss
Lageplan
>
>
Grundriss WE2 EG
>
>
angepasster Grundriss EG WE2
>
>
Grundriss WE2 OG
>
>
Vorderansicht
>
>
Seitenansicht WE1
>
>
Rückansicht
>
>
Schnitt A
>
>
Schnitt B
>
>
Adresse
28309 Bremen
Interessante Orte
Preis- und Lageinformationen
Preistrend für Bestandsimmobilien in Hemelingen