Willkommen in Ihrem zukünftigen Zuhause!
Diese moderne Wohnung im Obergeschoss eines Mehrfamilienhauses in Vilsbiburg vereint stilvolles Design mit funktionalem Wohnkomfort. Der Erdgeschossteil wurde 1978 erbaut und 2024 aufgestockt, somit befindet sich die Wohnung mit ca. 93 m² im Neubauteil des Hauses.
Die Wohnung umfasst einen großen, lichtdurchfluteten Wohn-Essbereich mit Küchenbereich und Zugang zum Außenbereich sowie ein behagliches Schlafzimmer mit Zugang zur Terrasse.
Ein weiterer Raum, der als Büro, Gäste- oder Kinderzimmer genutzt werden kann, zeichnet sich durch seine außergewöhnliche, abgerundete Form aus, die ihm eine besondere architektonische Eleganz verleiht. Die leicht geschwungene Außenwand mit mehreren Fenstern sorgt nicht nur für einen einzigartigen Charakter, sondern auch für eine angenehme Helligkeit im Raum.
Das Badezimmer ist elegant gefliest und entspricht höchsten Ansprüchen an Stil und Komfort.
In der gesamten Wohnung sorgt die Fußbodenheizung für wohlig warme Füße, während die dezentrale Lüftungsanlage mit effizienter Wärmerückgewinnung für frische und gesunde Raumluft sorgt.
In der gesamten Wohnung sind, bis auf das geflieste Badezimmer, Eicheparkettböden verlegt, die für eine behagliche Atmosphäre sorgen.
Zu den weiteren Annehmlichkeiten zählen eine moderne Videosprechanlage und ein gemeinschaftlicher Waschraum. Der Zugang zur eigenen Terrasse lädt dazu ein, die frische Luft und sonnige Tage in privatem Rahmen zu genießen.
Diese Immobilie bietet eine einmalige Gelegenheit für all diejenigen, die Wert auf Qualität und eine hervorragende Lage legen. Überschreiten Sie die Schwelle zu Ihrem neuen Lebensabschnitt und gestalten Sie Ihr Zuhause ganz nach Ihren Vorstellungen. Vereinbaren Sie noch heute einen Besichtigungstermin und lassen Sie sich von diesem einzigartigen Angebot begeistern!
Für das ausführliche Exposé stellen Sie bitte eine Anfrage!
Vilsbiburg! Helle 3-Zimmer-Neubauwohnung mit großzügiger Dachterrasse
84137 Vilsbiburg
Die vollständige Adresse der Immobilie erhalten Sie vom Anbieter.
Auf Karte anzeigen
Die vollständige Adresse der Immobilie erhalten Sie vom Anbieter.
Finanzierungszertifikat
In nur zwei Minuten zu Ihrem persönlichen Finanzierungszertifkat.
Infos
| Wohnungskategorie | Etagenwohnung |
|---|---|
| Wohnfläche ca. | 93 m2 |
| Zimmer | 3 |
| Schlafzimmer | 1 |
| Badezimmer | 1 |
| Garage/Stellplatz | Außenstellplatz |
| Anzahl Garage/Stellplatz | 1 |
Kosten
| Kaufpreis |
391.020 € |
|---|---|
| Preis für Garage/Stellplatz | 9.900 € |
| Provision | Nein |
Finanzierungsrechner:
Kaufpreis:
600.000 €
Eigenkapital:
600.000 €
Monatliche Rate
0 €
Effektiver Jahreszins
0 %
Sollzinsbindung
10 Jahre
Bausubstanz & Energieausweis
| Baujahr | 2024 |
|---|---|
| Objektzustand | Erstbezug |
| Heizungsart | Fußbodenheizung |
| Wesentliche Energieträger | Erdgas leicht |
| Energieausweis | liegt vor |
| Energieausweistyp | Bedarfsausweis |
| Energieverbrauchskennwert | 37,2 kWh/(m²*a) |
| Energieeffizienzklasse | A |
37,2
kWh/(m²*a)
Energieeffizienzklasse A
- A+
- A
- B
- C
- D
- E
- F
- G
- H
- 0
- 25
- 50
- 75
- 100
- 125
- 150
- 175
- 200
- 225
- >250
Beschreibung des Objekts
Ausstattung
- Neubau / Erstbezug
- 3-Zimmer-Wohnung im 1. OG
- Wohnfläche: ca. 93,1 m², Deckenhöhe: bis zu 3,4 m
- helle Räume durch zusätzliche Dachfenster
- halbumlaufende Dachterrasse
- Eichenparkett
- Kellerabteil
- Stellplatz (9,9 TEUR) zzgl. zu erwerben
- weitere Einheiten in verschiedenen Größen vorhanden
Lage
Die angebotene Wohnung im 1. OG befindet sich in Vilsbiburg, einer charmanten Stadt im Herzen Bayerns, die ideale Lebensbedingungen für Familien, Paare und Berufstätige bietet. Die Lage der Wohnung zeichnet sich durch ihre hervorragende Infrastruktur und die Nähe zu vielfältigen Einrichtungen des täglichen Bedarfs aus.
In unmittelbarer Umgebung finden Sie zahlreiche Einkaufsmöglichkeiten, die eine bequeme Versorgung mit Lebensmitteln und anderen Artikeln des täglichen Bedarfs gewährleisten. Die medizinische Versorgung ist durch mehrere Arztpraxen und Apotheken in der Umgebung bestens gesichert. Für Familien mit Kindern bietet Vilsbiburg ein umfangreiches Bildungsangebot: Sowohl eine Grundschule als auch eine Realschule und ein Gymnasium sind direkt im Ort vorhanden, ebenso wie mehrere Kindergärten, von denen einige bequem zu Fuß erreichbar sind.
Pendler profitieren von der günstigen Verkehrsanbindung des nahegelegenen Bahnhofs, der regelmäßige Verbindungen in die umliegenden Städte Rosenheim, Mühldorf und Landshut bereitstellt. Dies ermöglicht auch eine schnelle Anreise in die Großstädte München und Regensburg. Darüber hinaus liegen die B299 sowie die B388 in unmittelbarer Nähe und bieten eine direkte Anbindung an die Autobahnen A92 bzw. A94, wodurch man mit regionalen sowie überregionalen Zielen bestens vernetzt ist. Diese hervorragende Infrastruktur verbindet die idyllische Atmosphäre von Vilsbiburg mit der Möglichkeit, die Vorzüge der umliegenden städtischen Zentren zu nutzen. Die Wohnlage bietet somit eine ausgewogene Kombination aus Ruhe und Zugänglichkeit, ideal für ein komfortables und angenehmes Wohnumfeld.
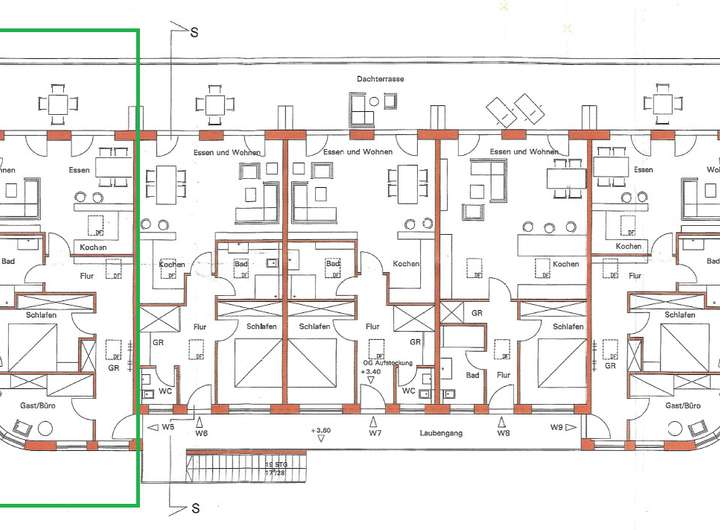
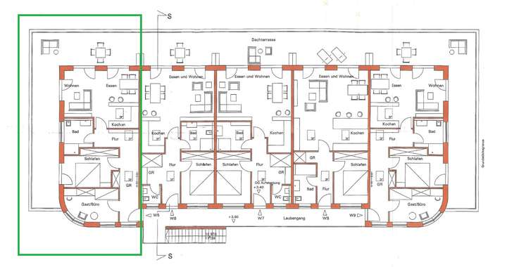
Grundriss
Wohnung 5
>
>
Adresse
84137 Vilsbiburg
Interessante Orte
Preis- und Lageinformationen
Preistrend für Bestandsimmobilien in Vilsbiburg