Neubau-Vorabinfo!
Willkommen in Ihrem möglichen neuen Zuhause im Rotkehlchenweg! Absolut ruhig gelegen in Geretsried-Gartenberg entstehen zwei moderne Neubau-Doppelhaushälften.
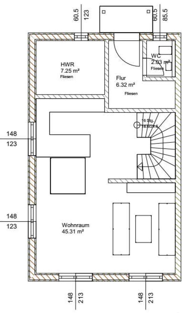
Im Erdgeschoss erwartet Sie ein lichtdurchfluteter Wohn- und Essbereich mit direktem Zugang zur schönen Süd-Terrasse und dem Garten. Hier können Sie entspannte Stunden im Freien genießen und unvergessliche Momente mit Familie und Freunden verbringen.
Das Obergeschoss überzeugt mit drei sonnigen Schlafzimmern. Zudem befindet sich im Obergeschoss ein großzügiges Tageslichtbad mit Dusche und Badewanne.
Das Dachgeschoss ist als Speicher vorgesehen, kann jedoch auch voll ausgebaut werden.
Unser Hausangebot kann je nach Wunsch mit und ohne Keller erstellt werden.
Das Haus besitzt eine hervorragende Energieeffizienz. Durch die hochwertige Luft-Wasser-Wärmepumpe und die Holzständerbauweise sind Sie perfekt für die Zukunft gewappnet.
Überzeugen Sie sich von dieser familienfreundlichen Doppelhaushälfte und vereinbaren Sie noch heute einen Besichtigungstermin des Bauplatzes oder einen Beratungstermin mit uns!
Vorabinfo! Neubau Doppelhaushälfte in sehr schöner Lage
82538 Geretsried
Die vollständige Adresse der Immobilie erhalten Sie vom Anbieter.
Auf Karte anzeigen
Die vollständige Adresse der Immobilie erhalten Sie vom Anbieter.
Finanzierungszertifikat
In nur zwei Minuten zu Ihrem persönlichen Finanzierungszertifkat.
Infos
| Haustyp | Doppelhaushaelfte |
|---|---|
| Etagenzahl | 2 |
| Wohnfläche ca. | 117 m2 |
| Nutzfläche | 66,52 m2 |
| Grundstücksfläche | 300 m2 |
| Bezugsfrei ab | 2026 |
| Zimmer | 4 |
| Schlafzimmer | 3 |
| Badezimmer | 1 |
| Garage/Stellplatz | Außenstellplatz |
| Anzahl Garage/Stellplatz | 2 |
Kosten
| Kaufpreis |
890.000 € |
|---|---|
| Provision | Nein |
Finanzierungsrechner:
Kaufpreis:
600.000 €
Eigenkapital:
600.000 €
Monatliche Rate
0 €
Effektiver Jahreszins
0 %
Sollzinsbindung
10 Jahre
Bausubstanz & Energieausweis
| Baujahr | 2026 |
|---|---|
| Objektzustand | Erstbezug |
| Heizungsart | Wärmepumpe |
| Energieausweis | laut Gesetz nicht erforderlich |
Beschreibung des Objekts
Ausstattung
- Fußbodenheizung mit Einzelraumsteuerung in allen Geschossen
- Modern ausgestattete Bäder mit bodenebener Dusche und Badewanne
- Modernste Luft-Wasser-Wärmepumpe
- Große Süd-Sonnenterrasse
- Zwei PKW-Stellplätze, auf Wunsch gegen Aufpreis mit Garage oder Carport
- Ein Vollausbau des Speichers ist möglich
- Der Aufpreis für eine Vollunterkellerung beträgt 90.000 €
- Weitere Details gerne auf Anfrage
Soweit möglich, werden alle Käuferwünsche erfüllt.
Sprechen Sie uns bitte hierzu an!
Lage
Geretsried bei Wolfratshausen liegt in einer der schönsten Regionen Bayerns und hat sich in ihrer jungen 60-jährigen Geschichte mit derzeit knapp 24.000 Einwohnern zur größten Stadt im Landkreis Bad Tölz-Wolfratshausen entwickelt. Die nahe gelegene Bergwelt der Alpen und die vielen Seen und Flüsse im Alpenvorland sind ein wahres Eldorado für Wassersportler, Wanderbegeisterte, Radfahrer und Golfspieler. Mit besten Anbindungen durch Autobahn, S-Bahn im Nachbarort Wolfratshausen (S7), Bus oder Fahrradwegen gelangt man von Geretsried aus schnell zum gewünschten Ziel.
Objektlage:
Die geplanten Neubaudoppelhaushälften befindet sich in ruhiger Nachbarschaft im Ortsteil Gartenberg. In nur wenigen Gehminuten ist das Zentrum von Geretsried, mit all seinen Einkaufsgeschäften erreichbar. Auch soziale Einrichtungen wie Schulen, Kindergärten und Sportvereine befinden sich in der nahen Umgebung.
Grundriss
Grundriss Erdgeschoss
>
>
Grundriss Obergeschoss
>
>
Schnitt - rechte Hälfte ohne K
>
>
Wohnflächenaufstellung
>
>
Adresse
82538 Geretsried
Interessante Orte
Preis- und Lageinformationen
Preistrend für Bestandsimmobilien in Geretsried