Modernes, energieeffizientes Einfamilienhaus in der beliebten Heimstätten Siedlung – perfekt für Familien.
Willkommen in Ihrem zukünftigen Zuhause in Darmstadt, einem charmanten Reihenendhaus, das 2006 erbaut wurde und durch seine gepflegte Erscheinung besticht. Dieses attraktive Haus bietet auf vier Etagen eine großzügige Wohnfläche von 140 m² sowie eine zusätzliche Nutzfläche ca. 45 m². Im Untergeschoss befindet sich ein ca. 22 m² großen Hobbyraum das auch beheizbar ist, des Weitern befinden sich eine große Waschküche.
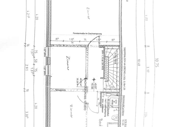
Die insgesamt sechs Zimmer, darunter vier gut geschnittenen Schlafzimmern und im Dachgeschoss ausgebauten Galeriezimmer, bieten viel Platz für Familien und Paare, die Wert auf Komfort und Raum legen.
Zwei moderne Badezimmer und ein Gäste-WC bieten Komfort und Privatsphäre.
Ein Wintergarten mit Gartennutzung schafft eine grüne Rückzugsoase, während die nach Südwesten ausgerichtete Terrasse perfekte Abendsonne garantiert. Das 176 m² große Grundstück und ca. 40 m² Gemeinschaftsanteil an Grundstücken und der voll unterkellerte Bereich ermöglichen flexible Nutzung – etwa als Stauraum oder Hobbyraum.
Das Haus verbindet Funktionalität mit Gemütlichkeit in familienfreundlicher Lage nahe Darmstadt und vereint städtische Vorteile mit Ruhe.
Diese exklusive Immobilie bietet ihren zukünftigen Bewohnern ein wohltuendes Maß an Komfort und Funktionalität. Das lichtdurchflutete Badezimmer überzeugt mit einem großzügigen Fenster und ist mit einem modernen TGL-Duschbad sowie einer Duschbadewanne ausgestattet, der Raum für entspannende Momente bieten. Das Anwesen erlaubt zudem die Nutzung eines weitläufigen Gartens, welcher zur Erholung und zum Verweilen einlädt.
Modernes, energieeffizientes Einfamilienhaus im Ernst-Ludwig-Park Darmstadt
64295 Darmstadt
Die vollständige Adresse der Immobilie erhalten Sie vom Anbieter.
Auf Karte anzeigen
Die vollständige Adresse der Immobilie erhalten Sie vom Anbieter.
Finanzierungszertifikat
In nur zwei Minuten zu Ihrem persönlichen Finanzierungszertifkat.
Infos
| Haustyp | Reiheneckhaus |
|---|---|
| Etagenzahl | 3 |
| Wohnfläche ca. | 140 m2 |
| Nutzfläche | 45 m2 |
| Grundstücksfläche | 216 m2 |
| Zimmer | 6 |
| Schlafzimmer | 4 |
| Badezimmer | 2 |
| Garage/Stellplatz | Carport |
| Anzahl Garage/Stellplatz | 1 |
Kosten
| Kaufpreis |
770.000 € |
|---|---|
| Provision |
3 % inkl. MwSt. aus dem Kaufpreis |
Finanzierungsrechner:
Kaufpreis:
600.000 €
Eigenkapital:
600.000 €
Monatliche Rate
0 €
Effektiver Jahreszins
0 %
Sollzinsbindung
10 Jahre
Bausubstanz & Energieausweis
| Baujahr | 2006 |
|---|---|
| Bauphase | Haus fertig gestellt |
| Objektzustand | Gepflegt |
| Qualität der Austattung | Gehoben |
| Heizungsart | Gas-Heizung |
| Wesentliche Energieträger | Gas |
| Energieausweis | liegt vor |
| Energieausweistyp | Verbrauchsausweis |
| Energieverbrauchskennwert | 67,6 kWh/(m²*a) |
| Energieeffizienzklasse | B |
67,6
kWh/(m²*a)
Energieeffizienzklasse B
- A+
- A
- B
- C
- D
- E
- F
- G
- H
- 0
- 25
- 50
- 75
- 100
- 125
- 150
- 175
- 200
- 225
- >250
Beschreibung des Objekts
Ausstattung
Das Objekt bietet einen Carport-Stellplatz und eine gemietete Solaranlage mit 4 kWh Speicher. Überschüssiger Strom wird vergütet. Drei Klimageräte sorgen für flexibles Heizen und Kühlen. Eine effiziente Gasheizung gewährleistet eine zuverlässige Wärmeversorgung.
Eine Wasserenthärtungsanlage ist bereits installiert und schützt Waschmaschine, Spülmaschine sowie Armaturen vor Kalk und Verlängert die Lebensdauer Ihrer Geräte.
Lage
Diese ansprechende Immobilie befindet sich in einer begehrten Wohngegend von Darmstadt, eingebettet in eine ruhige und familiäre Umgebung. Die Stadt bietet eine ausgezeichnete Infrastruktur und ist bekannt für ihre schnelle Anbindung an das Nahverkehrsnetz, was Ihnen eine einfache Erreichbarkeit des Stadtzentrums ermöglicht. In unmittelbarer Nähe befinden sich verschiedene Einkaufsmöglichkeiten, Schulen und Kindergärten, die den Alltag besonders komfortabel gestalten. Zudem locken weitläufige Parks und Grünflächen in der Umgebung zu entspannenden Spaziergängen und Freizeitaktivitäten im Freien. Darmstadt als Wissenschafts- und Kulturstadt bietet eine Vielzahl von Museen, Theatern und Galerien, die Ihre Freizeit bereichern werden. Diese Lage verbindet harmonisch das städtische Leben mit einem hohen Maß an Wohnqualität.
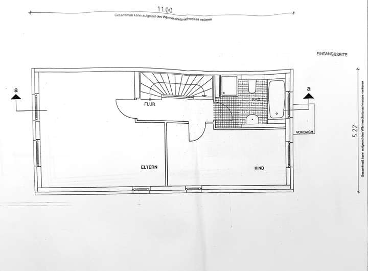
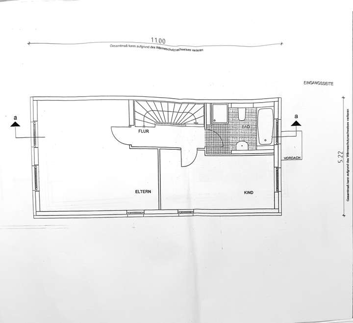
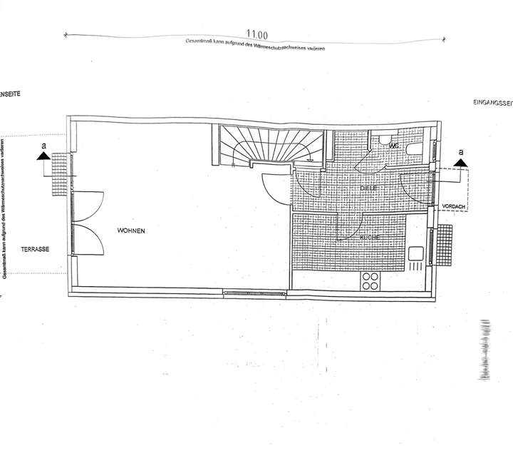
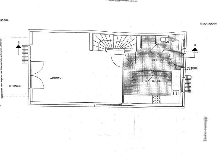
Grundriss
Grundriss KG 2
>
>
Grundriss EG
>
>
Grundriss OG
>
>
Grundriss DG
>
>
Hauansicht Garten u. Eingang
>
>
Haus Ansicht
>
>
Hausschnitt
>
>
Adresse
64295 Darmstadt
Interessante Orte
Preis- und Lageinformationen
Preistrend für Bestandsimmobilien in Darmstadt-West