Zum Verkauf steht ein ca. 480 m² großes, voll erschlossenes Baugrundstück in einer gefragten Wohnlage von Viernheim. Das Grundstück befindet sich in erster Reihe und bietet hervorragende Voraussetzungen für eine lukrative Neubauentwicklung.
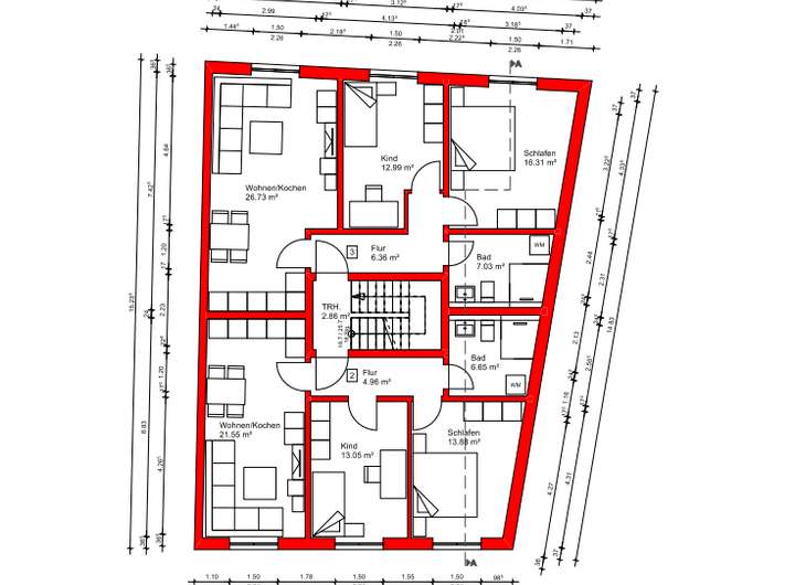
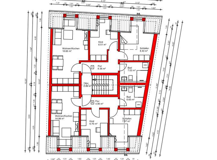
Nach aktuellem Planungsstand ist die Bebauung mit einem Mehrfamilienhaus mit bis zu ca. 505 m² Wohnfläche und insgesamt bis zu 7 Wohneinheiten denkbar. Die Grundflächenzahl (GRZ) beträgt 0,6, die Geschossflächenzahl (GFZ) liegt bei 1,60. Eine Bebauung nach Art der beigefügten Visualisierungen laut Architekten realistisch – die endgültige Planung und Umsetzung bedarf jedoch der Abstimmung mit dem zuständigen Bauamt.
Auf dem Grundstück befinden sich aktuell ein abrissreifes Mehrfamilienhaus sowie eine kleine Scheune, die für eine Neubebauung entfernt werden müssten. Somit bietet sich Ihnen hier eine hervorragende Gelegenheit, ein modernes und marktfähiges Neubauprojekt in zentraler Lage zu realisieren.
Die Lage zeichnet sich durch eine ruhige Wohnatmosphäre bei gleichzeitig hervorragender Infrastruktur aus. Einkaufsmöglichkeiten, Schulen, Kindergärten sowie medizinische Einrichtungen befinden sich in unmittelbarer Umgebung. Das bekannte Rhein-Neckar-Zentrum sowie das St. Josef Krankenhaus sind innerhalb von nur ca. 5 Autominuten erreichbar. Ebenso besteht eine optimale Anbindung an die Autobahnen A5, A6 und A67 sowie an den öffentlichen Nahverkehr – ideal für Pendler und Familien gleichermaßen.
Dieses Grundstück bietet eine hervorragende Investitionsmöglichkeit für Bauträger, Investoren oder private Bauherren, die ein Projekt in einer wirtschaftsstarken und stark nachgefragten Region realisieren möchten.
Gerne stellen wir Ihnen weitere Unterlagen zur Verfügung oder vereinbaren einen individuellen Besichtigungstermin vor Ort. Wir freuen uns auf Ihre Kontaktaufnahme!
Baugrundstück in Citylage – 7 Wohneinheiten und 505qm Wohnfläche, voll erschlossen
Rathausstraße 69,
68519 Viernheim
Auf Karte anzeigen
Finanzierungszertifikat
In nur zwei Minuten zu Ihrem persönlichen Finanzierungszertifkat.
Infos
| Vermarktungsart | Kaufen |
|---|---|
| Grundstücksfläche | 480 m2 |
| Erschließung | Erschlossen |
| Empfohlene Nutzung | Mehrfamilienhaus |
| Grundflächenzahl (GRZ) | 0.6 |
| Geschossflächenzahl (GFZ) | 1.6 |
| Bebaubar nach | Bebauungsplan |
| Verfügbar ab | sofort |
Kosten
| Miete pro Jahr |
520.000 € |
|---|---|
| Provision |
3,57% Inklusive MwSt. |
Finanzierungsrechner:
Kaufpreis:
600.000 €
Eigenkapital:
600.000 €
Monatliche Rate
0 €
Effektiver Jahreszins
0 %
Sollzinsbindung
10 Jahre
Beschreibung des Objekts
Lage
Viernheim ist eine lebendige Stadt im Süden Hessens und gehört zum Landkreis Bergstraße. Aufgrund ihrer Lage an der Grenze zu Baden-Württemberg und ihrer Zugehörigkeit zur Metropolregion Rhein-Neckar profitiert Viernheim von einer ausgezeichneten Verkehrsanbindung und einer starken wirtschaftlichen Vernetzung. Die Stadt ist über die Autobahnen A5, A6 und A67 schnell erreichbar und verfügt zudem über eine gute Anbindung an den öffentlichen Nahverkehr, insbesondere durch die OEG-Stadtbahn, die Viernheim direkt mit Mannheim und Weinheim verbindet. Besonders bekannt ist Viernheim durch das Rhein-Neckar-Zentrum, eines der größten Einkaufszentren der Region, das überregional Besucher anzieht. Die Infrastruktur der Stadt ist gut ausgebaut, mit zahlreichen Einkaufsmöglichkeiten, Schulen, Kindergärten und ärztlicher Versorgung. Gleichzeitig bietet Viernheim ein familienfreundliches Umfeld mit vielen Grünflächen, einem aktiven Vereins leben und direkter Nähe zur Natur. Als zertifizierte Fairtrade-Stadt legt Viernheim zudem Wert auf Nachhaltigkeit und eine bewusste Stadtentwicklung. Insgesamt verbindet Viernheim urbanes Leben mit ländlichem Charme und stellt damit einen attraktiven Wohn- und Lebensstandort inmitten einer der wirtschaftsstärksten Regionen Deutschlands dar.
Sonstige Angaben
Zusatz:
Alle Angaben zum Objekt beruhen auf Angaben des Eigentümers und dienen ausschließlich einer ersten Information. Es wird keine Haftung für die Richtigkeit und Vollständigkeit übernommen. Eine Haftung erfolgt höchstens für grobe Fahrlässigkeit und/oder Vorsatz.
Provision:
Der Maklervertrag mit mdpro-Consulting kommt durch schriftliche Vereinbarung oder durch die Inanspruchnahme unserer Maklertätigkeit auf der Basis des Erhaltes unseres Objekt-Exposé's zustande.
Die Maklerprovision (die MwSt. ist hierbei inklusive) wird nach Abschluss eines notariellen Kaufvertrages verdient und fällig. Berechnungsgrundlage ist hierbei der Kaufpreis aus dem notariellen Kaufvertrag.
Das Unternehmen mdpro-Consulting erhält einen unmittelbaren Zahlungsanspruch gegenüber dem Käufer (Vertrag zugunsten Dritter, § 328 BGB).
Grunderwerbssteuer, Notar- und Gerichtskosten trägt der Käufer.