Dieses außergewöhnliche Penthouse vereint modernes Wohnen, energieeffiziente Technik und durchdachte Architektur in perfekter Harmonie. Die Wohnung erstreckt sich über die gesamte oberste Etage und begeistert mit offenem Grundriss, großzügigen Raumhöhen und lichtdurchfluteten Wohnbereichen.
Ein besonderes Highlight: Der Aufzug führt direkt in die Wohnung. Schon beim Betreten eröffnet sich durch die offene Treppengestaltung ins Dachgeschoss ein beeindruckendes Raumgefühl – elegant, hell und großzügig.
Das Penthouse profitiert von der Satteldachkonstruktion, die im Wohnbereich beeindruckend hohe Decken ermöglicht und der Wohnung eine luftige, exklusive Atmosphäre verleiht. Trotz des Dachgeschosscharakters geht dank der clever integrierten Gauben kaum Wohnfläche verloren – sie schaffen zusätzliche Kopffreiheit, harmonische Proportionen und zugleich gemütliche Rückzugszonen.
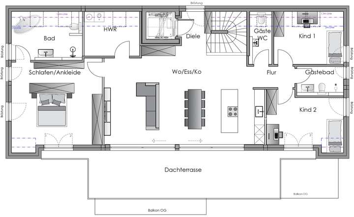
Der offene Wohn-, Ess- und Kochbereich bildet das Herzstück der Wohnung. Große Aluminiumfensterelemente zur Südseite sorgen für lichtdurchflutete Räume und verbinden den Innenraum mit der großzügigen Dachterrasse – ein idealer Ort zum Entspannen oder für gesellige Abende.
Das Hauptschlafzimmer mit Ankleidebereich sowie das elegante Hauptbad mit freistehender Badewanne bieten höchsten Wohnkomfort. Zwei helle Kinderzimmer, ein modernes Gästebad und ein Gäste-WC vervollständigen das Raumangebot. Der Hauswirtschaftsraum mit Platz für Waschmaschine, Trockner und Stauraum sorgt für zusätzliche Alltagstauglichkeit.
Technik & Nachhaltigkeit:
Jedes Penthouse ist mit einer eigenen Wärmepumpe ausgestattet, die in Verbindung mit einer Photovoltaikanlage auf dem Dach für eine nachhaltige, effiziente und zukunftssichere Energieversorgung sorgt. Die PV-Anlage ist erweiterbar. Diese Kombination reduziert nicht nur die Energiekosten erheblich, sondern steigert auch die Unabhängigkeit von externen Versorgern – ein klarer Vorteil für umweltbewusste Eigentümer.
Einzelgarage im Außenbereich
Diese Wohnung ist nicht nur ideal für Familien, sondern auch perfekt geeignet für Alleinstehende oder Paare, die das Besondere suchen:
Ein Zuhause, das modern, komfortabel und repräsentativ ist – mit viel Raum für Individualität, Design und Lebensqualität.
Durch die Kombination aus offener Architektur, Satteldach mit Gauben und Südausrichtung entsteht ein unvergleichliches Wohngefühl – hell, großzügig und dennoch wohnlich – ein echtes Penthouse mit Charakter.
Penthouse - Lebensqualität über den Dächern
Alte Str. 11,
65550 Limburg an der Lahn
Auf Karte anzeigen
Finanzierungszertifikat
In nur zwei Minuten zu Ihrem persönlichen Finanzierungszertifkat.
Infos
| Wohnungskategorie | Dachgeschoss |
|---|---|
| Etage | 2 von 2 |
| Wohnfläche ca. | 149 m2 |
| Bezugsfrei ab | Anfang 2027 |
| Zimmer | 4 |
| Schlafzimmer | 3 |
| Badezimmer | 2 |
| Garage/Stellplatz | Garage |
| Anzahl Garage/Stellplatz | 1 |
Kosten
| Kaufpreis |
789.500 € |
|---|---|
| Preis für Garage/Stellplatz | 25.000 € |
| Provision | Nein |
Finanzierungsrechner:
Kaufpreis:
600.000 €
Eigenkapital:
600.000 €
Monatliche Rate
0 €
Effektiver Jahreszins
0 %
Sollzinsbindung
10 Jahre
Bausubstanz & Energieausweis
| Baujahr | 2026 |
|---|---|
| Objektzustand | Erstbezug |
| Qualität der Austattung | Gehoben |
| Heizungsart | Wärmepumpe |
| Wesentliche Energieträger | Strom |
| Energieausweis | liegt vor |
| Energieausweistyp | Bedarfsausweis |
| Energieverbrauchskennwert | 19,9 kWh/(m²*a) |
| Energieeffizienzklasse | A+ |
19,9
kWh/(m²*a)
Energieeffizienzklasse A+
- A+
- A
- B
- C
- D
- E
- F
- G
- H
- 0
- 25
- 50
- 75
- 100
- 125
- 150
- 175
- 200
- 225
- >250
Beschreibung des Objekts
Weitere Dokumente
FFP 2025-07-31KG 2025-07-11
Adresse
Alte Str. 11, 65550 Limburg an der Lahn
Interessante Orte
Preis- und Lageinformationen
Preistrend für Bestandsimmobilien in Limburg an der Lahn
>