Heimkommen... dieses Gefühl vermittelt das hier angebotene Domizil in jedem Fall...
Das ehemalige landwirtschaftliche Anwesen - wohl ursprünglich um 1850 erbaut - wurde mit viel Liebe zum Detail und geschmackvoll zwischen 2004 und 2013 Stück für Stück modernisiert und renoviert.
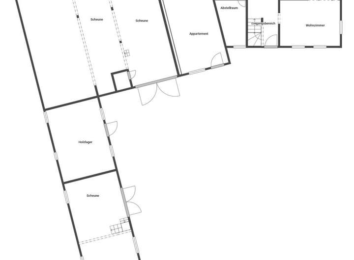
Mit etwa 170 qm Wohnfläche bietet Ihnen dieses Gehöft reichlich Platz für die ganze Familie. Die Wohnfläche verteilt sich wie folgt:
Erdgeschoss: Wohnzimmer, Esszimmer, Küche, Abstellraum, Heizungsraum, kleines Appartement mit separatem Eingang und Fußbodenheizung
Obergeschoss: Schlafzimmer, Kinderzimmer mit zwei Räumen, Badezimmer mit begehbarer Dusche und Eckbadewanne, Büro, Ankleidezimmer (nach oben offen)
Das doppelstöckige Dachgeschoss wäre zudem ausbaufähig und offeriert die Möglichkeit für zusätzlichen Wohnraum.
Ideal für Bastler und Schrauber: auf dem ca. 686 qm großen Grundstück befinden sich zwei Scheunen, die Ihnen genügend Fläche für Werkstatt, Abstell- sowie Lagermöglichkeiten bieten. Unter einer der beiden Scheunen finden Sie zudem einen großzügigen Gewölbekeller.
Das Einfamilienhaus ist derzeit vermietet. Wir bitten um Verständnis, dass wir zum Schutz der Privatsphäre der Mieter keine Innenaufnahmen veröffentlichen.
HOME SWEET HOME
97232 Giebelstadt
Die vollständige Adresse der Immobilie erhalten Sie vom Anbieter.
Auf Karte anzeigen
Die vollständige Adresse der Immobilie erhalten Sie vom Anbieter.
Finanzierungszertifikat
In nur zwei Minuten zu Ihrem persönlichen Finanzierungszertifkat.
Infos
| Haustyp | Einfamilienhaus |
|---|---|
| Etagenzahl | 2 |
| Wohnfläche ca. | 170 m2 |
| Grundstücksfläche | 686 m2 |
| Bezugsfrei ab | vermietet |
| Zimmer | 7 |
| Badezimmer | 1 |
Kosten
| Kaufpreis |
590.000 € |
|---|---|
| Provision |
3,57 % inkl. ges. MwSt. Die Maklercourtage für den Käufer beträgt 3 % aus dem Kaufpreis zuzüglich der gesetzlichen MwSt., somit gesamt 3,57 %. |
Finanzierungsrechner:
Kaufpreis:
600.000 €
Eigenkapital:
600.000 €
Monatliche Rate
0 €
Effektiver Jahreszins
0 %
Sollzinsbindung
10 Jahre
Bausubstanz & Energieausweis
| Baujahr | 1850 |
|---|---|
| Bauphase | Haus fertig gestellt |
| Objektzustand | Gepflegt |
| Qualität der Austattung | Normal |
| Heizungsart | Zentralheizung |
| Wesentliche Energieträger | Öl |
| Energieausweis | liegt vor |
| Energieausweistyp | Bedarfsausweis |
| Energieverbrauchskennwert | 165,2 kWh/(m²*a) |
| Energieeffizienzklasse | F |
165,2
kWh/(m²*a)
Energieeffizienzklasse F
- A+
- A
- B
- C
- D
- E
- F
- G
- H
- 0
- 25
- 50
- 75
- 100
- 125
- 150
- 175
- 200
- 225
- >250
Beschreibung des Objekts
Ausstattung
Erfolgte Modernisierungen/Renovierungen:
- 2004 Einbau doppelverglaster Kunststofffenster im OG und 2007 im EG (hier mit Schallschutz)
- Erneuerung der Strom- und Wasserleitungen
- 2009 Öl-Zentralheizung (Kaminofenanschluss)
- 2010 Neueindeckung und Dämmung Dach
- 2010 Außenfassade neu verputzt
- 2013 Erneuerung Badezimmer
Lage
Das Anwesen befindet sich in Giebelstadt.
Die Gemeinde hat alles, was man zum Leben braucht. Die Einwohner leben gern und dauerhaft in Ihrer kleinen Stadt und Familienfreundlichkeit wird hier groß geschrieben. Kindergarten und Grundschule befinden sich am Ort. Giebelstadt verfügt über eine sehr gesunde Infrastruktur und eine sehr gute Verkehrsanbindung.
Sonstige Angaben
Energiebedarfsausweis Energiekennwert: 165,19 kWh/(qm*a) Energieeffizienz: Klasse F (kl.200) Heizung: Zentralheizung mit Öl Baujahr laut Energieausweis: 1890
Grundriss
Grundriss Erdgeschoss
>
>
Grundriss Obergeschoss
>
>
Grundriss Obergeschoss
>
>
Grundriss Dachgeschoss
>
>
Adresse
97232 Giebelstadt
Interessante Orte
Preis- und Lageinformationen
Preistrend für Bestandsimmobilien in Giebelstadt