Sie suchen ein top gepflegtes neues zu Hause? Dann sind Sie hier richtig! Dieses Architektenhaus befindet sich in ruhiger und idyllischer Wohnlage und begeistert mit einem neuwertigen Zustand. Die im Jahr 2010/11 in solider Massivbauweise mit Satteldach errichtete Immobilie wurde mit viel Liebe zum Detail gebaut. Das Einfamilienhaus überzeugt mit zeitloser Architektur und einem top gepflegten Zustand – perfekt für anspruchsvolle Käufer. In ruhiger Lage empfängt Sie dieses Haus mit offenen Armen – ein Ort zum Ankommen, Wohlfühlen und Bleiben. Die Immobilie wird derzeit als Ferienhaus an Urlaubsgäste vermietet und überzeugt durch eine vollständige Ausstattung mit Möbeln und Inventar. Der angegebene Kaufpreis umfasst bereits das vollständige Mobiliar sowie das gesamte Inventar. Hier können Sie direkt mit der Vermietung durchstarten. Helle, lichtdurchflutete Räume, großzügige Fensterelemente unterstreichen den besonderen Charme dieser Immobilie. Der offen gestaltete Wohn- und Essbereich mit Einbauküche und direktem Zugang zur Terrasse bildet das Herzstück der Immobilie. Die Wohnküche schafft den idealen
Rahmen für genussvolle Kochabende mit Familie und Freunden. Die Kunststofffenster sind dreifach verglast und mit Jalousien ausgestattet. Die Beheizung des Objekts erfolgt über eine Gas-Zentralheizung. Die liebevoll angelegte Gartenanlage mit Südwest-Ausrichtung bietet Ihnen viel Sonnenlicht, eine großzügige, überdachte Terrasse und ein hohes Maß an Privatsphäre – ideal zum Entspannen und Genießen. Eine Immobilie für Menschen die Wohnqualität mit Lebensqualität verbinden und dieses besondere Immobilienangebot zu schätzen wissen. Hier können Sie Ihren Wohnraum wahr werden lassen und die Vorzüge einer gehobenen Lebensqualität in vollen Zügen genießen.
Top gepfl. Einfamilienhaus mit Nebengebäude, Terrasse, Gartenanlage in ruhiger Wohnlage!
26736 Krummhörn
Die vollständige Adresse der Immobilie erhalten Sie vom Anbieter.
Auf Karte anzeigen
Die vollständige Adresse der Immobilie erhalten Sie vom Anbieter.
Finanzierungszertifikat
In nur zwei Minuten zu Ihrem persönlichen Finanzierungszertifkat.
Infos
| Haustyp | Einfamilienhaus |
|---|---|
| Wohnfläche ca. | 130 m2 |
| Grundstücksfläche | 674 m2 |
| Bezugsfrei ab | Nach Absprache |
| Zimmer | 4 |
| Schlafzimmer | 3 |
| Badezimmer | 3 |
Kosten
| Kaufpreis |
365.000 € |
|---|---|
| Provision |
Die Maklerprovision beträgt für den Käufer 3,57% vom Kaufpreis inkl. ges. MwSt.. |
Finanzierungsrechner:
Kaufpreis:
600.000 €
Eigenkapital:
600.000 €
Monatliche Rate
0 €
Effektiver Jahreszins
0 %
Sollzinsbindung
10 Jahre
Bausubstanz & Energieausweis
| Baujahr | 2010 |
|---|---|
| Objektzustand | Gepflegt |
| Heizungsart | Zentralheizung |
| Wesentliche Energieträger | Gas |
| Energieausweis | liegt vor |
| Energieausweistyp | Verbrauchsausweis |
| Energieverbrauchskennwert | 97,7 kWh/(m²*a) |
| Energieeffizienzklasse | C |
97,7
kWh/(m²*a)
Energieeffizienzklasse C
- A+
- A
- B
- C
- D
- E
- F
- G
- H
- 0
- 25
- 50
- 75
- 100
- 125
- 150
- 175
- 200
- 225
- >250
Beschreibung des Objekts
Ausstattung
Besondere Ausstattungsmerkmale/Durchgeführte Renovierungsmaßnahmen:
-Fußbodenheizung in allen Bädern
-Dreifachverglaste Kunststofffenster mit Jalousien
-Formschöne Fliesen
-Komplett möbliert, inkl. Inventar
-Nebengebäude
-2024 Renovierung der Immobilie: Zaunanlage, Terrassenüberdachung, Fliegengitter, neue Thermostate an den Radiatoren, Maler-/Raumarbeiten
-Grillstation
-WA/TR Anschluss im HWR
Lage
26736 Krummhörn OT. Grimersum (Ruhige Lage, Greetsiel nur wenige PKW-Min. entfernt, Einkaufsmöglichkeiten (Pewsum) nur wenige PKW-Min. entfernt, gute ÖPNV, Nordseeküstenregion)
Sonstige Angaben
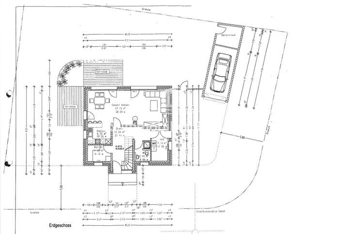
Grundstück: ca. 674qm (Nebengebäude, überdachte Terrasse, Terrassenplatz/Freisitz Gartenanlage)
EG: Flur/Diele, Gäste-WC, HWR, Bad, Vorratsraum, offener Wohn-/Essbereich mit Küche, Kamin und Zugang zur Terrasse,
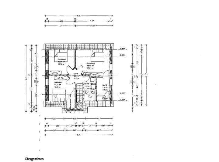
OG: Flur/Diele, Elternschlafzimmer mit Bad en Suite, 2x Kinderzimmer, Duschbad mit WC
Gesamt: Wohn-/Nutzfläche ca. 130qm
Grundriss
EG
>
>
OG
>
>
Adresse
26736 Krummhörn
Interessante Orte
Preis- und Lageinformationen
Preistrend für Bestandsimmobilien in Krummhörn