In einer der begehrtesten Lagen von Kronberg liegt dieses besondere Haus, das 1903/04 als Stallgebäude der benachbarten Villa Jay erbaut wurde. Entworfen vom renommierten Architekten Alfred Günther, ist es ein architektonisches Zeitzeugnis mit unverwechselbarem Charakter – und heute ein Zuhause mit Seele, das auf eine kleine Familie wartet.
Der großzügige und liebevoll angelegte Garten bietet eine besondere Privatsphäre und lädt zum Entspannen ein. Für gemütliche Abende mit Freunden und Familie oder zum Spielen für die Kinder ist der Garten wie gemacht. Die einzigartige Atmosphäre durch die Vielfalt der Pflanzen ist etwas ganz Besonderes. Die beiden Terrassen bieten zu jeder Tageszeit und bei jedem Wetter den passenden Ort für gemütliches Beisammensein.
Der längsrechteckige Bau besticht durch seine konstruktive Fachwerkaufstockung über einem massiven, hell verputzten Erdgeschoss, das im Zuge späterer Maßnahmen modern durchfenstert wurde. Ein knaufbesetztes Krüppelwalmdach mit darunter liegendem Zwerchhaus fügt sich harmonisch in das historische Gesamtbild ein. Die zur Straße gewandte Giebelseite wird durch eine mittig angeordnete Rundbogenöffnung geprägt, vor der ein auf Konsolen ruhender Holzbalkon einen reizvollen Akzent setzt.
Das Gebäude war schon bei seiner Errichtung durch umliegende Bebauung von der Villa getrennt und steht heute eigenständig als charmantes Wohnhaus inmitten eines ruhigen, gewachsenen Umfelds.
Im Jahr 1978 wurde das Haus kernsaniert. Seither wurde es liebevoll gepflegt, bedarf jedoch eines behutsamen Updates, um heutigen energetischen und technischen Standards zu entsprechen. Es bietet damit eine ideale Basis für kleine Familien, die das Besondere suchen – ein Zuhause mit Geschichte, Stil und Potenzial.
Historisches Kleinod in Bestlage von Kronberg – Charaktervoll & charmant
61476 Kronberg im Taunus
Die vollständige Adresse der Immobilie erhalten Sie vom Anbieter.
Auf Karte anzeigen
Die vollständige Adresse der Immobilie erhalten Sie vom Anbieter.
Finanzierungszertifikat
In nur zwei Minuten zu Ihrem persönlichen Finanzierungszertifkat.
Infos
| Haustyp | Einfamilienhaus |
|---|---|
| Wohnfläche ca. | 167 m2 |
| Grundstücksfläche | 842 m2 |
| Bezugsfrei ab | nach Vereinbarung |
| Zimmer | 4 |
| Schlafzimmer | 2 |
| Badezimmer | 2 |
| Garage/Stellplatz | Garage |
| Anzahl Garage/Stellplatz | 1 |
Kosten
| Kaufpreis |
1.690.000 € |
|---|---|
| Provision |
3,57 % inkl. gesetzlicher MwSt. von aktuell 19 % bezogen auf den Kaufpreis |
Finanzierungsrechner:
Kaufpreis:
600.000 €
Eigenkapital:
600.000 €
Monatliche Rate
0 €
Effektiver Jahreszins
0 %
Sollzinsbindung
10 Jahre
Bausubstanz & Energieausweis
| Baujahr | 1903 |
|---|---|
| Denkmalschutzobjekt | Ja |
| Objektzustand | Gepflegt |
| Qualität der Austattung | Normal |
| Wesentliche Energieträger | Gas |
| Energieausweis | laut Gesetz nicht erforderlich |
Beschreibung des Objekts
Ausstattung
_ vier Zimmer
_ zwei Schlafzimmer
_ ein Hobbyraum im Keller
_ zwei Badezimmer
_ Einbauschränke
_ Kamin
_ Holzfenster
_ Marmorboden im Erdgeschoss
_ Denkmalschutz
_ Markise
_ Nord-Balkon, Süd-Terrasse, Süd-Balkon und seitliche Terrasse
_ besonders liebevoll angelegter und gepflegter Garten
_ 1978 Umbau von einer Remise zu einem Wohnhaus
_ Alarmanlage
_ Keller
_ Stellplatz, Garagenstellplatz
Lage
-Am südlichen Fuße des Taunus gelegen befindet sich Kronberg im Taunus
-Kronberg als staatlich anerkannter Luftkurort
-Kronberg verdankt seinen Namen der prächtigen Burg, die bis in das 16. Jahrhundert Stammsitz des Rheinischen Ritterkreises war
-Zusammen mit dem 44 Meter hohem Bergfried schmückt die Burg die gut erhaltene Altstadt Kronbergs
-Opel-Zoo als weitere Hauptattraktion der Stadt nur wenige Minuten zu Fuß entfernt, ebenso wie das berühmte Schlosshotel Kronberg
-Für zusätzliche Naherholung sorgen unter anderem die Streuobstwiesen sowie der Viktoriapark
-Zahlreiche Museen, Märkte und Feste verleihen dem Ort ein reichhaltiges Kulturprogramm.
-Über die A66 und A661 erreicht man die Frankfurter Innenstadt in ca. 25 Minuten
-Den Flughafen sogar nach nur ca. 20 Minuten Fahrzeit
-Die S-Bahnlinie 4 verbindet Kronberg und Frankfurt im Nahverkehr_ Am südlichen Fuße des Taunus gelegen befindet sich Kronberg im Taunus
-Kronberg als taatlich anerkannter Luftkurort
-Kronberg verdankt seinen Namen der prächtigen Burg, die bis in das 16. Jahrhundert Stammsitz des Rheinischen Ritterkreises war
-Zusammen mit dem 44 Meter hohem Bergfried schmückt die Burg die gut erhaltene Altstadt Kronbergs
-Opel-Zoo als weitere Hauptattraktion der Stadt nur wenige Minuten zu Fuß entfernt, ebenso wie das berühmte Schlosshotel Kronberg
-Für zusätzliche Naherholung sorgen unter anderem die Streuobstwiesen sowie der Viktoriapark
-Zahlreiche Museen, Märkte und Feste verleihen dem Ort ein reichhaltiges Kulturprogramm.
-Über die A66 und A661 erreicht man die Frankfurter Innenstadt in ca. 25 Minuten
-Den Flughafen sogar nach nur ca. 20 Minuten Fahrzeit
-Die S-Bahnlinie 4 verbindet Kronberg und Frankfurt im Nahverkehr
Grundriss
Erdgeschoss
>
>
Dachgeschoss
>
>
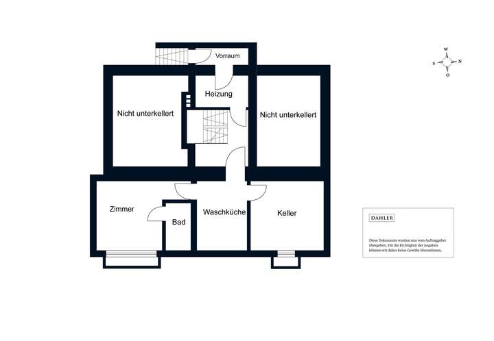
Kellergeschoss
>
>
Adresse
61476 Kronberg im Taunus
Interessante Orte
Preis- und Lageinformationen
Preistrend für Bestandsimmobilien in Kronberg im Taunus