In begehrter Lage von Hannover-Herrenhausen präsentiert sich dieses gepflegte Mehrfamilienhaus als ideale Kapitalanlage mit langfristigem Entwicklungspotenzial. Das ruhig im Stadtbild eingebettete Objekt befindet sich auf einem rund 835 m² großen Grundstück und verfügt über eine Gesamtwohnfläche von ca. 348 m², verteilt auf 6 Wohneinheiten mit durchdachten Grundrissen.
Die Wohnungsgrößen sind auf die Bedürfnisse einer vielseitigen Mieterschaft abgestimmt – insbesondere auf Berufstätige, Paare und kleine Familien, die eine zentrale und gut angebundene Wohnlage mit kurzen Wegen zu Einkaufsmöglichkeiten, Cafés, Restaurants und öffentlichen Verkehrsmitteln schätzen.
Die hervorragende Mikrolage in Herrenhausen sowie die anhaltend hohe Nachfrage nach Wohnraum in diesem Stadtteil gewährleisten eine stabile und nachhaltige Vermietbarkeit.
Das Gebäude befindet sich in einem gepflegten Zustand und wurde laufend instand gehalten. Je nach Ausstattung der einzelnen Wohnungen besteht zusätzliches Potenzial für gezielte Modernisierungen, durch die sich sowohl der Wohnkomfort als auch die Mietrendite weiter steigern lassen. Die vorhandenen Stellplätze auf dem Grundstück stellen im innerstädtischen Raum einen deutlichen Mehrwert dar.
Insgesamt bietet dieses Mehrfamilienhaus eine solide und entwicklungsfähige Investitionsmöglichkeit in einer der gefragtesten Lagen Hannovers.
Die Nettojahresmiete für das gesamte Objekt liegt bei 33.840 €.
Gerne stellen wir Ihnen bei Interesse weiterführende Unterlagen zur Verfügung. Überzeugen Sie sich persönlich bei einem Besichtigungstermin von den Vorzügen dieser besonderen Immobilie – wir freuen uns auf Ihre Anfrage.
Kapitalanleger aufgepasst, MFH in Herrenhausen
30419 Hannover
Die vollständige Adresse der Immobilie erhalten Sie vom Anbieter.
Auf Karte anzeigen
Die vollständige Adresse der Immobilie erhalten Sie vom Anbieter.
Finanzierungszertifikat
In nur zwei Minuten zu Ihrem persönlichen Finanzierungszertifkat.
Infos
| Haustyp | Mehrfamilienhaus |
|---|---|
| Etagenzahl | 2 |
| Wohnfläche ca. | 348 m2 |
| Grundstücksfläche | 835 m2 |
| Zimmer | 17 |
| Garage/Stellplatz | Garage |
| Anzahl Garage/Stellplatz | 2 |
Kosten
| Kaufpreis |
750.000 € |
|---|---|
| Provision |
5,95 % v. Kaufpreis (inkl. ges. MwSt.) 5,95 % v. Kaufpreis (inkl. ges. MwSt.), verdient und fällig mit Beurkundung des notariellen Kaufvertrags. |
| Mieteinnahmen | 2.820 € |
Finanzierungsrechner:
Kaufpreis:
600.000 €
Eigenkapital:
600.000 €
Monatliche Rate
0 €
Effektiver Jahreszins
0 %
Sollzinsbindung
10 Jahre
Bausubstanz & Energieausweis
| Baujahr | 1937 |
|---|---|
| Heizungsart | Etagenheizung |
| Wesentliche Energieträger | Gas |
| Energieausweis | liegt vor |
| Energieausweistyp | Bedarfsausweis |
| Energieverbrauchskennwert | 167,7 kWh/(m²*a) |
| Energieeffizienzklasse | F |
167,7
kWh/(m²*a)
Energieeffizienzklasse F
- A+
- A
- B
- C
- D
- E
- F
- G
- H
- 0
- 25
- 50
- 75
- 100
- 125
- 150
- 175
- 200
- 225
- >250
Beschreibung des Objekts
Ausstattung
- MFH
- 6 Wohneinheiten
- Letzte Renovierung 2025 / Eine Einheit
- Jahresnettomiete 33.840 €
- Letzte Modernisierung 2025
- Elektrik 3-adrig
- Etagenheizung Bj. 1999-2021 - Fenster mit 2-fach Verglasung
- 2 Garagen
- 2 Stellplätze
- Kein Leerstand
GFZ: vorh. 501 m²
GRZ: vorh. 172 m²
Lage
Entdecken Sie Ihr neues Zuhause im charmanten Stadtteil Hannover Herrenhausen. Diese Immobilie befindet sich in einer ruhigen und dennoch zentrumsnahen Lage, die sowohl Familien als auch Singles und Paare anspricht.
Hannover Herrenhausen ist bekannt für seine grünen Parks und die Nähe zur Herrenhäuser Gärten, einem der schönsten Barockgärten Deutschlands. Hier genießen Sie die perfekte Balance zwischen Stadtleben und Natur.
Die Anbindung an das öffentliche Verkehrsnetz ist hervorragend. Mehrere Bus- und Straßenbahnlinien sorgen für eine schnelle und bequeme Verbindung in die Innenstadt von Hannover sowie zu anderen wichtigen Stadtteilen. Auch Autofahrer profitieren von der guten Infrastruktur, mit direkter Anbindung an die Autobahnen A2 und A37.
In unmittelbarer Nähe finden Sie eine Vielzahl an Einkaufsmöglichkeiten, Restaurants und Cafés. Schulen, Kindergärten und medizinische Einrichtungen sind ebenfalls gut erreichbar, sodass Sie für alle Lebenslagen bestens gerüstet sind.
Herrenhausen bietet zudem eine hohe Lebensqualität mit zahlreichen Freizeitmöglichkeiten. Ob Spaziergänge im Großen Garten, Sportaktivitäten im nahegelegenen Sportpark oder kulturelle Events – hier ist für jeden etwas dabei.
Nutzen Sie die Gelegenheit, in diesem einladenden Stadtteil Fuß zu fassen und genießen Sie das Beste, was Hannover Herrenhausen zu bieten hat.
Sonstige Angaben
Besichtigungstermine und Verhandlungen sind ausschließlich über uns zu führen. Bitte bewahren Sie die Privatsphäre und sehen Sie vom Betreten des Grundstücks ohne Begleitung unseres Immobilienmaklers ab.
Haben Sie ein Haus oder eine Wohnung zu verkaufen oder zu vermieten? Wir beraten Sie gern. Besuchen Sie uns in unserem Immobilienbüro in der Podbielskistraße 282 in 30655 Hannover.
Sie erreichen uns außerdem per Mail unter info@burow-lutz.de oder per Telefon unter 0511 554 774 80.
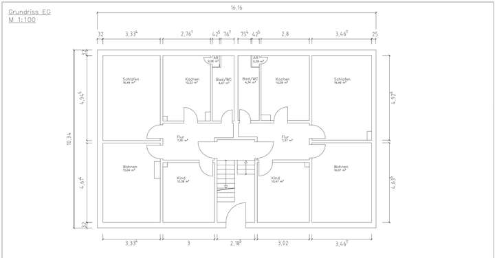
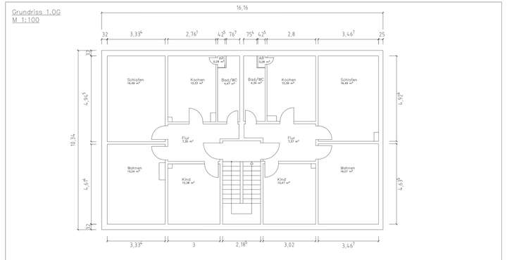
Grundriss
Grundriss_EG
>
>
Grundriss_DG
>
>
Grundriss_OG
>
>
Adresse
30419 Hannover
Interessante Orte
Preis- und Lageinformationen
Preistrend für Bestandsimmobilien in Burg