- Großzügiges Mehrfamilienhaus in Bahlingen am Kaiserstuhl zum Kauf
- Baujahr 1981, gepflegter Zustand
- Gesamtgrundstücksgröße von ca. 890 m²
- Drei Etagen mit einer Gesamtwohnfläche von ca. 335 m²
- Insgesamt drei Wohneinheiten mit ca. 11 Zimmer, ideal für große Familien oder als Renditeobjekt:
Untergeschoss: 75 m² 2 Zimmer (aktuell vermietet)
- 2017 saniert
Erdgeschoss: 140 m² , 5 Zimmer
- 2013 saniert
Dachgeschoss: 120 m² , 4 Zimmer
- 2017 saniert
- Gemütlicher Kamin für entspannte Abende
- Balkon für sonnige Stunden im Freien im Erdgeschoss und Dachgeschoss
- Übergabe des Hauses frei nach Absprache möglich
- Ruhige Lage mit guter Anbindung und charmantem Umfeld am Kaiserstuhl
IMMORath.de - Modernes Wohnen mit hochwertiger Ausstattung
79353 Bahlingen am Kaiserstuhl
Die vollständige Adresse der Immobilie erhalten Sie vom Anbieter.
Auf Karte anzeigen
Die vollständige Adresse der Immobilie erhalten Sie vom Anbieter.
Finanzierungszertifikat
In nur zwei Minuten zu Ihrem persönlichen Finanzierungszertifkat.
Infos
| Haustyp | Einfamilienhaus |
|---|---|
| Etagenzahl | 3 |
| Wohnfläche ca. | 335 m2 |
| Grundstücksfläche | 890 m2 |
| Bezugsfrei ab | Frei nach Absprache |
| Zimmer | 11 |
| Badezimmer | 4 |
| Garage/Stellplatz | Garage |
| Anzahl Garage/Stellplatz | 2 |
Kosten
| Kaufpreis |
1.290.000 € |
|---|---|
| Provision |
3,57% |
Finanzierungsrechner:
Kaufpreis:
600.000 €
Eigenkapital:
600.000 €
Monatliche Rate
0 €
Effektiver Jahreszins
0 %
Sollzinsbindung
10 Jahre
Bausubstanz & Energieausweis
| Baujahr | 1981 |
|---|---|
| Objektzustand | Gepflegt |
| Qualität der Austattung | Gehoben |
| Heizungsart | Solar-Heizung |
| Wesentliche Energieträger | Öl |
| Energieausweis | liegt vor |
| Energieausweistyp | Verbrauchsausweis |
| Energieverbrauchskennwert | 67,8 kWh/(m²*a) |
| Energieeffizienzklasse | B |
67,8
kWh/(m²*a)
Energieeffizienzklasse B
- A+
- A
- B
- C
- D
- E
- F
- G
- H
- 0
- 25
- 50
- 75
- 100
- 125
- 150
- 175
- 200
- 225
- >250
Beschreibung des Objekts
Lage
Diese schöne Immobilie befindet sich in Bahlingen am Kaiserstuhl. Die Lage bietet eine gute Balance zwischen naturnaher Ruhe und städtischer Erreichbarkeit.
Bahlingen am Kaiserstuhl bietet eine gute Infrastruktur. So liegt der nähst gelegene Supermarkt nur etwa 1,8 Kilometer entfernt. Zudem befinden sich Bäckereien, eine Metzgerei und eine Apotheke jeweils in ca. 1 Kilometer Entfernung, was den täglichen Bedarf schnell abdeckt. Weiterhin befinden sich mehrere Ärzte im Ort. Die Anbindung an die nächstgelegene Autobahn in ca. 4,5 Kilometern, sowie die Nähe zum Bahnhof im Ort in ca. 1,4 Kilometern ist besonders für Pendler komfortabel.
Für Familien mit Kindern ist die Lage der Immobilie besonders attraktiv, da sich Grundschule und drei Kindergärten direkt im Ort befinden. Des Weiteren gibt es viele Wanderrouten in naher Umgebung.
Bahlingen bietet zudem eine Vielzahl an Freizeitmöglichkeiten. In unmittelbarer Nähe liegen mehrere Restaurants und Cafés.
Sonstige Angaben
Sie haben Interesse und möchten zeitnah die Immobilie besichtigen? Kein Problem! Schicken Sie uns gerne Ihre Anfrage, Sie werden von der Immobilie begeistert sein!
Alle vom Eigentümer bereitgestellten Informationen werden als zuverlässig erachtet, aber nicht garantiert und sollten unabhängig verifiziert werden. Wir übernehmen keinerlei Gewähr für die Richtigkeit der Angaben.
Der Courtageanteil des Käufers beträgt 3,57% des tatsächlichen Kaufpreises inklusive der gesetzlichen Mehrwertsteuer.
Der Courtageanteil ist im Kaufpreis nicht enthalten und ist vom Käufer an uns zu zahlen. Er ist fällig und zahlbar bei Notariat.
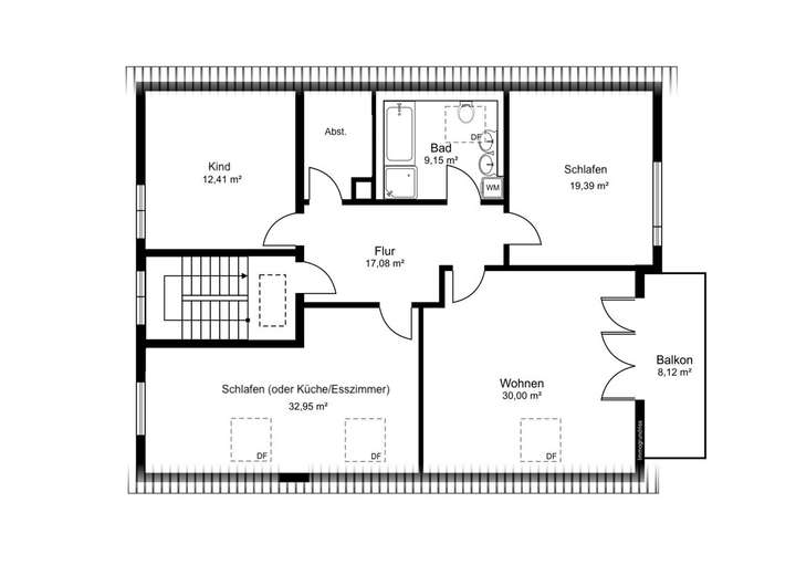
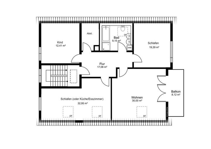
Grundriss
Untergeschoss
>
>
Erdgeschoss
>
>
Dachgeschoss
>
>
Adresse
79353 Bahlingen am Kaiserstuhl
Interessante Orte
Preis- und Lageinformationen
Preistrend für Bestandsimmobilien in Bahlingen am Kaiserstuhl