Vielseitig, gepflegt und mit Potenzial – dieses charmante 4-Parteienhaus aus ca. 1909 bietet eine seltene Kombination aus solider Kapitalanlage, großzügigem Wohnen und flexibler Nutzungsmöglichkeit.
Auf ca. 243 m² Wohnfläche und ca. 55 m² Nutzfläche erstrecken sich vier attraktive Wohneinheiten mit individuellen Zuschnitten, ergänzt durch Terrassen, Balkone und einen gepflegten Gartenbereich. Das Haus steht auf einem ca. 144 m² großen Grundstück und ist voll unterkellert – inklusive Waschraum und praktischer Abstellflächen für alle Bewohner.
Aktuell sind drei von vier Wohnungen vermietet, die Nettokaltmiete beträgt ca. 16.800 € jährlich. Nach vollständiger Vermietung ist eine jährliche Kaltmiete von ca. 31.000 € realistisch. Die ca. 113 m² große Maisonettewohnung im Erdgeschoss und Souterrain steht derzeit leer und eignet sich hervorragend zur Selbstnutzung oder zur Vermietung. Sie bietet ca. vier bis fünf Zimmer, zwei Badezimmer, eine Einbauküche sowie eine Terrasse mit direktem Gartenzugang – ideal für Familien oder Wohngemeinschaften.
Ergänzt wird das Haus durch zwei klassische 3-Zimmer-Wohnungen in den Obergeschossen – jeweils mit Küche, Bad und Balkon – sowie eine charmante 1-Zimmer-Wohnung im Dachgeschoss mit Küche, Tageslichtbad und Dachterrasse. Letztere bietet einen schönen Rückzugsort mit Blick über die Dächer der Umgebung.
Ausstattungsseitig überzeugt das Haus mit massiver Bauweise und einem frischen Außenanstrich. Die Wohnräume sind mit Laminat in Echtholzoptik und Fliesenböden ausgestattet, das Treppenhaus ist hell und gepflegt. Die Fenster bestehen aus weißem Kunststoff (teilweise erneuert ca. 2024) mit Isolierverglasung. Alle Einheiten verfügen über eigene Gasetagenheizungen, die Maisonettewohnung zusätzlich über einen Warmwasserspeicher.
Zwei überdachte Hauseingänge schaffen Komfort im Alltag. Balkone und Terrassen wurden mit hochwertigem Bangkiraiholz belegt. Die exponierte Deckenhöhe im Erdgeschoss und Souterrain sorgt für ein großzügiges Wohngefühl. Zudem punktet das Objekt mit freundlichen und zuverlässigen Mietern sowie einem gemütlichen Garten mit Schuppen – begehbar direkt von der unteren Wohnung.
Das Haus ist nicht nach WEG geteilt und eröffnet dadurch besonders viel Flexibilität – egal ob Sie selbst einziehen, aufteilen oder vollständig vermieten möchten. Eine seltene Gelegenheit in einem gefragten Bremer Stadtteil mit idealer Infrastruktur, kurzen Wegen und guten Parkmöglichkeiten direkt vor der Tür.
Hastedt | 18er Faktor: Für Kapitalanleger & Eigennutzer, Vierparteienhaus
28207 Bremen
Die vollständige Adresse der Immobilie erhalten Sie vom Anbieter.
Auf Karte anzeigen
Die vollständige Adresse der Immobilie erhalten Sie vom Anbieter.
Finanzierungszertifikat
In nur zwei Minuten zu Ihrem persönlichen Finanzierungszertifkat.
Infos
| Haustyp | Mehrfamilienhaus |
|---|---|
| Wohnfläche ca. | 243 m2 |
| Nutzfläche | 55 m2 |
| Grundstücksfläche | 144 m2 |
| Bezugsfrei ab | Nach Vereinbarung |
| Zimmer | 14 |
| Schlafzimmer | 10 |
| Badezimmer | 5 |
Kosten
| Kaufpreis |
569.900 € |
|---|---|
| Provision |
5,95 % (inkl. 19,00 % MwSt.) vom Käufer |
Finanzierungsrechner:
Kaufpreis:
600.000 €
Eigenkapital:
600.000 €
Monatliche Rate
0 €
Effektiver Jahreszins
0 %
Sollzinsbindung
10 Jahre
Bausubstanz & Energieausweis
| Baujahr | 1909 |
|---|---|
| Objektzustand | Modernisiert |
| Heizungsart | Etagenheizung |
| Wesentliche Energieträger | Gas |
| Energieausweis | liegt vor |
| Energieausweistyp | Bedarfsausweis |
| Energieverbrauchskennwert | 154,0 kWh/(m²*a) |
Beschreibung des Objekts
Ausstattung
- 4er Mehrfamilienhaus für Selbstnutzer und Kapitalanleger
- Baujahr: ca. 1909
- Grundstücksfläche: ca. 144 m²
- Wohnfläche: ca. 243 m²
- Nutzfläche: ca. 55 m²
- Aktuelle Nettokaltmiete: ca. 16.800 € jährlich
- Direkte Kaltmiete von ca. 31.000 € möglich nach Vollvermietung
- Ca. 113 m² gerade Frei: Bereit für den Selbsteinzug oder zum Vermieten
- Ca. 113 m² Maisonettewohnung ideal für eine Familie oder WG
- Maisonettewohnung mit 4-5 Zimmer, zwei Bäder, Terrasse und Garten
- Zwei Obergeschosse mit je drei Zimmern, Einbauküche, Bad und Balkon
- Dachgeschoss mit einem Zimmer, Einbauküche, Bad und Dachterrasse
- Weiteres Mietsteigerungspotenzial
- Massive Bauweise mit frischem Außenanstrich
- Zwei regengeschützte Hauseingänge
- Helles und geräumiges Treppenhaus
- Bodenbeläge: Laminat in Echtholzoptik und und Fliesen
- Exponierte Deckenhöhe im Erdgeschoss und Souterrain
- Weiße Isolierfenster aus Kunststoff, teilweise von ca. 2024
- Gasetagenheizung in jeder Einheit
- Warmwasserspeicher für die Maisonettewohnung
- Vollunterkellerung mit teilweise neuen Bodenbelägen
- Viel Nutzfläche für alle Bewohner und Waschraum vorhanden
- Gemütlicher Garten mit Schuppen vom Erdgeschoss begehbar
- Terrassen und Balkone mit Bangkiraiholz ausgelegt
- Himmelsausrichtung: Nord-Osten
- Option auf Selbstnutzung der beiden Untergeschosse
- Sehr freundliche und umgängliche Mieter
- Gute Parkmöglichkeiten direkt vor der Tür vorhanden
- Potenzial: Selbstnutzen oder untere Partei aufteilen und vermieten
- Das Haus ist nicht nach WEG geteilt
- Traumhaftes Renditeobjekt inmitten der Hansestadt Bremen
- Beliebtes Stadtviertel mit ideal angrenzender Infrastruktur
Lage
Dieses wunderschöne Mehrfamilienhaus befindet sich in einer begehrten Einbahnstraße im Herzen von Bremen, dem zentralen Stadtteil Hastedt.
Hastedt liegt ca. vier bis fünf Kilometer östlich des Zentrums von Bremen, am rechten Ufer der Weser.
Die benachbarten Stadt- oder Ortsteile sind im Norden die Vahr, im Süden Obervieland, im Westen die Östliche Vorstadt sowie Schwachhausen und im Osten der Ortsteil Hemelingen.
Das lebendige Viertel zeichnet sich durch seine attraktive Umgebung und seine ausgezeichnete Anbindung aus.
Die Gegend bietet eine ideale Mischung aus urbanem Lebensstil und Wohnkomfort.
Die direkte Nähe zu Geschäften, Restaurants, Cafés und kulturellen Einrichtungen macht es zu einem äußerst lebendigen und dynamischen Stadtteil.
Einkaufsmöglichkeiten für den täglichen Bedarf sind bequem zu Fuß erreichbar.
Ein REWE Supermarkt sowie ein LIDL Discounter befindet sich jeweils ein Katzensprung entfernt.
Das beliebte Bauhaus in der Stresemannstraße ist nur ca. einen Kilometer entfernt. Hier kommen alle Hobby-Handwerker voll auf Ihre Kosten.
Die exzellente Verkehrsanbindung ist ein weiteres Highlight dieser Lage: Öffentliche Verkehrsmittel wie Busse und Straßenbahnen sind in unmittelbarer Nähe vorhanden und ermöglichen eine schnelle und unkomplizierte Verbindung ins Zentrum Bremens oder die Umgebung.
Auch die Autobahn ist in kurzer Fahrzeit erreichbar, was die Anbindung an das überregionale Verkehrsnetz erleichtert.
In ca. zehn Minuten gelangt man jeweils auf die A1 und die A27.
Neben der urbanen Infrastruktur bietet Hastedt grüne Oasen und Naherholungsgebiete in der Umgebung, die zu entspannten Spaziergängen und Outdoor-Aktivitäten einladen.
In nur etwas weniger als einem Kilometer vom Objekt entfernt liegt der beliebte Osterdeich mit dem Weserstadion.
Insgesamt verspricht die Lage des Objekts eine hohe Lebensqualität und eine ausgezeichnete Infrastruktur, was sie zu einer der begehrtesten Wohnlagen in Bremen macht.
Überzeugen Sie sich gerne persönlich.
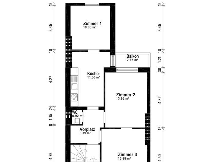
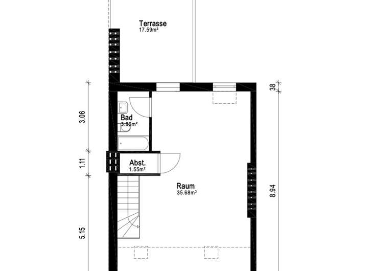
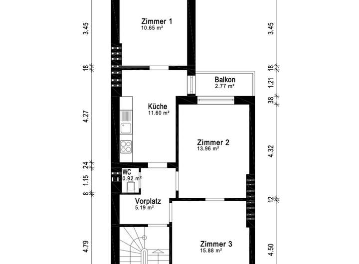
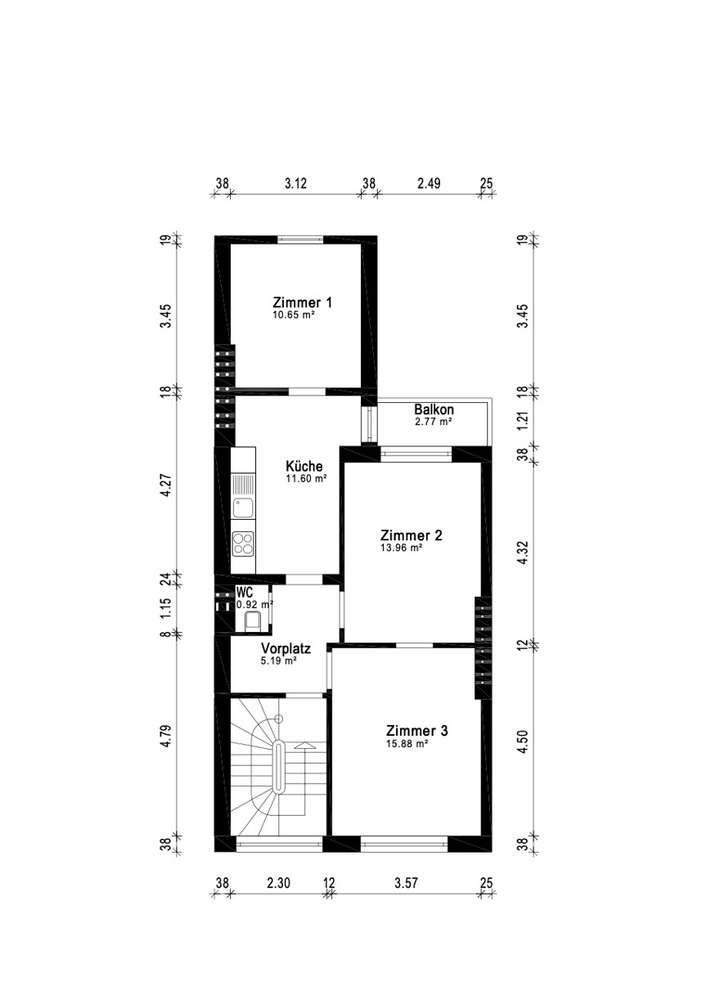
Grundriss
S&P | Grundriss Kellergeschoss
>
>
S&P | Grundriss Souterrain
>
>
S&P | Grundriss Erdgeschoss
>
>
S&P | Grundriss 1. Obergeschos
>
>
S&P | Grundriss 2. Obergeschos
>
>
S&P | Grundriss Dachgeschoss
>
>
Adresse
28207 Bremen
Interessante Orte
Preis- und Lageinformationen
Preistrend für Bestandsimmobilien in Hastedt