Das EVOLUTION 124 von Bien-Zenker ist mehr als nur ein Haus - es ist ein Ausdruck Ihrer Persönlichkeit und Ihres Stils. Mit einer großzügigen Wohnfläche von 300 Quadratmetern auf einem beeindruckenden Grundstück von 800 Quadratmetern bietet es Raum für all Ihre Träume und Ideen. Die Architektur des Hauses kann nach Ihren Wünschen variieren, ob modernes Satteldach oder elegantes Walmdach, die großen Fensterflächen sorgen stets für lichtdurchflutete Räume. Die Flexibilität in der Fassadengestaltung ermöglicht es Ihnen, Ihr Zuhause genauso zu gestalten, wie Sie es sich erträumen.
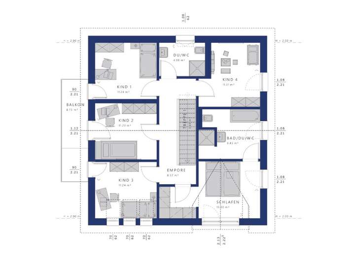
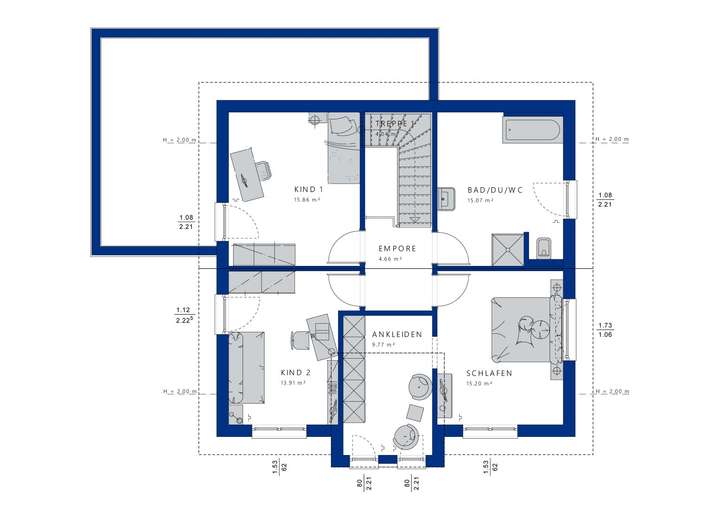
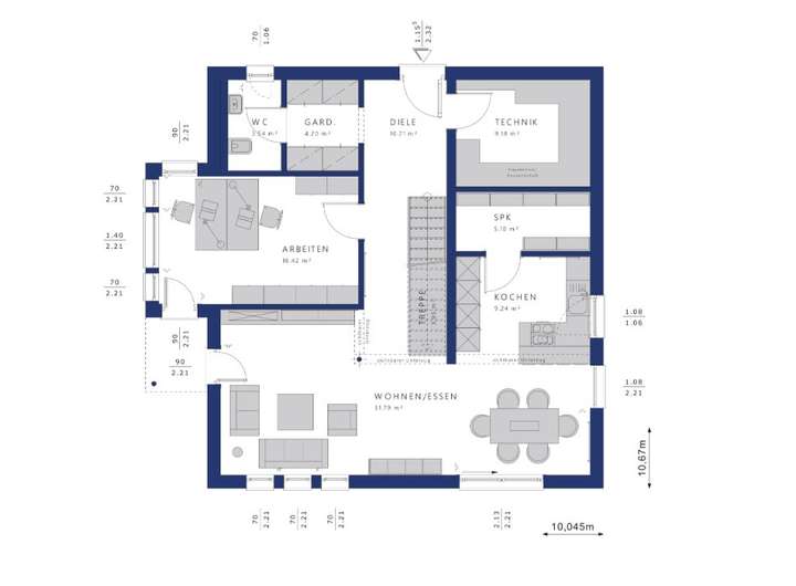
Der Grundriss dieses Hauses ist so durchdacht, dass er sowohl Familien als auch Paaren oder Einzelpersonen ein Höchstmaß an Komfort bietet. Die einzelnen Zimmer sind geschickt miteinander verknüpft, sodass Privatsphäre ebenso gewährleistet ist wie offene Gemeinschaftsbereiche für gemeinsame Stunden mit Familie und Freunden. Trotz der großzügigen Wohnfläche bleibt das Design übersichtlich und harmonisch und lässt Spielraum für individuelle Anpassungen.
Die Ausbaustufe "Zur Ausstattung fertig" (ZAF) gibt Ihnen die Möglichkeit, selbst Hand anzulegen und Ihrem neuen Heim eine persönliche Note zu verleihen. Während Bien-Zenker den Rohbau sowie den technischen Innenausbau übernimmt, gestalten Sie Böden, Malerarbeiten und Sanitärinstallationen eigenständig. Dies spart nicht nur Kosten, sondern gibt Ihnen die Gelegenheit, handwerklich tätig zu werden und Ihr neues Zuhause ganz nach Ihren Vorstellungen auszustatten.
Bei Bien-Zenker ist jedes Haus ein einzigartiges Projekt. Mit über 115 Jahren Erfahrung im Fertighausbau steht das Unternehmen für Qualität und Zuverlässigkeit. Hier wird Wohngesundheit großgeschrieben: Nachhaltige Materialien und zukunftsweisende Standards garantieren ein behagliches Wohnklima für Generationen.
Grundrisse und Abbildungen können Extras zeigen. Flächenangaben nach DIN 277.
Gestalten Sie Ihre Zukunft mit Bien-Zenker: Ein Haus, so individuell wie Sie selbst!
34212 Melsungen
Die vollständige Adresse der Immobilie erhalten Sie vom Anbieter.
Auf Karte anzeigen
Die vollständige Adresse der Immobilie erhalten Sie vom Anbieter.
Finanzierungszertifikat
In nur zwei Minuten zu Ihrem persönlichen Finanzierungszertifkat.
Infos
| Wohnfläche ca. | 152 m2 |
|---|---|
| Grundstücksfläche | 522 m2 |
| Zimmer | 5 |
Kosten
| Kaufpreis |
341.796 € |
|---|
Finanzierungsrechner:
Kaufpreis:
600.000 €
Eigenkapital:
600.000 €
Monatliche Rate
0 €
Effektiver Jahreszins
0 %
Sollzinsbindung
10 Jahre
Bausubstanz & Energieausweis
| Baujahr | unbekannt |
|---|---|
| Bauphase | Haus in Planung (projektiert) |
Beschreibung des Objekts
Ausstattung
Im Herzen dieses Projekthauses finden Sie einen durchdachten Grundriss, der die 300 m² Wohnfläche perfekt nutzt. Jede Etage ist darauf ausgelegt, Ihnen maximalen Komfort zu bieten - von großzügigen Wohnbereichen bis hin zu ruhigen Rückzugsorten. Damit eignet sich das Haus ideal sowohl für große Familien als auch für Paare oder Singles, die viel Raum zur Entfaltung suchen.
Ein weiteres Highlight sind die großen Fensterflächen, die jeden Raum in warmes Tageslicht tauchen und gleichzeitig eine nahtlose Verbindung zwischen Innen- und Außenbereich schaffen. Der Garten lädt dazu ein, entspannte Nachmittage im Freien zu verbringen oder gesellige Abende mit Freunden zu genießen. Das moderne Design wird durch funktionale Details ergänzt, die Ihren Alltag erleichtern.
Mit der Ausbaustufe "Zur Ausstattung fertig" haben Sie als Bauherr die Freiheit, Ihr neues Zuhause individuell zu gestalten - ohne auf den Komfort eines professionellen Rohbaus verzichten zu müssen. So können Sie persönlich entscheiden, welche Farben Ihre Wände schmücken sollen oder welcher Bodenbelag am besten zu Ihrem Lebensstil passt. Dieses Modell bietet Ihnen nicht nur finanzielle Vorteile durch Eigenleistungspotentiale, sondern auch die Freude am kreativen Gestalten.
Lage
Melsungen bietet eine perfekte Mischung aus ländlicher Idylle und städtischem Komfort. In unmittelbarer Nähe befinden sich zahlreiche Bildungs- und Gesundheitseinrichtungen sowie vielfältige Einkaufsmöglichkeiten für den täglichen Bedarf ebenso wie charmante Boutiquen zum Stöbern am Wochenende. Für Freizeitaktivitäten stehen Ihnen Sportvereine sowie malerische Wanderwege zur Verfügung.
Die hervorragende Anbindung an den öffentlichen Nahverkehr macht es leicht, in die umliegenden Städte zu gelangen oder einfach nur stressfrei innerhalb Melsungens unterwegs zu sein. Auch die Autobahn ist schnell erreichbar, was Pendlern zugutekommt und spontane Ausflüge erleichtert.
Adresse
34212 Melsungen
Interessante Orte
Preis- und Lageinformationen
Preistrend für Bestandsimmobilien in Melsungen