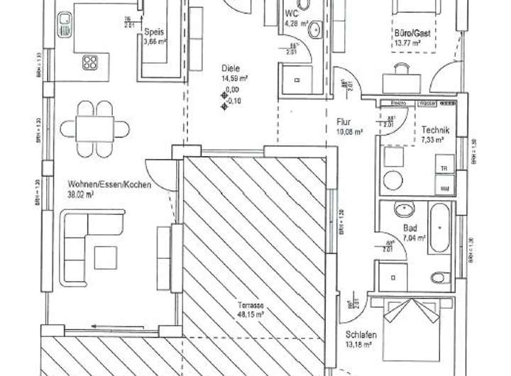
Neu ein Atrium Bungalow schlüsselfertig ca. 110 m² Wfl. für Ihre Privatsphäre incl. Grundstück erschlossen
Ein Atrium Bungalow, ebenerdig, für Sie und Ihre Privatsphäre mit viel Licht, ein Schmuckstück. Eine Variante für Wohnqualität in seiner schönsten Form. Die Top ausgearbeitete, ca. 110 m² Wohnfläche, kann jederzeit auf Ihre Wünsche noch verändert und vergrößert werden. Ihren Traum, den wir für Sie jederzeit verwirklichen können. Ein Massivholz Eigenheim mit Top Qualität und Ausstattung, aus hochwertigen sprich ökologischen, zertifizierten Materialen, im Handwerksbetrieb handwerklich für eine gute Wohngesundheit, hergestellt. Ein Einzelprodukt nicht von der Stange, jeweils nach Ihren Wünschen „geht nicht, gibt’s nicht“ ausgearbeitet wird, Ihren Wünschen sind keine Grenzen gesetzt, ein Unikat mit Nachhaltigkeit. Alles aus einer Hand. „MADE in BAVARIA“ Sie erhalten eine komplette Offerte für Schlüsselfertig, incl. Transportkosten, Tieflader, einen Autokran etc., der die in den modernen Produktionsräumen fertig vormontierten Holzmodule auf Streifen- oder Schraubfundamenten verbaut und montiert. Sie vermeiden Stress, Baulärm auf Ihrem Grundstück. Die Fundamente werden von uns geliefert, sind im Preis enthalten, somit keine Bodenplatte und es gibt keine Bodenversieglung, nur den Fundament Aushub. Es können alle Vorgaben eines Bebauungsplanes ob Dach Form, Geschoße, Eindeckung etc. realisiert werden. Der Preis kann sich evtl. noch geringfügig verändern wenn eine zusätzliche Bemusterung erfolgt, eine außergewöhnliche, weite Anfahrt notwendig wird, oder erschwerende Umstände bei der Zufahrt auf das Grundstück auftreten. Sie erhalten ein Angebot vor der Vertragsunterzeichnung das alles planbare enthält.
Neu ein Atrium Bungalow ca. 110 m² Wfl. Wohnqualität in schönster Form incl. Grundstück schlüsselfe
Markomannenstr. 19,
89407 Dillingen an der Donau
Auf Karte anzeigen
Finanzierungszertifikat
In nur zwei Minuten zu Ihrem persönlichen Finanzierungszertifkat.
Infos
| Haustyp | Bungalow |
|---|---|
| Etagenzahl | 1 |
| Wohnfläche ca. | 110 m2 |
| Nutzfläche | 110 m2 |
| Grundstücksfläche | 519 m2 |
| Bezugsfrei ab | 2026 |
| Zimmer | 3 |
| Schlafzimmer | 2 |
| Badezimmer | 1 |
Kosten
| Kaufpreis |
683.000 € |
|---|---|
| Provision | Nein |
Finanzierungsrechner:
Kaufpreis:
600.000 €
Eigenkapital:
600.000 €
Monatliche Rate
0 €
Effektiver Jahreszins
0 %
Sollzinsbindung
10 Jahre
Bausubstanz & Energieausweis
| Baujahr | 2026 |
|---|---|
| Bauphase | Haus in Planung (projektiert) |
| Objektzustand | Erstbezug |
| Qualität der Austattung | Gehoben |
| Heizungsart | Wärmepumpe |
| Wesentliche Energieträger | Strom |
| Energieausweis | liegt zur Besichtigung vor |
Beschreibung des Objekts
Ausstattung
* Auf kleinsten Grundstücken realisierbar * Barriere frei und behindertengerecht * Kurze Bauzeit * Werthaltiges Eigentum * Ökologisch schonend * Gesundes Raumklima * Welche Fassade, Holz, Putz etc. es gibt nahezu mit unbegrenzten Möglichkeiten *Heizung; Luft- und Solarheizung, oderWärmepumpe, oder Fernwärme oder ?
* 3fach Verglasung und Fensterauswahl Holz, Kunststoff, Alu * Pflegeleichte Bodenbeläge, nach Wahl, Parkett, Kork, Linoleum, Fliesen etc. * Badezimmer Dusche oder Wanne oder beides Fliesen moderne fugenlose HPL-Platten die sich easy reinigen lassen * Top Decken- Wand- und Bodenaufbau * Individuell modular planbar * Alles aus einer Hand
Lage
Top ruhige, unverbaubare Randlage in einem Garten, Sonne von früh bis abends
Sehr gute Infrastruktur, im Ort eine eigene Bäckerei, die Kernstadt DLG hat ein Krankenhaus , Ärzte in allen Fachrichtungen, ALDI, LIEDL, Kaufland in ca. 2 km usw.
Sonstige Angaben
Ab Bahnhof Dillingen stündlich ein Zug nach Donauwörth (ICE-Anschluss) oder nach Günzburg Ulm ebenfalls ICE Anschluss
Bei einer Finanzierung sind wir Ihnen bei Bedarf ebenfalls behilflich.
Die Produktion erfolgt in den modernen Fertigungshallen, wird mit einem Tieflader zum Ort des Geschehens gefahren, der Aufbau auf den bereits fertigen Schraub- oder Streifenfundamenten erfolgt in wenigen Stunden. Jetzt folgt die Schlüsselübergabe . Bei entsprechender Pflege und Wartung der hochwertigen Baumaterialen erzielen wir eine Langlebigkeit von 100 Jahren und mehr.
Adresse
Markomannenstr. 19, 89407 Dillingen an der Donau
Interessante Orte
Preis- und Lageinformationen
Preistrend für Bestandsimmobilien in Dillingen an der Donau