Im beliebten Duisburger Stadtteil Rahm entsteht ein modernes Neubauquartier mit insgesamt 17 hochwertig ausgestatteten Reihenhäusern – ideal für Familien, die Wert auf eine ruhige Wohnlage, gute Anbindung und energieeffizientes Bauen legen. Das Baugebiet liegt in der Straße Am Böllert, eingebettet zwischen einer ruhigen Wohnstraße und der nahegelegenen S-Bahn-Linie. So genießen Sie sowohl Ruhe als auch optimale Erreichbarkeit.
Die Reihenhäuser bieten ca. 120 m² familienfreundlich gestaltete Wohnfläche, verteilt auf fünf gut durchdachte Zimmer. Im Erdgeschoss erwartet Sie ein großzügiger, offener Wohn-, Ess- und Kochbereich mit direktem Zugang zur Terrasse und zum eigenen Garten – der perfekte Ort für gemeinsame Familienzeit oder entspannte Abende. Ein separates Gäste-WC ergänzt das Raumangebot auf dieser Ebene.
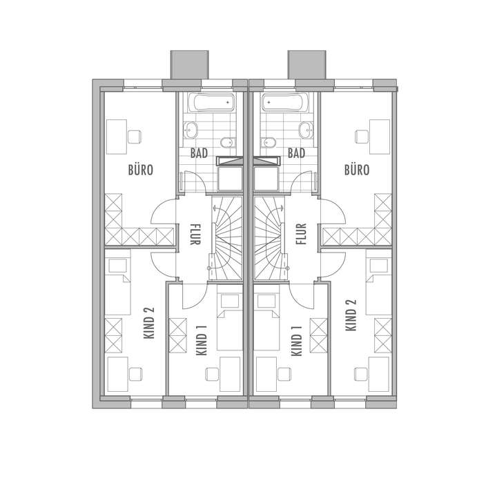
Im Obergeschoss befinden sich zwei Kinder- oder Gästezimmer sowie ein zusätzliches Zimmer, das sich ideal als Büro oder Hobbyraum eignet. Das moderne Tageslichtbad überzeugt mit bodengleicher Dusche, Badewanne und einem Fenster – funktional und komfortabel zugleich.
Ein besonderes Highlight ist das Dachgeschoss: Hier befindet sich das großzügige Elternschlafzimmer mit viel Privatsphäre. Zusätzlich besteht die Möglichkeit, auf Wunsch ein weiteres Badezimmer im Dachgeschoss einzuplanen – ideal als Elternbad oder für größere Familien.
Jede Einheit verfügt über einen eigenen Garten, eine Terrasse sowie einen PKW-Stellplatz – optional ist auch der Bau einer Garage möglich. Die Häuser werden schlüsselfertig übergeben und überzeugen durch eine nachhaltige Bauweise: Eine moderne Luft-Wasser-Wärmepumpe in Kombination mit einer Photovoltaikanlage sorgt für eine effiziente und zukunftssichere Energieversorgung.
Die Einheiten entsprechen dem Standard eines KfW-Effizienzhauses 40 und sind mit dem Qualitätssiegel „Nachhaltiges Gebäude“ ausgezeichnet. Dadurch profitieren insbesondere Familien von attraktiven Fördermöglichkeiten und günstigen KfW-Kreditkonditionen.
Dieses Neubauprojekt verbindet modernen Wohnkomfort mit nachhaltiger Bauqualität und einer Lage, die sowohl naturnah als auch verkehrsgünstig ist – ein ideales Zuhause für Familien, Paare oder alle, die ihren Wohntraum in Duisburg verwirklichen möchten.
Ihr neues Familienzuhause im modernen Neubauquartier
47269 Duisburg
Die vollständige Adresse der Immobilie erhalten Sie vom Anbieter.
Auf Karte anzeigen
Die vollständige Adresse der Immobilie erhalten Sie vom Anbieter.
Finanzierungszertifikat
In nur zwei Minuten zu Ihrem persönlichen Finanzierungszertifkat.
Infos
| Haustyp | Reihenmittelhaus |
|---|---|
| Etagenzahl | 3 |
| Wohnfläche ca. | 124 m2 |
| Nutzfläche | 5 m2 |
| Grundstücksfläche | 102,42 m2 |
| Zimmer | 5 |
| Schlafzimmer | 4 |
| Badezimmer | 1 |
| Garage/Stellplatz | Garage |
| Anzahl Garage/Stellplatz | 1 |
Kosten
| Kaufpreis |
479.000 € |
|---|---|
| Preis für Garage/Stellplatz | 20.000 € |
| Provision | Nein |
Finanzierungsrechner:
Kaufpreis:
600.000 €
Eigenkapital:
600.000 €
Monatliche Rate
0 €
Effektiver Jahreszins
0 %
Sollzinsbindung
10 Jahre
Bausubstanz & Energieausweis
| Baujahr | 2026 |
|---|---|
| Bauphase | Haus in Planung (projektiert) |
| Objektzustand | Erstbezug |
| Qualität der Austattung | Gehoben |
| Heizungsart | Wärmepumpe |
| Energieausweis | liegt vor |
| Energieausweistyp | Bedarfsausweis |
| Energieverbrauchskennwert | 6,2 kWh/(m²*a) |
| Energieeffizienzklasse | A+ |
6,2
kWh/(m²*a)
Energieeffizienzklasse A+
- A+
- A
- B
- C
- D
- E
- F
- G
- H
- 0
- 25
- 50
- 75
- 100
- 125
- 150
- 175
- 200
- 225
- >250
Beschreibung des Objekts
Ausstattung
Highlights im Überblick:
* Keller als Sonderwunsch möglich
* Schlüsselfertige Übergabe – einziehen und wohlfühlen
* Privater Garten und Terrasse
* Außenstellplatz und Garage (zusätzliche Kosten)
* KfW-Effizienzhaus 40 – energieeffizient und förderfähig
* Luft-Wasser-Wärmepumpe & Photovoltaikanlage
* Ausgezeichnet mit dem Qualitätssiegel Nachhaltiges Gebäude
* Attraktive KfW-Konditionen speziell für Familien
* Sonderwunschberatung
Lage
Die Mikrolage bietet damit das Beste aus zwei Welten: kurze Wege in die City durch die fußläufig erreichbare S-Bahn-Station Rahm mit direkter Anbindung nach Duisburg und
Düsseldorf – und zugleich ein wohnliches Umfeld mit gewachsenen Strukturen, Einkaufsmöglichkeiten in den Nachbarorten, Schulen und Freizeitangeboten in der Nähe.
Mit dem Café Liebelein als Treffpunkt, den Kindertagesstätten und der Parkanlage vor der Haustüre existiert eine gut funktionierende Infrastruktur für junge Familien.
Duisburg-Rahm liegt im Süden der Stadt und überzeugt durch eine ideale Kombination aus zentraler Infrastruktur und naturnaher Umgebung. Über die nahegelegene A524 besteht eine direkte Anbindung an das überregionale Autobahnnetz mit schnellen Verbindungen zur A3 und A52 – ein klarer Vorteil für Pendler und alle, die beruflich viel unterwegs sind. Ebenso komfortabel ist die Anbindung an den öffentlichen Nahverkehr: Mit der S-Bahn-Linie S1 erreichen Sie sowohl die Duisburger als auch die Düsseldorfer Innenstadt in kurzer Zeit. Ein besonderes Plus für Vielflieger ist die Nachbarschaft zur Haltestelle Düsseldorf Flughafen, die nur eine
Station entfernt liegt und damit spontane Urlaubs- oder Geschäftsreisen besonders
unkompliziert macht.
In Sachen Freizeitgestaltung hat Duisburg-Rahm viel zu bieten: Sportbegeisterte
finden im Stadtteil und der unmittelbaren Umgebung zahlreiche Vereine mit einem
breiten Angebot. Die Turnerschaft Duisburg-Rahm 1906 e.V. ist einer der traditionsreichsten Vereine und bietet von Fußball über Handball bis hin zu Tennis und Boule vielfältige Möglichkeiten für Groß und Klein. Ebenfalls aktiv ist der TV 1900 Duisburg Wanheim, der neben klassischen Sportarten wie Volleyball und Gymnastik auch Fitness- und Radsportprogramme anbietet.
Sonstige Angaben
Als erfahrener Projektentwickler und Bauträger steht die Novaform Deutschland
GmbH für moderne Wohnkonzepte, die Lebensqualität, Nachhaltigkeit und Wertbeständigkeit miteinander verbinden. Mit einem klaren Anspruch an Qualität und Architektur entwickelt Novaform Projekte, die nicht nur heutigen Anforderungen gerecht werden, sondern auch die Bedürfnisse von morgen im Blick haben.
Die Philosophie von Novaform ist es, Projekte zu entwickeln, die sich harmonisch in ihr Umfeld einfügen und dabei einen echten Mehrwert für ihre Bewohner und die Nachbarschaft schaffen. Ob urbane Reihenhausanlagen, moderne Mehrfamilienhäuser oder innovative Wohnquartiere – jedes Bauvorhaben wird mit großer Sorgfalt und einem hohen Anspruch an Gestaltung, Funktionalität und Werthaltigkeit umgesetzt.
Grundriss
Erdgeschoss
>
>
Obergeschoss
>
>
Dachgeschoss
>
>
Adresse
47269 Duisburg
Interessante Orte
Preis- und Lageinformationen
Preistrend für Bestandsimmobilien in Rahm