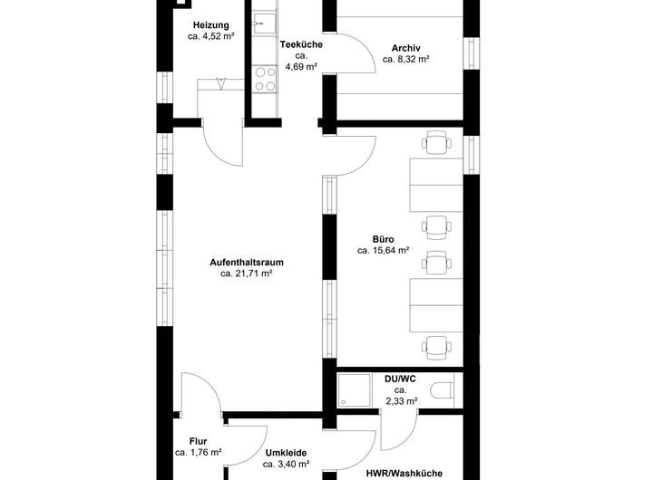
Dieses 1993 erbaute ehemalige Pfarrhaus präsentiert sich heute als attraktives Gewerbeobjekt mit einer Nutzfläche von ca. 303 m² auf einem großzügigen 1.361 m² großen Grundstück. Das barrierefrei zugängliche Erdgeschoss verfügt neben sieben Zimmern und mehreren Funktionsräumen über ein Behinderten-WC sowie ein zusätzliches Gäste-WC. Große, isolierverglaste Holzfenster lassen viel Licht in die Räume. Ein vorhandener Kaminzug muss erst durch einen Schornsteinfeger zugelassen werden, um einen Kamin installieren zu können. Im Kellergeschoss befinden sich weitere Funktionsräume, ein Duschbad und eine kleine Teeküche. Die dort installierte Gasheizung wurde 2016 erneuert. Das massive Gebäude ist umfassend ausgestattet, um modernen Ansprüchen gerecht zu werden. Für Ihre Sicherheit sorgen eine Alarmanlage und eine Brandmeldeanlage. Für eine schnelle und zuverlässige Internetverbindung ist ein Glasfaseranschluss vorhanden. Das Objekt wurde im Jahr 2011 energetisch optimiert durch eine Dämmung der Außenfassade und der Decke über dem Erdgeschoss. Auf dem Dachboden befindet sich zudem eine Be- und Entlüftungsanlage mit Wärmerückgewinnung, die für ein angenehmes Raumklima sorgt. Darüber hinaus bietet der Dachboden viel Platz als Lagerfläche. Im Außenbereich stehen ein Carport und ein Schuppen zur Verfügung, die zusätzlichen Stauraum bieten. Eine überdachte Terrasse lädt zum Verweilen im Freien ein. Der ca. 1.100 m² große pflegeleichte Garten weist einen ortstypischen Baumbestand auf und bietet viel Raum für Ihre gestalterischen Ideen. Insgesamt stehen 11 Stellplätze inklusive Carport zur Verfügung. Die bestehende Nutzungsgenehmigung bezieht sich auf eine gewerbliche Nutzung. Eine Umwandlung in Wohnraum zur Ferienvermietung oder zum Selbstbezug ist vermutlich möglich, setzt aber die Genehmigung einer Nutzungsänderung durch das Bauamt voraus.
Vielseitig nutzbare Gewerbeimmobilie in Strandnähe
17509 Lubmin
Die vollständige Adresse der Immobilie erhalten Sie vom Anbieter.
Auf Karte anzeigen
Die vollständige Adresse der Immobilie erhalten Sie vom Anbieter.
Finanzierungszertifikat
In nur zwei Minuten zu Ihrem persönlichen Finanzierungszertifkat.
Infos
| Haustyp | Sonstige |
|---|---|
| Wohnfläche ca. | 248 m2 |
| Nutzfläche | 82 m2 |
| Grundstücksfläche | 1.361 m2 |
| Bezugsfrei ab | sofort verfügbar |
| Zimmer | 10 |
| Badezimmer | 3 |
| Anzahl Garage/Stellplatz | 11 |
Kosten
| Kaufpreis |
615.000 € |
|---|---|
| Provision |
3.57 % inkl. gesetzl. MwSt. |
Finanzierungsrechner:
Kaufpreis:
600.000 €
Eigenkapital:
600.000 €
Monatliche Rate
0 €
Effektiver Jahreszins
0 %
Sollzinsbindung
10 Jahre
Bausubstanz & Energieausweis
| Baujahr | 1993 |
|---|---|
| Letzte Sanierung | 2016 |
| Objektzustand | Gepflegt |
| Heizungsart | Zentralheizung |
| Wesentliche Energieträger | Gas |
| Energieausweis | liegt vor |
| Energieausweistyp | Verbrauchsausweis |
| Energieverbrauchskennwert | 107,0 kWh/(m²*a) |
| Energieeffizienzklasse | D |
107,0
kWh/(m²*a)
Energieeffizienzklasse D
- A+
- A
- B
- C
- D
- E
- F
- G
- H
- 0
- 25
- 50
- 75
- 100
- 125
- 150
- 175
- 200
- 225
- >250
Beschreibung des Objekts
Ausstattung
Abstellkammer
Seniorengerecht
Arbeitszimmer
Blick ins Grüne
Parkett
Fliesen
PVC
Teilunterkellert
Lage
Die Immobilie liegt in einer ruhigen und dennoch sehr zentralen Wohngegend von Lubmin. Der beliebte Badestrand von Lubmin, der längste Sandstrand zwischen den Inseln Rügen und Usedom, ist in wenigen Minuten zu Fuß erreichbar. Die am Greifswalder Bodden gelegene Gemeinde Lubmin ist seit 1999 als anerkanntes Seebad bekannt. Sie liegt direkt zwischen den beiden Ostseeinseln Rügen und Usedom. Lubmin liegt am südlichen Teil des Greifswalder Boddens und bietet bei gutem Wetter einen beeindruckenden Blick bis zur Insel Rügen und zur vorgelagerten Insel Vilm. Der ehemalige Bauern- und Fischerort zeichnet sich durch einen breiten, feinsandigen Strand aus, der ideale Bedingungen für Badevergnügen und maritime Aktivitäten aller Art bietet. Ein besonderer Anziehungspunkt ist zudem die im Jahr 1992 neu erbaute Seebrücke. Lubmin ist außerdem für sein natürliches Umfeld bekannt, das Ruhe, Entspannung und Erholung inmitten reizvoller Natur verspricht. Der Ort bietet gute Einkaufsmöglichkeiten, Arztpraxen und ein Kulturzentrum. Es gibt auch zahlreiche Restaurants und Cafés. Lubmin ist gut an die umliegenden Städte angebunden. So sind Wolgast, das „Tor zur Insel Usedom“, und die Hansestadt Greifswald in ca. 20 Minuten bequem mit dem Auto erreichbar. Anschluss an den überregionalen Verkehr gewährleisten unter anderem der Greifswalder Hauptbahnhof mit ICE-Anbindung sowie die Autobahn A20, die ca. 30 km von Lubmin entfernt ist.
Sonstige Angaben
Der Makler-Vertrag mit uns und/oder unserem Beauftragten kommt durch die Bestätigung der Inanspruchnahme unserer Maklertätigkeit in Textform zustande, wie z.B. insbesondere die Unterschrift des Suchkundenvertrages und/oder des Objekt-Exposés. Die Höhe der Courtage richtet sich nach den ab dem 23.12.2020 in Kraft getretenen gesetzlichen Regelungen zur Teilung der Maklercourtage. Hiernach wird die Courtage regelmäßig für beide Parteien (Eigentümer:in und Käufer:in) in Höhe von 3 % zuzüglich Umsatzsteuer in jeweils geltender Höhe, derzeit also insgesamt 3,57 % des Kaufpreises einschließlich Umsatzsteuer bei notariellem Vertragsabschluss verdient und fällig. Die Höhe der Bruttocourtage unterliegt einer Anpassung bei Steuersatzänderung. Grunderwerbssteuer, Notar- und Gerichtskosten trägt der Käufer:in.
Grundriss
Erdgeschoss
>
>
Kellergeschoss
>
>
Adresse
17509 Lubmin
Interessante Orte
Preis- und Lageinformationen
Preistrend für Bestandsimmobilien in Lubmin