Einfamilienhaus in Sulzemoos mit Miet- und Nutzungsperspektive.
Dieses Einfamilienhaus in Sulzemoos eröffnet eine besonders interessante Möglichkeit für Kapitalanleger und Eigennutzer gleichermaßen. Aktuell vermietet, lassen sich sofort verlässliche Mieteinnahmen erzielen, während schon heute an eine spätere Eigennutzung – etwa für die eigene Familie oder die Kinder – gedacht ist.
Durch die leichte Hanglage profitiert bereits das Kellergeschoss von angenehmem Tageslicht und bietet dadurch zusätzlichen Komfort sowie vielseitige Nutzungsmöglichkeiten. Im Erdgeschoss überzeugt eine durchdachte Grundrissaufteilung: drei Schlafzimmer, ein großzügiges Badezimmer, ein separates WC sowie der schöne Wohn- und Essbereich. Besonders reizvoll ist die Kombination aus gemütlichem Wohnzimmer, Essdiele und separater Küche, die Platz für gemeinsames Wohnen und individuelle Rückzugsmöglichkeiten schafft.
Von der Terrasse aus genießt man dank der erhöhten Lage ein herrliches Gefühl. Ein echtes Highlight ist zudem die große Dachterrasse oberhalb der Garage – perfekt geeignet für Feste, sportliche Aktivitäten oder einfach zum Sonne tanken. Der Garten ist ansprechend angelegt und lässt dennoch Raum für individuelle Gestaltungsideen.
Abgerundet wird das Angebot durch die großzügige Doppelgarage, die nicht nur Platz für zwei Fahrzeuge, sondern auch für Fahrräder, Werkzeuge oder Freizeitgeräte bietet.
Ein Haus mit klarer Perspektive: heute Mieteinnahmen sichern, später selbst einziehen. Nutzen Sie diese Gelegenheit zu einem Hauskauf mit Zukunft.
Einfamilienhaus in Sulzemoos – Heute vermieten, morgen Zuhause
Lindenstraße 18,
85254 Sulzemoos
Auf Karte anzeigen
Finanzierungszertifikat
In nur zwei Minuten zu Ihrem persönlichen Finanzierungszertifkat.
Infos
| Haustyp | Sonstige |
|---|---|
| Wohnfläche ca. | 105 m2 |
| Grundstücksfläche | 601 m2 |
| Zimmer | 4 |
| Schlafzimmer | 3 |
| Badezimmer | 1 |
Kosten
| Kaufpreis |
590.000 € |
|---|---|
| Provision |
3,57 % inkl. ges. MwSt. |
Finanzierungsrechner:
Kaufpreis:
600.000 €
Eigenkapital:
600.000 €
Monatliche Rate
0 €
Effektiver Jahreszins
0 %
Sollzinsbindung
10 Jahre
Bausubstanz & Energieausweis
| Baujahr | 1973 |
|---|---|
| Heizungsart | Zentralheizung |
| Wesentliche Energieträger | Öl |
| Energieausweis | liegt vor |
| Energieausweistyp | Verbrauchsausweis |
| Energieverbrauchskennwert | 260,7 kWh/(m²*a) |
| Energieeffizienzklasse | H |
260,7
kWh/(m²*a)
Energieeffizienzklasse H
- A+
- A
- B
- C
- D
- E
- F
- G
- H
- 0
- 25
- 50
- 75
- 100
- 125
- 150
- 175
- 200
- 225
- >250
Beschreibung des Objekts
Ausstattung
Modernisierungsmaßnahmen:
- Vollwärmeschutz ca. 1990er Jahre
- zweifachverglaste Kunststofffenster ca. 1990er Jahre
- Erneuerung beider Terrassengeländer 2003
- Granit Belag auf Terrasse Süd 2003
- Anstrich Haus mit Untersicht 2008
- Sanierung von Bad und WC 2009
- Erneuerung der Böden in Küche, Diele, Wohn-/Esszimmer, 3 Schlafzimmer 2011 (Fliesen und Laminat)
- Einbau Edelstahlkamin für Ölheizung 2012
- Neue Gartenmauer inkl. Gartenzaun 2024
- Abdichtung der seitlichen Garagenmauer 2024 + der Kelleraußenwand Nordseite Haus (Abdichtung erfolgte bis zur Bodenplatte, Noppenfolie, Rollkies)
- Abdichten Flachdach Garage 2024
- neue Dachterrasse auf Garage 2024
- Abdichten Kelleraußen- und Garagenwand an der Nordseite 2024
Lage
Sulzemoos ist ein kleiner, idyllischer Ort im begehrten Dachauer Landkreis – geprägt von naturnahem Wohnen und erholsamer Ruhe auf dem Land. Die attraktive Lage unmittelbar an der Autobahnanschlussstelle macht es besonders leicht, Städte wie Dachau, München und Augsburg schnell zu erreichen.
Im benachbarten Odelzhausen stehen sämtliche wichtige Einrichtungen zur Verfügung: Schulen, Kindergärten, vielfältige Einkaufsmöglichkeiten im Gewerbegebiet, Ärzte und Apotheken sowie vieles mehr sorgen für ideale Nahversorgung.
Direkt im Ort gibt es zudem eine beliebte Metzgerei und Hofläden, die für frische, regionale Produkte und eine persönliche Einkaufsatmosphäre sorgen.
Sulzemoos vereint ruhiges Landleben mit perfekter Mobilität und einer hervorragenden Infrastruktur – die ideale Wohnlage für alle, die sowohl Ruhe als auch beste Anbindungen schätzen.
Sonstige Angaben
Sämtliche Objektinformationen haben wir von Dritten erhalten. Für die Richtigkeit und Vollständigkeit der Angaben sowie zu den Angaben im Exposé übernehmen wir keine Haftung.
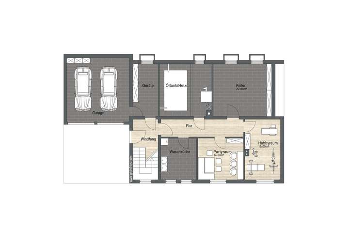
Grundriss
Erdgeschoss
>
>
Kellergeschoss
>
>
Adresse
Lindenstraße 18, 85254 Sulzemoos
Interessante Orte
Preis- und Lageinformationen
Preistrend für Bestandsimmobilien in Sulzemoos