Mehrfamilienhaus in Schuttern/Friesenheim mit Gewerbeeinheit!
- Gesamtfläche ca. 342 m ²
- Gepflegter Zustand trifft historische Bausubstanz
- Stellplätze im Hof
- Doppel- und Einzelgarage
- Gewerbeeinheit voll ausgestattet mit Kühlräumen und Küche
- Wohnbereich lässt sich in drei Einheiten aufteilen
- Aubaupotential im Dachgeschoss
- große Terrassen
- neue Heizung von 2024
- kein Denkmalschutz
Sprechen sie uns an für weitere Informationen und Unterlagen.
IMMORath.de - Gepflegtes Mehrfamilienhaus mit Gewerbe - und Wohnraum für individuelle Gestaltung
77948 Friesenheim
Die vollständige Adresse der Immobilie erhalten Sie vom Anbieter.
Auf Karte anzeigen
Die vollständige Adresse der Immobilie erhalten Sie vom Anbieter.
Finanzierungszertifikat
In nur zwei Minuten zu Ihrem persönlichen Finanzierungszertifkat.
Infos
| Etagenzahl | 2 |
|---|---|
| Wohnfläche ca. | 342 m2 |
| Grundstücksfläche | 382 m2 |
| Bezugsfrei ab | Frei nach Absprache |
| Zimmer | 9 |
| Garage/Stellplatz | Garage |
| Anzahl Garage/Stellplatz | 3 |
Kosten
| Kaufpreis |
549.000 € |
|---|---|
| Provision |
3,57% |
Finanzierungsrechner:
Kaufpreis:
600.000 €
Eigenkapital:
600.000 €
Monatliche Rate
0 €
Effektiver Jahreszins
0 %
Sollzinsbindung
10 Jahre
Bausubstanz & Energieausweis
| Baujahr | 1920 |
|---|---|
| Objektzustand | Gepflegt |
| Qualität der Austattung | Normal |
| Wesentliche Energieträger | Öl |
| Energieausweis | liegt vor |
| Energieausweistyp | Bedarfsausweis |
| Energieverbrauchskennwert | 320,5 kWh/(m²*a) |
Beschreibung des Objekts
Lage
Willkommen in Schuttern, das für seine idyllische Umgebung und gute Anbindung geschätzt wird. Dieses Mehrfamilienhaus mit Gewerbeeinheit befindet sich in einer schönen und zentral gelegenen Gegend, die sowohl Familien als auch Investoren anspricht. Das Objekt steht zurückversetzt zur Hauptstraße und besticht damit durch seine ruhige Lage mit Bushaltestelle vor der Türe.
Die Nähe zu Bildungseinrichtungen ist ein klarer Vorteil: Kindergarten und Grundschule befinden sich direkt im Ort - weiterführende Schulen wie eine Realschule und ein Gymnasium sind innerhalb von weniger als sieben Kilometern leicht zu erreichen.
Die Anbindung an den öffentlichen Nahverkehr ist exzellent, mit einer Bushaltestelle direkt vor dem Haus, die einen unkomplizierten Zugang zu den umliegenden Bereichen bietet. Für Pendler oder Ausflügler steht der nahegelegene Bahnhof in Friesenheim zur Verfügung, der eine bequeme Verbindung zu größeren Städten gewährleistet.
Einkaufsmöglichkeiten befinden sich in 50m Entfernung - Bäckerei Baumert mit Lebensmittel zur Grundversorgung und im Nachbarort Friesenheim und bieten alles Notwendige für den täglichen Bedarf. Darüber hinaus bietet das Naherholungsgebiet mit Badesee einen hohen Freizeitwert und die örtlichen Restaurants laden zum Genießen ein.
Die angenehme Erreichbarkeit wird durch die nahe gelegene Autobahn optimiert, die in nur sieben Kilometern Entfernung liegt und schnelle Verbindungen zu weiteren urbanen Zentren ermöglicht.
Sonstige Angaben
Sie haben Interesse und möchten zeitnah die Immobilie besichtigen? Kein Problem! Schicken Sie uns gerne Ihre Anfrage, Sie werden von der Immobilie begeistert sein!
Alle vom Eigentümer bereitgestellten Informationen werden als zuverlässig erachtet, aber nicht garantiert und sollten unabhängig verifiziert werden. Wir übernehmen keinerlei Gewähr für die Richtigkeit der Angaben.
Der Courtageanteil des Käufers beträgt 3,57% des tatsächlichen Kaufpreises inklusive der gesetzlichen Mehrwertsteuer.
Der Courtageanteil ist im Kaufpreis nicht enthalten und ist vom Käufer an uns zu zahlen. Er ist fällig und zahlbar bei Notariat.
Grundriss
Erdgeschoss
>
>
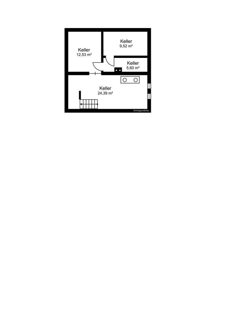
Keller
>
>
Adresse
77948 Friesenheim
Interessante Orte
Preis- und Lageinformationen
Preistrend für Bestandsimmobilien in Friesenheim