Herzlich willkommen auf diesem beeindruckenden Landgut, welches um 1700 erbaut wurde und seit einer umfassenden Kernsanierung Ende der 1970er Jahre seinen historischen Charme mit modernem Komfort vereint. Auf dem weitläufigen Grundstück befindet sich ein Haupthaus mit 11 Zimmern und vier Bädern auf einer Wohnfläche von ca. 757 m² sowie ein separates Einfamilienhaus mit einer Wohnfläche von ca. 198 m². Im Erdgeschoss des Haupthauses erwartet Sie ein großzügiger Wohn- und Essbereich mit einladendem Kamin und offener Balkenlage sowie der direkte Zugang in den ca. 88 m² großen Wintergarten mit Blick in den parkähnlichen Garten. Die hochwertige Küche mit angrenzendem Hauswirtschaftsraum lässt mit ihren modernen Geräten keine Wünsche offen. Ein weiteres großzügiges Zimmer mit einer stilvollen Empore, bietet einen herrlichen Blick auf den gepflasterten Wendeplatz zwischen den Wohnhäusern und ergänzt wird das Erdgeschoss durch einen Wellnessbereich mit Sauna und einem Fitnessraum. Der ehemalige Pferdestall wurde zu einer beheizten Garage umgebaut und bietet heute Platz für bis zu 11 Fahrzeuge. Abgehend vom Eingangsbereich schließt sich eine nicht abgeschlossene Wohneinheit mit einer Pantryküche und einem Duschbad an, welche Besuchern oder Hauspersonal einen komfortablen eigenen Bereich bietet. Im Obergeschoss angekommen, erwarten Sie ein geräumiges Schlafzimmer, zwei Bäder (davon eines en Suite mit Jacuzzi), ein Kinoraum sowie drei weitere Räume zur individuellen Nutzung. Zusätzliche Ausbaufläche bietet der ehemalige Heuboden und die Werkstatt. Das Anwesen besticht insgesamt durch seine exklusive Ausstattung und den Erhalt klassischer Stilelemente eines historischen Landsitzes. Das zweite Wohnhaus wurde 2006 modernisiert und bietet auf ca. 198 m² Wohnfläche eine Küche, zwei Bäder, vier Zimmer und eine Stegterrasse am Teich. Neben der Vermietung kann dieses Haus auch ein Rückzugsort für Ihre Gäste oder private Events sein. Nicht weniger beeindruckend sind die rundherum eingezäunten Außenanlagen mit einer natursteingepflasterten Auffahrt samt Wendeplatz, einem idyllischen Garten mit altem Baumbestand, mehreren Terrassen und eigenem Teich. Die Großzügigkeit des gesamten Anwesens eröffnet vielfältige Nutzungsmöglichkeiten. Sei es als großzügiges Einfamilienhaus, eine Kombination aus Wohnen und Arbeiten oder eine Nutzung als Mehrgenerationen- haus. Vereinbaren Sie gern einen Termin, um dieses Angebot persönlich kennenzulernen. Wir freuen uns auf Sie!
Reetgedecktes Landgut mit zwei Wohneinheiten und XXL Garage
25370 Seester
Die vollständige Adresse der Immobilie erhalten Sie vom Anbieter.
Auf Karte anzeigen
Die vollständige Adresse der Immobilie erhalten Sie vom Anbieter.
Finanzierungszertifikat
In nur zwei Minuten zu Ihrem persönlichen Finanzierungszertifkat.
Infos
| Haustyp | Einfamilienhaus |
|---|---|
| Wohnfläche ca. | 956 m2 |
| Nutzfläche | 602 m2 |
| Grundstücksfläche | 6.094 m2 |
| Zimmer | 15 |
| Badezimmer | 6 |
| Anzahl Garage/Stellplatz | 16 |
Kosten
| Kaufpreis |
1.290.000 € |
|---|---|
| Provision |
3,57 % inkl. gesetzl. MwSt. |
Finanzierungsrechner:
Kaufpreis:
600.000 €
Eigenkapital:
600.000 €
Monatliche Rate
0 €
Effektiver Jahreszins
0 %
Sollzinsbindung
10 Jahre
Bausubstanz & Energieausweis
| Baujahr | 1700 |
|---|---|
| Objektzustand | Neuwertig |
| Heizungsart | Gas-Heizung |
| Wesentliche Energieträger | Gas |
| Energieausweis | liegt vor |
| Energieausweistyp | Bedarfsausweis |
| Energieverbrauchskennwert | 198,1 kWh/(m²*a) |
| Energieeffizienzklasse | F |
198,1
kWh/(m²*a)
Energieeffizienzklasse F
- A+
- A
- B
- C
- D
- E
- F
- G
- H
- 0
- 25
- 50
- 75
- 100
- 125
- 150
- 175
- 200
- 225
- >250
Beschreibung des Objekts
Lage
Seester ist eine idyllische Gemeinde in Schleswig-Holstein, etwa 7 km nordwestlich von Elmshorn und rund 35 km von Hamburg entfernt. Die ländliche Umgebung, geprägt von weiten Wiesen, Feldern und der Nähe zur Elbe, lädt zu Spaziergängen, Radtouren und Wassersport ein. Für den täglichen Bedarf sind Supermärkte, Bäckereien und Drogerien in den benachbarten Gemeinden Elmshorn und Uetersen (ca. 10 Autominuten) gut erreichbar. Auch Ärzte, Apotheken und ein breites Angebot an weiteren Einkaufsmöglichkeiten und Freizeitaktivitäten sind hier zu finden. Seester überzeugt durch seine familienfreundliche Infrastruktur. Ein Kindergarten befindet sich direkt im Ort, während Grund- und weiterführende Schulen in Elmshorn und Uetersen mit dem Auto oder öffentlichen Verkehrsmitteln schnell erreichbar sind. Für Familien stehen zudem Spielplätze und Sportvereine zur Verfügung, die vielfältige Freizeitmöglichkeiten für Kinder und Jugendliche bieten. Die Anbindung an den öffentlichen Nahverkehr erfolgt über Buslinien nach Elmshorn, wo ein direkter HVV-Anschluss nach Hamburg besteht (Zugfahrt ca. 30 Minuten). Mit dem Auto erreicht man Hamburg in etwa 40 Minuten. Weitere Städte wie Pinneberg (ca. 20 Min.) und Itzehoe (ca. 25 Min.) sind ebenfalls gut angebunden.
Sonstige Angaben
Der Makler-Vertrag mit uns und/oder unserem Beauftragten kommt durch schriftliche Vereinbarung oder durch die Inanspruchnahme unserer Maklertätigkeit auf der Basis des Objekt-Exposés und seiner Bedingungen zustande. Die Käufercourtage in Höhe von 3,57 % auf den Kaufpreis einschließlich gesetzlicher Umsatzsteuer ist bei notariellem Vertragsabschluss verdient und fällig. Die Höhe der Bruttocourtage unterliegt einer Anpassung bei Steuersatzänderung. Die EuV Wohnen GmbH (Lizenznehmer der Engel & Völkers Residential GmbH) und ggf. deren Beauftragte erhalten einen unmittelbaren Zahlungsanspruch gegenüber dem Käufer (Vertrag zugunsten Dritter, § 328 BGB). Grunderwerbssteuer, Notar- und Gerichtskosten trägt der Käufer.
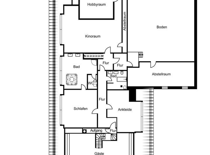
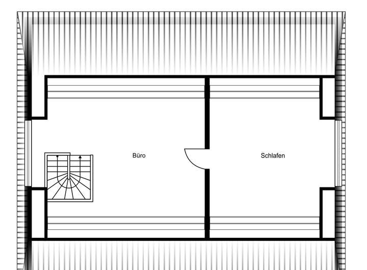
Grundriss
Erdgeschoss Haupthaus
>
>
Obergeschoss Haupthaus
>
>
Dachgeschoss Haupthaus
>
>
Erdgeschoss Nebengebäude
>
>
Dachgeschoss Nebengebäude
>
>
Adresse
25370 Seester
Interessante Orte
Preis- und Lageinformationen
Preistrend für Bestandsimmobilien in Seester