Dieses interessante Mehrfamilienhaus von ca. 1906 verbindet historischen Charme mit klarem Investitionspotenzial. In einer belebten Lage mit guter Infrastruktur bietet es sieben Wohneinheiten sowie eine Gewerbeeinheit. Eine der Wohnungen steht derzeit leer und eröffnet Potenzial für eine erste Sanierungsmaßnahme.
Die monatlichen Mieteinnahmen belaufen sich aktuell auf ca. 48.039,96 € und die Wohnfläche umfasst ca. 444 m². Das Haus ist vollunterkellert und verfügt über eine Nutzfläche von ca. 145 m², das Grundstück misst ca. 343 m².
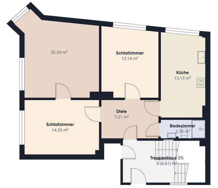
Die Wohnungen verteilen sich auf eine Einzimmerwohnung, vier Drei-Zimmer-Wohnungen und zwei Vier-Zimmer-Wohnungen. Ein guter Schnitt der einzelnen Wohneinheiten sowie die geräumigen Zimmer sprechen viele Mietinteressenten an und erleichtern die Vermietung.
Es sind praktische Einbauküchen inklusive Elektrogeräte in den Wohnungen vorhanden. Ein Duschbad im zweiten Obergeschoss wurde bereits saniert, während alle weiteren Badezimmer sanierungsbedürftig sind. Teilweise sind Dusche und Toilette voneinander getrennt – die separate Toilette kann somit als Gäste-WC genutzt werden.
Der historische Charakter kommt durch originale Holztüren und Zargen aus dem Baujahr ca. 1906 zum Ausdruck. Die Kunststofffenster stammen von ca. 1980, die Etagenheizungen von ca. 2000.
Eine der Heizthermen wurde vor etwa fünf Jahren erneuert und Warmwasser wird teilweise über Durchlauferhitzer bereitgestellt. Die Elektroleitungen sind dreiadrig mit FI-Schutzschalter, jedoch sind auch zweiadrige Leitungen vorhanden. Robuste Kupferleitungen sind verbaut, das Flachdach wurde vor ca. acht Jahren überarbeitet.
Helle, großzügige Räume mit durchdachten Grundrissen bieten vielfältige Modernisierungsmöglichkeiten, zeitgemäße Wohnkonzepte oder flexible Teilumbauten. Private Kellerräume gehören jeweils zur Wohnung und das Gewerbe verfügt ebenfalls über einen Teil des Kellers.
Die belebte Lage mit guter Infrastruktur und hervorragender ÖPNV-Anbindung ist ein weiterer Vorteil für die Vermietung. Durch behutsame Sanierung, zeitgemäße Modernisierung und eine abgestimmte Mietstruktur lässt sich zukünftig eine hohe Vermietungsquote realisieren und der Wert nachhaltig steigern.
Diese Immobilie richtet sich an Investoren, die historischen Charme mit modernen Vermietungskonzepten verbinden möchten.
Für Besichtigungstermine stehen wir Ihnen gerne zur Verfügung.
Wir freuen uns auf Ihre Anfrage.
Gröpelingen | Geräumiges Mehrparteienhaus mit 7 Wohneinheiten und Gewerbe
28237 Bremen
Die vollständige Adresse der Immobilie erhalten Sie vom Anbieter.
Auf Karte anzeigen
Die vollständige Adresse der Immobilie erhalten Sie vom Anbieter.
Finanzierungszertifikat
In nur zwei Minuten zu Ihrem persönlichen Finanzierungszertifkat.
Infos
| Wohnfläche ca. | 444 m2 |
|---|---|
| Nutzfläche | 145 m2 |
| Grundstücksfläche | 343 m2 |
| Bezugsfrei ab | Nach Vereinbarung |
| Zimmer | 21 |
| Schlafzimmer | 15 |
| Badezimmer | 7 |
Kosten
| Kaufpreis |
499.000 € |
|---|---|
| Provision |
3,57 % (inkl. 19,00 % MwSt.) vom Käufer |
Finanzierungsrechner:
Kaufpreis:
600.000 €
Eigenkapital:
600.000 €
Monatliche Rate
0 €
Effektiver Jahreszins
0 %
Sollzinsbindung
10 Jahre
Bausubstanz & Energieausweis
| Baujahr | 1906 |
|---|---|
| Objektzustand | Renovierungsbedürftig |
| Heizungsart | Etagenheizung |
| Wesentliche Energieträger | Gas |
| Energieausweis | liegt vor |
| Energieausweistyp | Bedarfsausweis |
| Energieverbrauchskennwert | 174,9 kWh/(m²*a) |
| Energieeffizienzklasse | G |
174,9
kWh/(m²*a)
Energieeffizienzklasse G
- A+
- A
- B
- C
- D
- E
- F
- G
- H
- 0
- 25
- 50
- 75
- 100
- 125
- 150
- 175
- 200
- 225
- >250
Beschreibung des Objekts
Ausstattung
- Mehrparteienhaus mit sieben Wohneinheiten & einem Gewerbe
- Baujahr: ca. 1906
- Wohnfläche: ca. 444 m²
- Nutzfläche: ca. 145 m²
- Grundstücksgröße: ca. 343 m²
- Jährliche Mieteinnahmen: ca. 48.039,96 €
- Sanierungsbedürftiger Gesamtzustand des Mehrparteienhauses
- Helle und geräumige Zimmer
- Praktische Einbauküchen inklusive Elektrogeräte
- Separate Toiletten
- Duschbäder
- Originale Holztüren- und Zargen aus dem Baujahr
- Kunststofffenster von ca. 1989, teilweise dreifach verglast
- Etagenheizungen von ca. 2000, eine wurde vor ca. fünf Jahren erneuert
- Warmwasser teilweise über Durchlauferhitzer
- Dreiadrige Elektroleitungen mit FI-Schutzschalter und zweiadrige Elektrik
- Robuste Kupferleitungen vorhanden
- Flachdach wurde vor ca. acht Jahren überarbeitet
- Privater Kellerraum zur Wohnung dazugehörig
- Gemeinschaftlicher Fahrradkeller und Trockenraum
- Ein charmanter Balkon
- Belebte Lage mit guter Infrastruktur und ÖPNV Anbindung
Lage
Der im Westen Bremens gelegene Stadtteil präsentiert sich als lebendiges Wohnumfeld mit spannender Geschichte, kultureller Vielfalt und solider Infrastruktur. Die Mischung aus traditionellen Wohnstrukturen und moderner Entwicklung schafft ein vielfältiges Stadtbild mit hoher Lebensqualität.
Als eines der größten Quartiere Bremens bietet der Stadtteil eine urbane Mischung aus gewachsenen Nachbarschaften, modernen Neubauten und grünen Rückzugsorten. Die Nähe zur Innenstadt, zum Industriehafen und zur Überseestadt prägt die Lage ebenso wie das vielfältige Miteinander, das dem Ort seinen weltoffenen Charakter verleiht. Hier treffen historische Häuser auf innovative Projekte, die das Stadtbild sowohl bewahren als auch weiterentwickeln. Bewohner profitieren von einer guten Mischung aus ruhigen Wohnlagen sowie urbanen Angeboten, die kurzen Wege zu Arbeitsplätzen, Bildungseinrichtungen und kulturellen Angeboten ermöglichen.
Einkaufsmöglichkeiten, Supermärkte, Apotheken, kleinere Fachgeschäfte und Wochenmärkte befinden sich in fußläufiger Entfernung. Zusätzlich bietet das Einkaufszentrum rund um den Lindenhof ein breites Angebot an Waren und Dienstleistungen. Cafés und Restaurants mit internationaler Küche ergänzen die Nahversorgung und laden zu Begegnungen im Stadtviertel ein. Die lokale Gastronomie spiegelt dabei die Vielfalt der Bewohner wider und trägt zur lebendigen Quartierkultur bei.
Familien profitieren von einem gut ausgebauten Bildungs- und Betreuungsangebot. Mehrere Kindertagesstätten, Schulen sowie Freizeit- und Sporteinrichtungen bieten eine stabile Infrastruktur. Jugendzentren und soziale Initiativen fördern Integration, Gemeinschaft und Chancengerechtigkeit. Sozialbündnisse und Nachbarschaftsprojekte stärken das Zusammengehörigkeitsgefühl und unterstützen gezielt junge Familien, Migrantinnen und Migranten sowie ältere Anwohner.
Der Stadtteil zeichnet sich durch kulturelle Offenheit, Mehrsprachigkeit und ein aktives nachbarschaftliches Miteinander aus. Vereine, Kulturinitiativen und soziale Projekte leisten einen wertvollen Beitrag zum Gemeinwesen.
Für Erholung und Freizeit stehen zahlreiche Grünflächen und Naherholungsgebiete zur Verfügung. Der Oslebshauser Park, der Waller Park und der Waller Feldmarksee bieten Raum für Sport, Spaziergänge und entspannte Stunden im Grünen – direkt vor der Haustür. Stadtteilgärten, Spielplätze und urbane Oasen laden Kinder wie Erwachsene gleichermaßen zum Verweilen ein.
Die Verkehrsanbindung ist hervorragend: Mehrere Straßenbahn- und Buslinien verbinden den Stadtteil schnell mit der Innenstadt, dem Hauptbahnhof und angrenzenden Vierteln. Auch die Anbindung an die A27 ermöglicht eine zügige Erreichbarkeit mit dem Auto. Radwege und fahrradfreundliche Infrastruktur fördern alternative Mobilitätsformen und tragen zu einer hohen Wohnattraktivität bei.
Insgesamt bietet Gröpelingen eine gute Mischung aus urbanem Umfeld mit Entwicklungspotenzial und praktischer Infrastruktur.
Grundriss
S&P | Grundriss 1. Obergeschos
>
>
S&P | Grundriss Dachgeschoss l
>
>
S&P | Grundriss 1. Obergeschos
>
>
S&P | Grundriss 2. Obergeschos
>
>
Adresse
28237 Bremen
Interessante Orte
Preis- und Lageinformationen
Preistrend für Bestandsimmobilien in Lindenhof