*** Stadtnahe Rarität: Grundstück mit Baugenehmigung für 3 Reihenhäuser in Schwelms begehrtester Lage ***
Dieses exklusive Baugrundstück in Schwelm bietet Ihnen eine einzigartige Möglichkeit, in einer der begehrtesten Wohnlagen der Stadt ein hochwertiges Wohnprojekt zu realisieren. Mit einer Fläche von ca. 1.051 m² ist das Grundstück groß genug für die geplante Bebauung, jedoch auch für zukünftige Anpassungen und Optimierungen. Die Innenstadt mit ihrer Fußgängerzone ist nur einen kurzen Spaziergang entfernt, ebenso wie der idyllische Sophienpark – ideal für Spaziergänge und Freizeitaktivitäten. Die Kombination aus zentraler Lage und ruhiger Wohnatmosphäre macht dieses Grundstück zu einer echten Rarität.
Baugenehmigung und Potenzial:
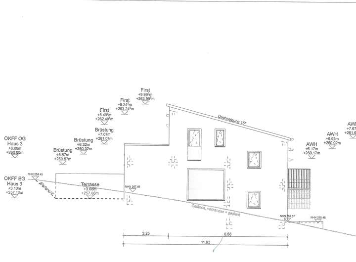
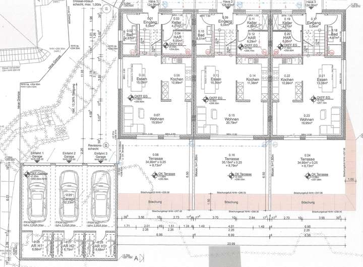
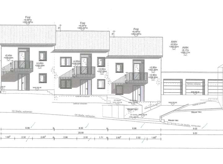
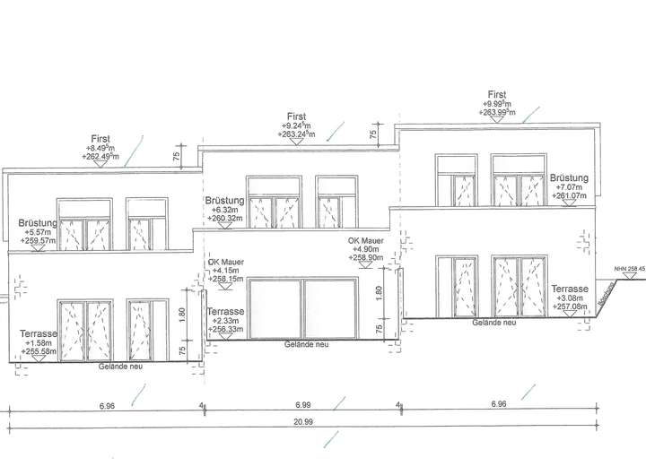
Das Grundstück wird mit einer bereits erteilten Baugenehmigung für den Bau von drei modernen Reihenhäusern inklusive Garagen verkauft. Die Planung sieht eine attraktive und effiziente Nutzung des Grundstücks vor, wobei jedes der Reihenhäuser großzügige Wohnflächen und individuelle Gestaltungsmöglichkeiten bietet. Mit der vorliegenden Genehmigung können Sie sofort mit dem Bau beginnen, ohne sich um langwierige behördliche Verfahren kümmern zu müssen.
Zielgruppen:
Dieses Grundstück eignet sich für verschiedene Interessentengruppen:
+++ Bauträger und Investoren: Profitieren Sie von der Baugenehmigung und der begehrten Lage, die eine hohe Nachfrage nach modernen und zentral gelegenen Wohnhäusern garantiert.
+++ Private Bauherren: Wenn Sie ein eigenes Projekt realisieren möchten, ist dies Ihre Gelegenheit, in einer der besten Lagen Schwelms Ihr Traumhaus oder eine wertbeständige Kapitalanlage zu schaffen.
+++ Architekten und Planer: Mit der Baugenehmigung für drei Reihenhäuser bietet das Grundstück Raum für kreative Ideen und eine moderne Gestaltung, die sowohl in die städtische Struktur als auch in die Bedürfnisse zukünftiger Bewohner passt.
Warum dieses Grundstück?
• Top Lage: Mit der Nähe zur Fußgängerzone und zum Sophienpark ist diese Adresse besonders attraktiv für junge Familien, Berufspendler und Ruhesuchende.
• Exklusivität: Solche Grundstücke in dieser Lage kommen nur selten auf den Markt.
• Zukunftssicherheit: Durch die Baugenehmigung können Sie das Projekt sofort umsetzen und von einer hohen Nachfrage profitieren.
Nutzen Sie diese außergewöhnliche Gelegenheit, ein einzigartiges Projekt in einer der gefragtesten Lagen von Schwelm zu realisieren. Kontaktieren Sie uns noch heute für weitere Informationen.
Seltene Gelegenheit: Baugrundstück in Schwelm – Baugenehmigung für 3 Reihenhäuser mit Garagen
58332 Schwelm
Die vollständige Adresse der Immobilie erhalten Sie vom Anbieter.
Auf Karte anzeigen
Die vollständige Adresse der Immobilie erhalten Sie vom Anbieter.
Finanzierungszertifikat
In nur zwei Minuten zu Ihrem persönlichen Finanzierungszertifkat.
Infos
| Vermarktungsart | Kaufen |
|---|---|
| Grundstücksfläche | 1.047 m2 |
Kosten
| Miete pro Jahr |
398.000 € |
|---|---|
| Provision |
3,57 % inkl. ges. MwSt. |
Finanzierungsrechner:
Kaufpreis:
600.000 €
Eigenkapital:
600.000 €
Monatliche Rate
0 €
Effektiver Jahreszins
0 %
Sollzinsbindung
10 Jahre
Beschreibung des Objekts
Sonstige Angaben
VERBRAUCHERINFO
1. Maklerleistung ist der Nachweis der Gelegenheit zum Abschluss eines Vertrages bzw. Vermittlung eines Vertrages über eine Immobilie gegen die Courtagezahlungspflicht des Kunden
2. Unternehmer,Anschrift,Beschwerdeadressat
LBSi NordWest, Himmelreichallee 40, 48149 Münster, Tel:0251/973233-997, eMail:info@lbsi-nw.de
GF:Martin Englert, Volker Goldbeck
3. Es besteht ein Widerrufsrecht
4. Weitere Infos: verbraucherinfo.lbsi-nordwest.de