Entdecken Sie das perfekte Einfamilienhaus, das ganz nach Ihren Wünschen und Vorstellungen projektiert wird. Mit einer großzügigen Wohnfläche von 123,32 m² und 4 Zimmern auf einem großzügigen Grundstück von 970 m² in einem ruhigen Wohngebiet in Wetter (Hessen) bietet dieses Haus alles, was Sie für ein komfortables und modernes Leben benötigen. Genießen Sie die Freiheit, Ihre persönlichen Ideen in die Gestaltung Ihres neuen Zuhauses einzubringen und sich auf eine harmonische und individuelle Umsetzung Ihrer Träume zu freuen.
Das durchdachte Baukonzept erstreckt sich über zwei Etagen, bietet drei Schlafzimmer, ein Badezimmer und ein zusätzliches Gäste-WC. Die gehobene Ausstattung mit eleganten Fliesen und warmem Laminat sorgt nicht nur für eine ansprechende Optik, sondern auch für eine angenehme Wohnatmosphäre. Die Wahl der Bodenbeläge ist ideal, da Fliesen pflegeleicht und langlebig sind, während Laminat einladend und wohnlich wirkt. Die umweltfreundliche Wärmepumpe garantiert Ihnen effiziente Beheizung und reduziert Ihre Energiekosten nachhaltig. Zudem erfüllt das Haus den KFW55 Standard, was Ihnen langfristige Einsparungen und ein gutes Gewissen in Bezug auf die Umwelt bietet.
Ihr individuelles, technikfertiges Einfamilienhaus in Wetter: Träumen, Planen, Wohnen!
35083 Wetter (Hessen)
Die vollständige Adresse der Immobilie erhalten Sie vom Anbieter.
Auf Karte anzeigen
Die vollständige Adresse der Immobilie erhalten Sie vom Anbieter.
Finanzierungszertifikat
In nur zwei Minuten zu Ihrem persönlichen Finanzierungszertifkat.
Infos
| Haustyp | Einfamilienhaus |
|---|---|
| Etagenzahl | 2 |
| Wohnfläche ca. | 123 m2 |
| Grundstücksfläche | 970 m2 |
| Zimmer | 4 |
| Schlafzimmer | 3 |
| Badezimmer | 1 |
Kosten
| Kaufpreis |
430.000 € |
|---|
Finanzierungsrechner:
Kaufpreis:
600.000 €
Eigenkapital:
600.000 €
Monatliche Rate
0 €
Effektiver Jahreszins
0 %
Sollzinsbindung
10 Jahre
Bausubstanz & Energieausweis
| Baujahr | unbekannt |
|---|---|
| Bauphase | Haus in Planung (projektiert) |
| Qualität der Austattung | Gehoben |
| Heizungsart | Wärmepumpe |
Beschreibung des Objekts
Ausstattung
- 4 Zimmer, davon 3 Schlafzimmer
- 1 Badezimmer und 1 Gäste-WC
- Hochwertige Bodenbeläge: Fliesen und Laminat
- Wärmepumpe als effiziente Befeuerungsart
- KFW55 Standard für hohe Energieeffizienz
- Hochwertige und gehobene Ausstattung
Lage
Das Einfamilienhaus befindet sich in einem ruhigen Wohngebiet in Wetter (Hessen), das Ihnen eine angenehme Nachbarschaft und eine hervorragende Lebensqualität bietet. Die Infrastruktur ist optimal: Schulen, Einkaufsmöglichkeiten und Ärzte sind in unmittelbarer Nähe. Zudem laden zahlreiche Freizeitmöglichkeiten in der Umgebung zu Aktivitäten im Freien ein.
Sonstige Angaben
allkauf heißt: Maximale Sicherheit, kurze Lieferzeiten, garantierte Fertigstellung.
Zu allen Häusern gehört:
- Energieeffizienzwand
- Echtholztreppe
- Luft-Wasser-Wärmepumpe
- Fußbodenheizung
- Be- und Entlüftungsanlage
- 3-fach verglaste Fenster inklusive Rollläden mit Aluminiumlamellen
- Lichte Raumhöhe 2,75 m
- inkl. erhöhten Fenstern und Türen
- TOXPROOF Gütesiegel - schadstoffgeprüfter Materialien
- Just-in-Time-Lieferungen
- Bemustern im eigenen Bemusterungszentrum mit Markenprodukten
Ob Einfamilienhaus, Doppelhaus oder Bungalow - bei allkauf finden Sie Ihr Traumhaus!
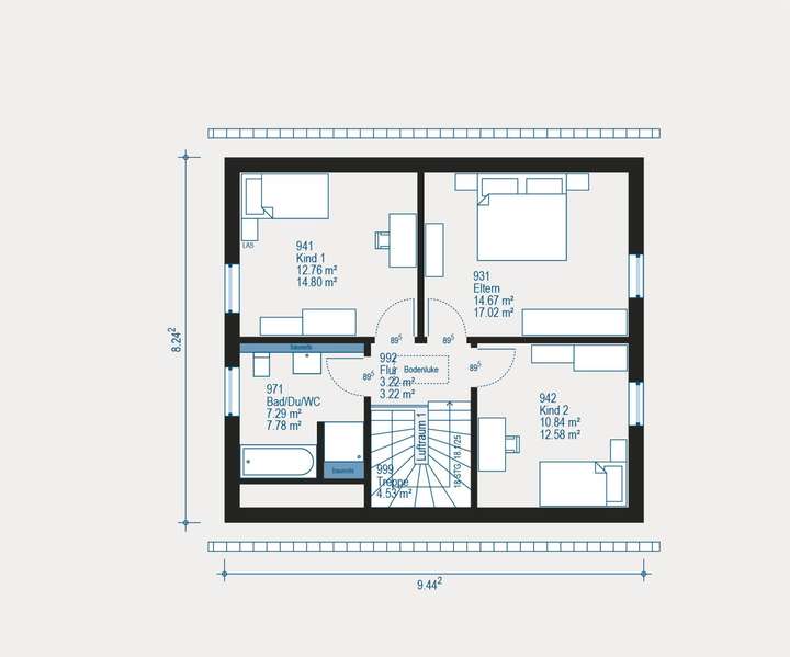
Grundriss
Grundriss
>
>
Grundriss
>
>
Adresse
35083 Wetter (Hessen)
Interessante Orte
Preis- und Lageinformationen
Preistrend für Bestandsimmobilien in Wetter (Hessen)