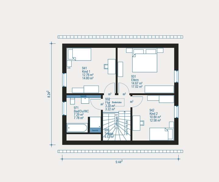
Willkommen in Ihrem neuen Einfamilienhaus in Romrod, das individuell nach Ihren Wünschen und Vorstellungen projektiert wird. Dieses wunderschöne Haus bietet Ihnen auf 123,32 m² Wohnfläche und zwei Etagen genügend Raum für Ihre Familie. Mit 4 Zimmern, darunter drei Schlafzimmer, einem modernen Badezimmer und einem zusätzlichen Gäste-WC, wird der Platz optimal genutzt. Das durchdachte Projekt- und Baukonzept garantiert Ihnen nicht nur funktionale Räume, sondern auch ein Zuhause, das ganz auf Ihre Bedürfnisse zugeschnitten ist.
Ihr maßgeschneidertes, technikfertiges Einfamilienhaus in Romrod - der Traum vom Eigenheim wird Wirk
36329 Romrod
Die vollständige Adresse der Immobilie erhalten Sie vom Anbieter.
Auf Karte anzeigen
Die vollständige Adresse der Immobilie erhalten Sie vom Anbieter.
Finanzierungszertifikat
In nur zwei Minuten zu Ihrem persönlichen Finanzierungszertifkat.
Infos
| Haustyp | Einfamilienhaus |
|---|---|
| Etagenzahl | 2 |
| Wohnfläche ca. | 123 m2 |
| Grundstücksfläche | 690 m2 |
| Zimmer | 4 |
| Schlafzimmer | 3 |
| Badezimmer | 1 |
Kosten
| Kaufpreis |
370.000 € |
|---|
Finanzierungsrechner:
Kaufpreis:
600.000 €
Eigenkapital:
600.000 €
Monatliche Rate
0 €
Effektiver Jahreszins
0 %
Sollzinsbindung
10 Jahre
Bausubstanz & Energieausweis
| Baujahr | unbekannt |
|---|---|
| Bauphase | Haus in Planung (projektiert) |
| Qualität der Austattung | Gehoben |
| Heizungsart | Wärmepumpe |
Beschreibung des Objekts
Ausstattung
Die gehobene Ausstattung sorgt für höchsten Komfort und eine angenehme Wohnatmosphäre. Fliesen und Laminat als Bodenbeläge bieten Ihnen nicht nur eine ansprechende Optik, sondern sind auch pflegeleicht und langlebig. Die Wärmepumpe sorgt für eine effiziente und umweltfreundliche Beheizung des Hauses. Diese Art der Befeuerung ist nicht nur energieeffizient, sondern trägt auch zur Reduzierung Ihrer Heizkosten bei. Mit dem KFW55 Standard erfüllen Sie zudem hohe Energiesparanforderungen und leisten einen Beitrag zum Umweltschutz.
Lage
Das Einfamilienhaus befindet sich in einem ruhigen Wohngebiet in Romrod, das Ihnen eine optimale Infrastruktur bietet. Einkaufsmöglichkeiten, Schulen und Freizeitangebote sind bequem in wenigen Minuten erreichbar, sodass Sie und Ihre Familie die Vorzüge der ländlichen Umgebung genießen können.
Sonstige Angaben
allkauf bietet Ihnen maximale Sicherheit, kurze Lieferzeiten und garantierte Fertigstellung. Mit unseren Dienstleistungspaketen haben Sie die Möglichkeit, je nach Ihren Wünschen und Fähigkeiten selbst Hand anzulegen oder die Profis von allkauf einzuschalten. Zu allen Häusern gehört: - Energieeffizienzwand - Echtholztreppe - Luft-Wasser-Wärmepumpe - Fußbodenheizung - Be- und Entlüftungsanlage - 3-fach verglaste Fenster inklusive Rollläden mit Aluminiumlamellen - Lichte Raumhöhe 2,75 m + inkl. erhöhten Fenstern und Türen - TOXPROOF Gütesiegel - schadstoffgeprüfter Materialien - Just-in-Time-Lieferungen - Bemustern im eigenen Bemusterungszentrum mit Markenprodukten.
Grundriss
Grundriss
>
>
Grundriss
>
>
Adresse
36329 Romrod
Interessante Orte
Preis- und Lageinformationen
Preistrend für Bestandsimmobilien in Romrod