Dieses außergewöhnliche Einfamilienhaus in beliebter Wohnlage von Ibbenbüren überzeugt durch seine gelungene Kombination aus klassischer Bausubstanz und modernen Ausstattungsmerkmalen. Das ursprünglich 1975 errichtete Gebäude wurde fortlaufend modernisiert und erweitert und bietet heute eine Wohnfläche von ca. 234 m² auf einem ca. 700 m² großen Grundstück. 1996 wurde das Dachgeschoss ausgebaut und bietet zusätzlichen Wohnraum mit besonderem Flair. Ein besonderes Highlight ist der turmähnliche Anbau aus dem Jahr 2012, der dem Gebäude nicht nur architektonischen Charakter, sondern auch zusätzlichen Raum verleiht.
Ebenfalls im Jahr 2012 erfolgten energetisch relevante Modernisierungen: Das Haus wurde mit einem Wärmedämmverbundsystem (WDVS) versehen, und ca. 81 % der Fenster wurden durch moderne 3-fach-verglaste Elemente ersetzt – ein großer Pluspunkt in puncto Energieeffizienz und Wohnkomfort. Alle anderen Fenster sind 2-fach verglast aus dem Jahr 1996.
Im Erdgeschoss gelangen Sie von der Diele direkt in dem Turmbereich, welcher sich auf drei Ebenen streckt. Darüber hinaus haben Sie die Möglichkeit, direkt in den weiteren großen Teil des Hauses zu gelangen, in dem Sie ein großes Wohnzimmer, ein modernisiertes Bad, sowie eine Küche und ein Schlafzimmer vorfinden. Durch den Treppentrakt gelangen Sie in den oberen Teil des Gebäudes, welches zum einen ein Schlafzimmer im Turm, und zum anderen weitere Wohn- und Schlafmöglichkeiten, sowie auch eine Küche und ein Badezimmer bietet. Der tolle Balkon rundet das Geschoss ab.
Erst im Jahr 2024 wurde eine neue, effiziente Gasheizung installiert, die den modernen Energiestandard weiter unterstreicht.
Der Balkon bietet nicht nur einen schönen Blick ins Grüne, sondern auch über eine Außentreppe direkten Zugang in den gepflegten Garten. Ein separater Zugang zum großzügigen Kellerbereich ist ebenfalls vorhanden und ermöglicht vielfältige Nutzungsmöglichkeiten – sei es als Werkstatt, Hobbyraum oder Lagerfläche.
Sprechen Sie uns an!
Außergewöhnliches Einfamilienhaus in naturnaher Lage
49479 Ibbenbüren
Die vollständige Adresse der Immobilie erhalten Sie vom Anbieter.
Auf Karte anzeigen
Die vollständige Adresse der Immobilie erhalten Sie vom Anbieter.
Finanzierungszertifikat
In nur zwei Minuten zu Ihrem persönlichen Finanzierungszertifkat.
Infos
| Haustyp | Einfamilienhaus |
|---|---|
| Wohnfläche ca. | 234 m2 |
| Nutzfläche | 125 m2 |
| Grundstücksfläche | 700 m2 |
| Bezugsfrei ab | nach Absprache |
| Zimmer | 8 |
| Schlafzimmer | 4 |
| Badezimmer | 2 |
| Garage/Stellplatz | Außenstellplatz |
| Anzahl Garage/Stellplatz | 3 |
Kosten
| Kaufpreis |
435.000 € |
|---|---|
| Provision |
3,57% inkl. MwSt. |
Finanzierungsrechner:
Kaufpreis:
600.000 €
Eigenkapital:
600.000 €
Monatliche Rate
0 €
Effektiver Jahreszins
0 %
Sollzinsbindung
10 Jahre
Bausubstanz & Energieausweis
| Baujahr | 1975 |
|---|---|
| Objektzustand | Gepflegt |
| Heizungsart | Zentralheizung |
| Wesentliche Energieträger | Gas |
| Energieausweis | liegt vor |
| Energieausweistyp | Bedarfsausweis |
| Energieverbrauchskennwert | 113,1 kWh/(m²*a) |
| Energieeffizienzklasse | D |
113,1
kWh/(m²*a)
Energieeffizienzklasse D
- A+
- A
- B
- C
- D
- E
- F
- G
- H
- 0
- 25
- 50
- 75
- 100
- 125
- 150
- 175
- 200
- 225
- >250
Beschreibung des Objekts
Ausstattung
Historie des Hauses:
- Errichtung des Hauses im Jahre 1975
- Ausbau des Obergeschosses im Jahre 1996
- Anbau des turmähnlichen Gebäudeteil im Jahre 2012
- Dämmung des Hauses mit einem Wärmedämmverbundsystem im Jahre 2012
- Erneuerung der Fenster (zu 81%) als 3-fach Verglasung im Jahr 2012. Alle anderen Fenster sind 2-fach verglast aus dem Jahr 1996
- Renovierung des Erdgeschosses im Jahre 2022
- Erneuerung der Gas-Therme im Jahr 2024
Hervorzuhebende Ausstattungen:
- großzügiger Garten in Nord-West Ausrichtung
- Balkon mit Zugang zum Garten über die Außentreppe
- Zugang zum Keller über die Außentreppe
- Terrasse in Nord-West Ausrichtung
- drei Stellplätze + Carport
- Kamin
Aufteilung der Flächen:
- Wohnfläche im Erdgeschoss ca. 125m²
- Wohnfläche im Obergeschoss ca. 109m²
- Nutzfläche in der oberste Ebene im Turm von ca. 22m²
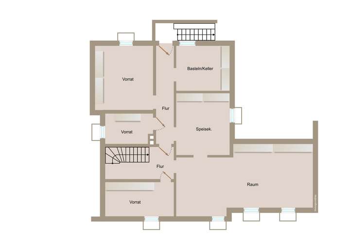
- Nutzfläche im Keller von ca. 103m²
Lage
Die Immobilie befindet sich in einem beliebten und ruhigen Stadtteil von Ibbenbüren, einer idyllischen Lage, die eine perfekte Balance zwischen ländlicher Idylle und urbaner Anbindung bietet. In unmittelbarer Nähe finden sich zahlreiche Grünflächen, die zu Spaziergängen und Freizeitaktivitäten einladen. Der nahegelegene Teutoburger Wald und die zahlreichen Rad- und Wanderwege bieten ideale Möglichkeiten für Outdoor-Enthusiasten.
Trotz der ruhigen Lage profitieren die Bewohner von einer exzellenten Verkehrsanbindung. Der Ibbenbürener Stadtkern ist nur wenige Minuten entfernt. In der Wohngegend dieser Immobilie findet Sie eine breite Auswahl an Einkaufsmöglichkeiten, Bäcker, Schulen, Kindergärten und Ärzten. Zudem erreichen Sie die Autobahn A30 in kürzester Zeit, was eine schnelle Verbindung nach Osnabrück und Münster ermöglicht.
Die Lage zeichnet sich durch eine hohe Lebensqualität und ein harmonisches Umfeld aus, ideal für Familien und Paare, die die Vorzüge des ländlichen Lebens genießen möchten, ohne auf die Annehmlichkeiten der Stadt verzichten zu müssen.
Sonstige Angaben
Dieses Angebot ist freibleibend und basiert auf Informationen, welche die Eigentümer erteilt haben; eine Haftung für die Richtigkeit, Aktualität und Vollständigkeit kann deshalb nicht übernommen werden. Die gezeigten Pläne können von dem aktuellen Bestand abweichen. Irrtum und Zwischenverkauf vorbehalten.
Grundriss
Grundriss Keller
>
>
Grundriss EG
>
>
Grundriss OG
>
>
Adresse
49479 Ibbenbüren
Interessante Orte
Preis- und Lageinformationen
Preistrend für Bestandsimmobilien in Ibbenbüren