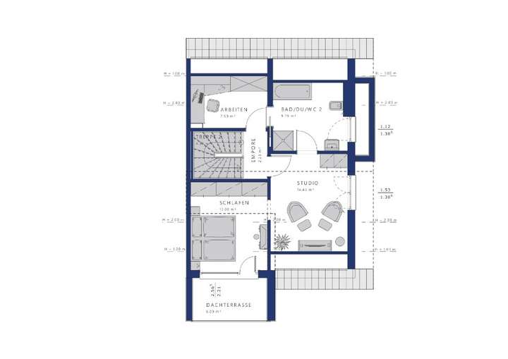
Das CELEBRATION 122 in Kehl ist der Inbegriff von durchdachtem Wohnen auf kleinem Raum. Mit einer großzügigen Wohnfläche von 187 m² und einer cleveren Aufteilung auf zwei Etagen erfüllt dieses Haus Ihre Wohnträume und passt sich ideal an Ihre individuellen Bedürfnisse an. Im Erdgeschoss erwartet Sie ein offener Wohnbereich, der durch große Fenster viel Tageslicht hereinlässt und eine einladende Atmosphäre schafft. Hier können Sie unvergessliche Momente mit Familie und Freunden verbringen. Die obere Etage bietet drei Schlafzimmer, die als Rückzugsorte dienen und Ihnen zudem die nötige Privatsphäre bieten. Mit zwei Badezimmern wird der morgendliche Ansturm auf das Bad zum Kinderspiel. Das optionale dritte Geschoss ermöglicht es Ihnen, noch mehr Raum zu schaffen, sei es für ein Arbeitszimmer oder zusätzliche Schlafflächen. Die unterschiedlichen Dachformen und Architekturdetails verleihen dem CELEBRATION 122 einen individuellen Charakter und machen es zu einem echten Raumwunder.
Die Ausstattung des CELEBRATION 122 bietet Ihnen zahlreiche Komfortdetails, die Ihren Alltag bereichern. Die großzügige Terrasse lädt zu entspannten Stunden im Freien ein, während die gut durchdachte Raumaufteilung für ein harmonisches Wohngefühl sorgt. Lichtdurchflutete Räume schaffen eine freundliche und einladende Atmosphäre, während Abstellräume für Ordnung und Struktur sorgen. Ob für gesellige Abende oder ruhige Rückzugsmomente - dieses Haus passt sich flexibel Ihrem Lebensstil an und wird zum idealen Ort für Familie und Freunde.
Im Angebot ist die Ausbaustufe "Schlüsselfertig" enthalten, was bedeutet, dass Bien-Zenker den kompletten Hausbau für Sie übernimmt. Vom Rohbau bis zur letzten Fliese kümmern wir uns um alle Details und stellen sicher, dass die höchsten Standards in Bezug auf Qualität und Nachhaltigkeit eingehalten werden. Sie können sich zurücklehnen und den Bauprozess entspannt verfolgen, während wir für Sie ein Zuhause schaffen, das nicht nur funktional ist, sondern auch Ihre persönlichen Wünsche widerspiegelt. Durch die Erfüllung aller Anforderungen des staatlichen Qualitätssiegels für Nachhaltigkeit profitieren Sie zudem von attraktiven Förderungen über die KfW - ein weiterer Pluspunkt für Ihr neues Zuhause.
Grundrisse und Abbildungen können Extras zeigen. Flächenangaben nach DIN 277.
Ihr individuelles Traumhaus von Bien-Zenker - Raumwunder für große Wohnwünsche
77694 Kehl
Die vollständige Adresse der Immobilie erhalten Sie vom Anbieter.
Auf Karte anzeigen
Die vollständige Adresse der Immobilie erhalten Sie vom Anbieter.
Finanzierungszertifikat
In nur zwei Minuten zu Ihrem persönlichen Finanzierungszertifkat.
Infos
| Haustyp | Doppelhaushaelfte |
|---|---|
| Etagenzahl | 2 |
| Wohnfläche ca. | 187 m2 |
| Nutzfläche | 187 m2 |
| Grundstücksfläche | 355 m2 |
| Zimmer | 5 |
| Schlafzimmer | 3 |
| Badezimmer | 2 |
| Anzahl Garage/Stellplatz | 1 |
Kosten
| Kaufpreis |
720.000 € |
|---|
Finanzierungsrechner:
Kaufpreis:
600.000 €
Eigenkapital:
600.000 €
Monatliche Rate
0 €
Effektiver Jahreszins
0 %
Sollzinsbindung
10 Jahre
Bausubstanz & Energieausweis
| Baujahr | 2025 |
|---|---|
| Objektzustand | Neuwertig |
| Qualität der Austattung | Normal |
| Energieausweis | liegt vor |
| Energieausweistyp | Bedarfsausweis |
| Energieverbrauchskennwert | 112,0 kWh/(m²*a) |
| Energieeffizienzklasse | A+ |
112,0
kWh/(m²*a)
Energieeffizienzklasse A+
- A+
- A
- B
- C
- D
- E
- F
- G
- H
- 0
- 25
- 50
- 75
- 100
- 125
- 150
- 175
- 200
- 225
- >250
Beschreibung des Objekts
Ausstattung
Der Grundriss des CELEBRATION 122 ist optimal auf die Bedürfnisse moderner Familien abgestimmt. Mit insgesamt fünf Zimmern und einer großzügigen Wohnfläche von 187 m² bietet es ausreichend Platz für jeden Lebensbereich. Die drei Schlafzimmer in der oberen Etage sind ideal für Ihre Familie, während das Erdgeschoss mit einem offenen Wohnbereich und einer klaren Raumaufteilung einladend und funktional gestaltet ist. Das geschickte Layout fördert eine angenehme Wohnatmosphäre und sorgt für eine harmonische Verbindung zwischen den Wohnbereichen.
Besonders hervorzuheben sind die lichtdurchfluteten Räume, die durch große Fensterfronten im Erdgeschoss entstehen. Diese sorgen nicht nur für eine helle und freundliche Atmosphäre, sondern bieten Ihnen auch einen direkten Zugang zur großzügigen Terrasse, die zu entspannten Stunden im Freien einlädt. Abstellräume bieten zusätzlichen Stauraum, sodass Sie Ihre Wohnräume stets ordentlich und aufgeräumt halten können. Die Möglichkeit, ein drittes Geschoss zu integrieren, eröffnet Ihnen weitere Optionen für individuelle Nutzung und Gestaltung.
Die Ausbaustufe "Schlüsselfertig" garantiert Ihnen einen stressfreien Bauablauf. Bien-Zenker kümmert sich um alle Aspekte des Hausbaus, vom Rohbau bis hin zu den letzten Feinheiten im Innenausbau. Sie profitieren nicht nur von einem hohen Maß an Komfort, sondern auch von der Sicherheit, dass alle Arbeiten nach höchsten Qualitätsstandards durchgeführt werden. Mit der Einhaltung des staatlichen Qualitätssiegels für Nachhaltigkeit können Sie darauf vertrauen, dass Ihr neues Zuhause umweltfreundlich und zukunftsorientiert ist. Zudem haben Sie die Möglichkeit, von attraktiven Förderungen über die KfW zu profitieren, was die finanzielle Planung Ihres Bauvorhabens erleichtert.
Lage
Kehl ist nicht nur eine charmante Stadt, sondern auch ein idealer Standort für Ihr neues Zuhause. Die Umgebung bietet zahlreiche Möglichkeiten zur persönlichen Entfaltung und Lebensqualität. In unmittelbarer Nähe finden Sie Schulen, Kindergärten und Bildungseinrichtungen, die eine hervorragende Basis für die Entwicklung Ihrer Kinder schaffen. Auch medizinische Einrichtungen sind gut erreichbar und gewährleisten eine umfassende Gesundheitsversorgung. Einkaufszentren und lokale Märkte bieten Ihnen alles, was Sie für den täglichen Bedarf benötigen, und laden zu entspannten Shopping-Touren ein.
Die Freizeitmöglichkeiten in und um Kehl sind vielfältig. Ob Sie die Natur bei ausgedehnten Spaziergängen entlang des Rheins genießen oder sich sportlich betätigen möchten - hier finden Sie zahlreiche Optionen. Zudem profitieren Sie von einer guten Anbindung an den öffentlichen Nahverkehr, sodass Sie problemlos in die benachbarte Stadt Strasbourg gelangen können. Die Autobahn ist ebenfalls in wenigen Minuten erreichbar und ermöglicht Ihnen schnelle Verbindungen in die umliegenden Städte. Überzeugen Sie sich selbst von der hohen Lebensqualität, die Ihnen Kehl zu bieten hat.
Sonstige Angaben
Die Bien-Zenker GmbH ist ein führender, deutscher Premium-Fertighaushersteller mit der Erfahrung aus über 85.000 gebauten Häusern und fast 115 Jahren Tradition.
Wenn Sie sich ein Bild von Bien-Zenker machen möchten, dann kommen Sie gerne in unser Musterhaus nach Kappel-Grafenhausen (FertighausWelt, FertighausWelt 1, 77966 Kappel-Grafenhausen) oder melden sich bei Luigi Hollenweger unter +49 172 4519572 oder luigi.hollenweger@bien-zenker.de.
* Es handelt sich hier um eine freie Projektierung
* Irrtum und Zwischenverkauf vorbehalten
* Abbildungen zeigen zum Teil kostenpflichtige Extras
* der Preis versteht sich ohne die ortsüblichen Baunebenkosten
Grundriss
CEL 122 V3 KAT EG 14623
>
>
CEL 122 V3 KAT OG 14625
>
>
CEL 122 V3 KAT DG 14621
>
>
Adresse
77694 Kehl
Interessante Orte
Preis- und Lageinformationen
Preistrend für Bestandsimmobilien in Kehl