Bei diesem Objekt handelt es sich um ein hochwertig ausgestattetes Einfamilienhaus in Hannover-Misburg, das durch moderne Neubauqualität und funktionale Raumaufteilung überzeugt. Die Immobilie wurde im August 2025 fertiggestellt und ist sofort bezugsbereit.
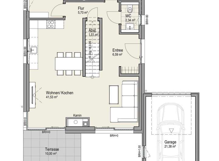
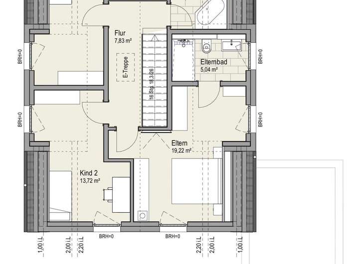
Die Wohnfläche beträgt ca. 145 m² und verteilt sich auf insgesamt fünf Zimmer. Im Erdgeschoss befindet sich der offen gestaltete Wohn- und Essbereich, der den zentralen Aufenthaltsraum bildet. Das Obergeschoss umfasst drei Schlafzimmer, darunter das Elternschlafzimmer mit einem direkt angeschlossenen, privaten Badezimmer. Darüber hinaus steht ein weiterer Raum zur Verfügung, der sich flexibel als Arbeits-, Gäste- oder Kinderzimmer nutzen lässt.
HANNOVER/MISBURG: Familiengerechtes Einfamilienhaus mit moderner Austattung.
30629 Hannover
Die vollständige Adresse der Immobilie erhalten Sie vom Anbieter.
Auf Karte anzeigen
Die vollständige Adresse der Immobilie erhalten Sie vom Anbieter.
Finanzierungszertifikat
In nur zwei Minuten zu Ihrem persönlichen Finanzierungszertifkat.
Infos
| Haustyp | Einfamilienhaus |
|---|---|
| Etagenzahl | 2 |
| Wohnfläche ca. | 145 m2 |
| Grundstücksfläche | 310 m2 |
| Zimmer | 5 |
| Garage/Stellplatz | Garage |
| Anzahl Garage/Stellplatz | 1 |
Kosten
| Kaufpreis |
699.000 € |
|---|---|
| Provision |
2,0 % zzgl. der gesetzlichem Mwst inkl. MwSt. Nach Unterzeichnung des Notarvertrages ist eine Provision in Höhe von 2,0 % zzgl. der gesetzlichen Mehrwertsteuer, vom Käufer an die Firma Roomers- Immobilien GmbH & Co. KG zu zahlen. Wir haben einen entgeltplichtigen Maklervertrag über den gleichen Provisionssatz mit dem Verkäufer abgeschlossen. |
Finanzierungsrechner:
Kaufpreis:
600.000 €
Eigenkapital:
600.000 €
Monatliche Rate
0 €
Effektiver Jahreszins
0 %
Sollzinsbindung
10 Jahre
Bausubstanz & Energieausweis
| Baujahr | 2025 |
|---|---|
| Objektzustand | Erstbezug |
| Qualität der Austattung | Luxus |
| Heizungsart | Wärmepumpe |
Beschreibung des Objekts
Ausstattung
• Geöltes Eichenparkett im Erd- und Obergeschoss
• Großformatige Feinsteinzeugfliesen (Format: 1,20 m × 1,20 m)
• Hochwertige Innentüren mit Design-Beschlägen
• Kaminanschluss im Wohnbereich
• Offener Küchenbereich
• Hauptbadezimmer mit freistehender Badewanne, bodengleicher Walk-in-Dusche, WC von Villeroy & Boch, LED-Designspiegel und schwarzen Armaturen von Hansgrohe
• Drei Schlafzimmer im Obergeschoss
• Zusätzliches Arbeits- oder Gästezimmer
• Abstellraum im Küchenbereich
• Separater Hauswirtschaftsraum mit Waschmaschinenanschluss
• Badezimmereinrichtung mit italienischen Designmöbeln
• Elektrische Zufahrtstore
• Garage mit direktem Zugang zum Garten
• Sichtschutzzaun (1,80 m Höhe)
• Hochwertige Pflasterung der Außenflächen
• Außenbeleuchtung mit fest installierten Downlights
• Außenanlage vollständig.
• Photovoltaikanlage mit Stromspeicher
• Luft-Wasser-Wärmepumpe (Hersteller: Buderus)
• Fußbodenheizung in allen Räumen, einzeln regulierbar
• Dreifachverglaste Fenster mit elektrisch steuerbaren Rollläden (Farbe: Schwarz)
• CAT-7 Netzwerkverkabelung in sämtlichen Wohnräumen
• Vorbereitung für Wallbox (E-Ladestation)
• Vorbereitung für Außenkameras
• Videogegensprechanlage
• Design-Briefkasten
• Betontreppe mit Holzauflage, rahmenlosem
Glasgeländer und LED-Stufenbeleuchtung
Lage
Das Einfamilienhaus liegt in einem ruhigen Wohngebiet im östlichen Teil von Hannover, im Stadtteil Misburg. Die Nachbarschaft ist durch gepflegte Ein- und Zweifamilienhäuser geprägt. Die Straße ist verkehrsberuhigt und weist überwiegend Anliegerverkehr auf.
Einkaufsmöglichkeiten, Kindergärten, Schulen, medizinische Versorgung sowie alle Einrichtungen des täglichen Bedarfs sind in der näheren Umgebung vorhanden. Der öffentliche Nahverkehr ist über fußläufig erreichbare Bus- und Stadtbahnverbindungen gut angebunden. Die Innenstadt von Hannover ist in etwa 15 bis 20 Minuten mit dem Pkw erreichbar. Über die Autobahnen A2 und A7 besteht zusätzlich eine verkehrsgünstige Anbindung in alle Richtungen.
Sonstige Angaben
Alle Angaben sind ohne Gewähr und basieren ausschließlich auf Informationen, die uns von unserem Auftraggeber übermittelt wurden.
Wir übernehmen keine Gewähr für die Vollständigkeit, Richtigkeit und Aktualität dieser Angaben. Irrtum und Zwischenverkauf vorbehalten.
Grundlage unserer Tätigkeit sind unsere AGB, die wir Ihnen gern zur Verfügung stellen.
Vereinbaren Sie mit unserem Büro einen persönlichen Beratungsgespräch, wir zeigen Ihnen dann das Bauvorhaben im Detail auf. Auf bestimmte Aussattungsvarianten kann noch Einfluss genommen werde.
Adresse
30629 Hannover
Interessante Orte
Preis- und Lageinformationen
Preistrend für Bestandsimmobilien in Misburg-Nord