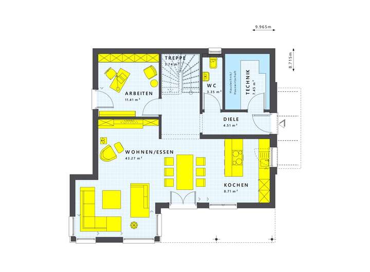
Diese beeindruckende Stadtvilla in Celle bietet dir ein einzigartiges Zuhause, das nach deinen Wünschen und Vorstellungen gestaltet wird. Mit einer großzügigen Wohnfläche von 146,19 m² und einem durchdachten Raumkonzept mit 6 Zimmern, darunter 3 Schlafzimmer und ein modernes Badezimmer, ist das Haus ideal für Familien und all jene, die Raum zum Wohlfühlen suchen. Das coole Walmdach verleiht der Architektur nicht nur einen besonderen Charakter, sondern sorgt auch für eine großzügige Deckenhöhe im Obergeschoss. Hier gelangst du auf den großen Balkon, der nicht nur einen herrlichen Ausblick bietet, sondern auch als Überdachung für den Freisitz dient. Der optisch ansprechende Übereck-Erker erweitert deinen Wohn- und Essbereich im Erdgeschoss auf beeindruckende 43 Quadratmeter und schafft so ein lichtdurchflutetes Ambiente, das zum Verweilen und Entspannen einlädt.
Zusätzlich zu dieser fantastischen Architektur profitierst du von den umfassenden Leistungen von LivingHaus, die dein Bauprojekt zu einem unvergesslichen Erlebnis machen. Die hochwertige Traumküche wird exakt auf deine Bedürfnisse und den Grundriss deines Hauses abgestimmt. Sie ist ausgestattet mit modernster Technik und cleveren Stauraumlösungen, damit du direkt nach dem Einzug loskochen kannst.
Mit dem LivingHaus Bau-Cockpit behältst du jederzeit den Überblick über dein Bauprojekt. Alle wichtigen Informationen sind digital und für dich jederzeit zugänglich, was dir ein stressfreies Bauen ermöglicht.
Das innovative I-KON-Konzept sorgt dafür, dass dein neues Zuhause energieeffizient und umweltfreundlich ist, während du mit dem Zuhause-Darlehen von attraktiven Finanzierungsbedingungen profitierst.
Das Zuhause-Paket bietet dir eine hochwertige Grundausstattung mit modernen Materialien, die alles optimal aufeinander abstimmen und fix und fertig geliefert werden. Und wenn du dich an deinem Innenausbau selbst versuchen möchtest, steht dir das DIY-Ausbau-Coaching zur Verfügung, bei dem dir Experten praktische Tipps geben, damit du dein Zuhause nach deinen Vorstellungen gestalten kannst.
Dein Traumhaus in Celle - Individuell, modern, LivingHaus!
29229 Celle
Die vollständige Adresse der Immobilie erhalten Sie vom Anbieter.
Auf Karte anzeigen
Die vollständige Adresse der Immobilie erhalten Sie vom Anbieter.
Finanzierungszertifikat
In nur zwei Minuten zu Ihrem persönlichen Finanzierungszertifkat.
Infos
| Haustyp | Einfamilienhaus |
|---|---|
| Etagenzahl | 2 |
| Wohnfläche ca. | 146 m2 |
| Nutzfläche | 145,38 m2 |
| Grundstücksfläche | 600 m2 |
| Zimmer | 5 |
| Schlafzimmer | 3 |
| Badezimmer | 1 |
Kosten
| Kaufpreis |
501.085 € |
|---|
Finanzierungsrechner:
Kaufpreis:
600.000 €
Eigenkapital:
600.000 €
Monatliche Rate
0 €
Effektiver Jahreszins
0 %
Sollzinsbindung
10 Jahre
Bausubstanz & Energieausweis
| Baujahr | 2026 |
|---|---|
| Bauphase | Haus in Planung (projektiert) |
| Qualität der Austattung | Gehoben |
| Energieausweis | liegt vor |
| Energieausweistyp | Bedarfsausweis |
| Energieverbrauchskennwert | 18,0 kWh/(m²*a) |
| Energieeffizienzklasse | A+ |
18,0
kWh/(m²*a)
Energieeffizienzklasse A+
- A+
- A
- B
- C
- D
- E
- F
- G
- H
- 0
- 25
- 50
- 75
- 100
- 125
- 150
- 175
- 200
- 225
- >250
Beschreibung des Objekts
Ausstattung
Die Ausstattung deines neuen Fertighauses von LivingHaus ist einfach beeindruckend. Du erhältst eine hochwertige Traumküche, die perfekt auf deinen Grundriss abgestimmt ist und dir modernste Technik sowie cleveren Stauraum bietet. Das Zuhause-Paket umfasst zudem edle Türen, stilvolle Sanitäranlagen und moderne Böden, alles optimal aufeinander abgestimmt. Du profitierst von einer 18-monatigen Festpreisgarantie und umfassenden Bauversicherungen, die dir Sicherheit bieten. Zusätzlich stehen dir innovative Lösungen wie die integrierte PV-Anlage für nachhaltige Energiegewinnung und die moderne Wärmepumpentechnik zur Verfügung, um ein angenehmes Raumklima zu schaffen. Ob Bodenplatte oder Keller - alles wird aus einer Hand abgewickelt, und das DIY-Ausbau-Coaching gibt dir die Möglichkeit, selbst aktiv zu werden. Das Ergebnis? Dein "Wie ich es will Fertighaus".
Lage
Celle, bekannt für seine malerische Altstadt und das beeindruckende Schloss, bietet dir eine hervorragende Lebensqualität. In unmittelbarer Nähe findest du zahlreiche Schulen, darunter die Grundschule am Hehlentor und das Gymnasium Caroline von Humboldt, die beide sehr gut bewertet werden. Kindergärten sind ebenfalls in der Umgebung und bieten eine gute Betreuung für die Kleinsten. Für die täglichen Besorgungen stehen dir Supermärkte wie Rewe und Edeka zur Verfügung, die schnell erreichbar sind.
Die medizinische Versorgung ist ebenfalls gewährleistet durch zahlreiche Ärzte und das nahegelegene Krankenhaus. Für Freizeitangebote hat Celle viel zu bieten: Von Parks und Spielplätzen über Sportvereine bis hin zu kulturellen Veranstaltungen im Stadttheater ist alles vorhanden. Die gute Anbindung an den ÖPNV und die Autobahn A2 macht das Pendeln nach Hannover und Braunschweig kinderleicht.
Celle ist somit nicht nur ein wunderbarer Ort für Familien, sondern auch für Naturliebhaber, die die umliegenden Wälder und Seen genießen möchten. Hier wirst du dich schnell zuhause fühlen und alle Annehmlichkeiten des Lebens genießen können.
Grundriss
Gestaltungsbeispiel EG
>
>
Gestaltungsbeispiel OG
>
>
Adresse
29229 Celle
Interessante Orte
Preis- und Lageinformationen
Preistrend für Bestandsimmobilien in Celle