Dieses liebevoll modernisierte Reihenmittelhaus vereint gemütliches Wohnen mit praktischer Ausstattung – ideal für alle, die sich ein Zuhause zum Wohlfühlen wünschen.
Im Eingangsbereich heißt Sie eine Garderobe willkommen. Eine stilvolle Glastür trennt diesen Bereich vom Wohnraum und sorgt gleichzeitig für Helligkeit.
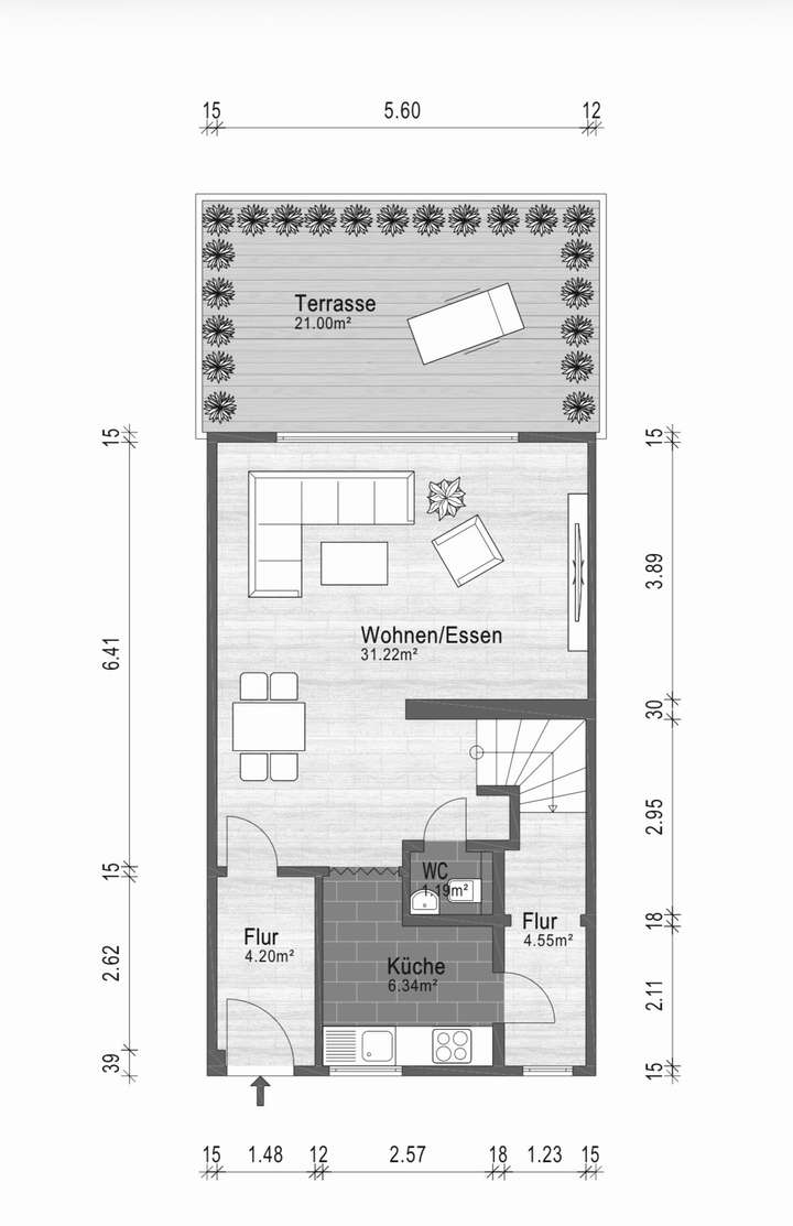
Der offene Wohn- und Essbereich geht fließend in die moderne Küche über. Angrenzend befindet sich ein praktischer Hauswirtschaftsraum mit Platz für Vorräte, Waschmaschine und Trockner. Ein Gäste-WC ist ebenfalls im Erdgeschoss vorhanden.
Dank großer Fensterfronten genießen Sie einen herrlichen Blick in den 2024 neu gestalteten, blickdichten und komplett eingezäunten Garten. Dort erwartet Sie ein modernes Gartenhaus mit viel Stauraum sowie eine großzügige, überdachte Terrasse mit integrierter elektrischer Unterdachmarkise – ideal zum Entspannen, auch an heißen Tagen. Die automatische Bewässerungsanlage übernimmt die Pflege fast von selbst.
Alle Fenster im Haus sind mit Rollläden ausgestattet – ausgenommen das Dachfenster im Kinder- bzw. Home-Office-Zimmer, das mit einem praktischen Dachfensterplissee versehen ist. Zusätzlich sind alle Fenster mit Insektenschutzgittern ausgestattet, die für zusätzlichen Komfort sorgen.
Im Obergeschoss befinden sich insgesamt zwei Schlafzimmer sowie ein großes, mediterran gestaltetes Badezimmer mit Eckbadewanne und Dusche. Eines der Zimmer kann als Kinderzimmer oder Home-Office genutzt werden.
Der Dachboden bietet zusätzlichen Stauraum und ist ausbaufähig. Ein Schornstein ist vorhanden, sodass der Einbau eines Kamins möglich ist. Fußbodenheizung im Untergeschoss sowie im Bad sorgt für extra Komfort. Alle Wohnräume sind mit hochwertigem, fußwarmem Vinylboden ausgestattet.
Zwei PKW-Stellplätze befinden sich direkt vor dem Haus – inklusive installierter Wallbox für Elektroautos. Beheizt wird das Haus umweltfreundlich über Fernwärme.
Ein Glasfaseranschluss wurde bereits beantragt; der Anschluss ist für Ende dieses Jahres oder Anfang des nächsten Jahres geplant – perfekt für alle, die Wert auf eine moderne, zukunftssichere Internetverbindung legen.
Die Lage überzeugt durch ihre gute Busanbindung zum Volkswagen-Werk sowie die schnelle Erreichbarkeit der Wolfsburger Innenstadt – ideal für Berufspendler und Familien gleichermaßen.
⸻
Weitere Pluspunkte:
• Renovierung im Innenbereich 2023
• Gartengestaltung neu in 2024
• Glasfaseranschluss beantragt – Anschluss Ende 2025 bzw. Anfang 2026
• Gute Busverbindung zum Werk
• Schnelle Erreichbarkeit der Innenstadt
• Nächste Einkaufsmöglichkeit nur 500 Meter entfernt
• Ruhige Lage in verkehrsberuhigter 30er-Zone
⸻
Highlights im Überblick:
• Modern & gemütlich wohnen auf zwei Etagen
• Blickdichter und komplett eingezäunter Garten mit Gartenhaus & Bewässerungsanlage
• Überdachte Terrasse mit integrierter elektrischer Unterdachmarkise
• Fußbodenheizung (UG & Bad)
• 2 Stellplätze + Wallbox
• Offene Küche & Hauswirtschaftsraum
• Fernwärme
• Glasfaseranschluss beantragt (Anschluss Ende 2025 / Anfang 2026)
• Gute Busverbindung zum Werk & schnelle Erreichbarkeit der Innenstadt
• Ausbaufähiger Dachboden
• Schornstein vorhanden – Kamin möglich
• Rollläden an allen Fenstern außer Dachfenster
• Dachfenster im Kinder-/Home-Office-Zimmer mit Plissee
• Insektenschutzgitter an allen Fenstern
Modern & Gemütlich: Familienfreundliches Reihenmittelhaus in Wendschott mit Traumgarten
38448 Wolfsburg
Die vollständige Adresse der Immobilie erhalten Sie vom Anbieter.
Auf Karte anzeigen
Die vollständige Adresse der Immobilie erhalten Sie vom Anbieter.
Finanzierungszertifikat
In nur zwei Minuten zu Ihrem persönlichen Finanzierungszertifkat.
Infos
| Haustyp | Reihenmittelhaus |
|---|---|
| Etagenzahl | 2 |
| Wohnfläche ca. | 98 m2 |
| Grundstücksfläche | 192 m2 |
| Bezugsfrei ab | 1.2.2026 |
| Zimmer | 3 |
| Schlafzimmer | 2 |
| Badezimmer | 1 |
| Garage/Stellplatz | Außenstellplatz |
| Anzahl Garage/Stellplatz | 2 |
Kosten
| Kaufpreis |
349.000 € |
|---|---|
| Provision | Nein |
Finanzierungsrechner:
Kaufpreis:
600.000 €
Eigenkapital:
600.000 €
Monatliche Rate
0 €
Effektiver Jahreszins
0 %
Sollzinsbindung
10 Jahre
Bausubstanz & Energieausweis
| Baujahr | 2007 |
|---|---|
| Letzte Sanierung | 2024 |
| Bauphase | Haus fertig gestellt |
| Objektzustand | Modernisiert |
| Qualität der Austattung | Normal |
| Heizungsart | Fernwärme |
| Energieausweis | liegt vor |
| Energieausweistyp | Bedarfsausweis |
| Energieverbrauchskennwert | 93,6 kWh/(m²*a) |
| Energieeffizienzklasse | C |
93,6
kWh/(m²*a)
Energieeffizienzklasse C
- A+
- A
- B
- C
- D
- E
- F
- G
- H
- 0
- 25
- 50
- 75
- 100
- 125
- 150
- 175
- 200
- 225
- >250
Beschreibung des Objekts
Ausstattung
- Moderne , offene Raumgestaltung
- 2 Schlafzimmer
- Badezimmer mit Badewanne & Dusche inklusive Fußbodenheizung
- Gäste-WC im Erdgeschoss
- Fußbodenheizung im EG
- Heizkörpern im OG
- Vorratsraum anliegend an Küche
- Terrasse mit Überdachung und unterdachmarkiese ( modernisiert im Jahr 2024 )
- zwei Stellplätze direkt vor der Haustür mit Wallbox
- Fernwärme
- Kamin möglich ( Schornstein vorhanden)
- Dachboden ( ausbaufähig)
- Außenrollos + Fliegengitter
Lage
Wendschott gehört zu den stetig wachsenden Stadtteilen Wolfsburgs und besticht durch seinen gelungenen Mix aus alteingesessenen „Urwendschottern“ und neu hinzugezogenen Bewohnern.
Der örtliche Verein WSV Wendschott 1963 e.V. befindet sich in unmittelbarer Nähe und lädt alle Sportbegeisterten zum Fußballspielen, Mitfiebern oder einfach zum geselligen Beisammensein ein.
Das Objekt liegt in einer verkehrsberuhigten 30er-Zone, ideal für Familien und Ruhesuchende. Naturfreunde kommen im nahegelegenen Drömling voll auf ihre Kosten – hier lässt sich wunderbar entspannen und neue Energie tanken.
Die Nachbarschaft ist geprägt von jungen Familien, die besonders die hervorragende Infrastruktur vor Ort schätzen. Supermarkt, DHL-Shop, Friseur, Kindergarten und Grundschule sind bequem innerhalb weniger Gehminuten erreichbar. Weitere Einrichtungen des täglichen Bedarfs – wie Bäckerei, Ärzte, Eisdiele oder Nagelstudio – befinden sich ebenfalls in unmittelbarer Umgebung.
Alles, was Sie nicht direkt in Wendschott finden, bietet der benachbarte Stadtteil Vorsfelde, der optimal angebunden ist und mit zahlreichen weiteren Einkaufsmöglichkeiten und Dienstleistungen überzeugt.
Die Tore des Volkswagenwerks erreichen Sie in etwa 10 bis maximal 15 Minuten mit dem Auto, sodass der Stadtteil auch für Berufspendler äußerst attraktiv ist.
Sonstige Angaben
Sollten Sie Interesse haben, können Sie mich gerne kontaktieren. Eine Besichtigung der Immobilie ist nach Absprache möglich.
Aus zeitlichen Gründen übernimmt Herr Wenderoth von HXL Immobilien die Vermittlung und Kommunikation dieser Immobilie. Es fallen keinerlei Maklergebühren an.
Grundriss
IMG_2226
>
>
IMG_2227
>
>
Adresse
38448 Wolfsburg
Interessante Orte
Preis- und Lageinformationen
Preistrend für Bestandsimmobilien in Wendschott